Used Apartments » Kansai » Kyoto » Higashiyama-ku


Kyoto Higashiyama-ku, Kyoto
Keihan "Shijo Gion" walk 14 minutes
This apartment of maisonette close degree to Kiyomizu-dera. Please house you at scenic villa sense in this area.
LDK20 tatami mats or more, See the mountainese-style room, 2 or more sides balcony, Leafy residential area, All room 6 tatami mats or more, It is close to the city, Around traffic fewer, top floor ・ No upper floor, High floor, Security enhancement, Wide balcony, 3 face lighting, Elevator, The window in the bathroom, Ventilation good, Located on a hill
Features pickup
LDK20 tatami mats or more / See the mountain / It is close to the city / Around traffic fewer / Japanese-style room / top floor ・ No upper floor / High floor / Security enhancement / Wide balcony / 3 face lighting / 2 or more sides balcony / Elevator / The window in the bathroom / Leafy residential area / Ventilation good / All room 6 tatami mats or more / Located on a hill
Property name
Gran form Shimizu villa
Price
72 million yen
Floor plan
5LDK
Units sold
1 units
Total units
98 units
Occupied area
147.21 sq m (registration)
Whereabouts floor / structures and stories
5th floor / SRC6 story
Completion date
July 1985
Address
Kyoto Higashiyama-ku, Kyoto Seikanjiryozan cho
Traffic
Keihan "Shijo Gion" walk 14 minutes
Related links
[Related Sites of this company]
Contact
TEL: 0800-603-2453 [Toll free] mobile phone ・ Also available from PHS
Caller ID is not notified
Please contact the "saw SUUMO (Sumo)"
If it does not lead, If the real estate company
Administrative expense
39,330 yen / Month (consignment (cyclic))
Repair reserve
14,400 yen / Month
Time residents
Consultation
Whereabouts floor
5th floor
Direction
North
Structure-storey
SRC6 story
Site of the right form
Ownership
Use district
Two dwellings
Parking lot
Sky Mu
Company profile
<Mediation> Minister of Land, Infrastructure and Transport (5) Article 005298 No. Kent home sales (Ltd.) Sakyo shop Yubinbango606-8012 Kyoto, Sakyo-ku, Kyoto Yamahata Takikehana-cho, 4-8


Local appearance photo

Local appearance photo. Local (May 2013) Shooting
Local (May 2013) Shooting

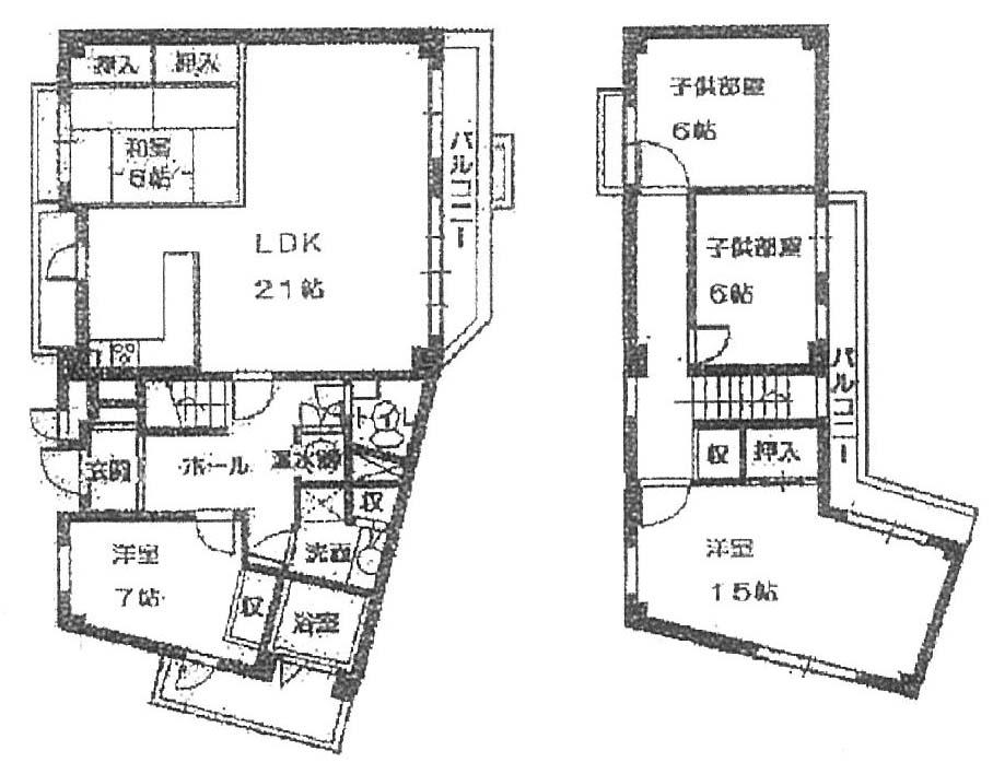
Floor plan

Floor plan. 5LDK, Price 72 million yen, Footprint 147.21 sq m
5LDK, Price 72 million yen, Footprint 147.21 sq m

Entrance

Entrance. Common areas
Common areas

Other common areas

Other common areas. Common areas
Common areas

Parking lot

Parking lot. Garage with shutter
Garage with shutter

Supermarket

Supermarket. 678m to fresco Higashiyama Yasui shop
678m to fresco Higashiyama Yasui shop

Other

Other. Keihan Gion Shijo Station
Keihan Gion Shijo Station

Other common areas

Other common areas. Passage to the garage
Passage to the garage

Bank

Bank. Bank of Kyoto 582m to Higashiyama branch
Bank of Kyoto 582m to Higashiyama branch

Primary school

Primary school. Kyoto Ryugai 睛小 school ・ 818m up to junior high school
Kyoto Ryugai 睛小 school ・ 818m up to junior high school

Hospital

Hospital. 1300m to Higashiyama post office
1300m to Higashiyama post office



Location