1995February
9 million yen, 3LDK, 65.6 sq m
Used Apartments » Chugoku » Okayama Prefecture » Kita-ku
 
| | Okayama, Okayama Prefecture, Kita-ku, 岡山県岡山市北区 |
| JR Sanyo Line "Niwase" walk 15 minutes JR山陽本線「庭瀬」歩15分 |
Features pickup 特徴ピックアップ | | Interior renovation / Facing south / Japanese-style room / Face-to-face kitchen / South balcony / All room 6 tatami mats or more 内装リフォーム /南向き /和室 /対面式キッチン /南面バルコニー /全居室6畳以上 | Property name 物件名 | | City Corporate Nobutomo シティコーポ延友 | Price 価格 | | 9 million yen 900万円 | Floor plan 間取り | | 3LDK 3LDK | Units sold 販売戸数 | | 1 units 1戸 | Total units 総戸数 | | 140 households 140戸 | Occupied area 専有面積 | | 65.6 sq m (19.84 tsubo) (center line of wall) 65.6m2(19.84坪)(壁芯) | Other area その他面積 | | Balcony area: 9 sq m バルコニー面積:9m2 | Whereabouts floor / structures and stories 所在階/構造・階建 | | 10th floor / SRC11 story 10階/SRC11階建 | Completion date 完成時期(築年月) | | February 1995 1995年2月 | Address 住所 | | Okayama, Okayama Prefecture, Kita-ku, Nobutomo 岡山県岡山市北区延友 | Traffic 交通 | | JR Sanyo Line "Niwase" walk 15 minutes Okaden bus "Nobutomo" walk 5 minutes JR山陽本線「庭瀬」歩15分 岡電バス「延友」歩5分 | Related links 関連リンク | | [Related Sites of this company] 【この会社の関連サイト】 | Contact お問い合せ先 | | (Ltd.) Fast land TEL: 086-242-5677 Please inquire as "saw SUUMO (Sumo)" (株)ファーストランドTEL:086-242-5677「SUUMO(スーモ)を見た」と問い合わせください | Administrative expense 管理費 | | 7500 yen / Month (consignment (commuting)) 7500円/月(委託(通勤)) | Repair reserve 修繕積立金 | | 6900 yen / Month 6900円/月 | Time residents 入居時期 | | Consultation 相談 | Whereabouts floor 所在階 | | 10th floor 10階 | Direction 向き | | South 南 | Renovation リフォーム | | 2013 February interior renovation completed (wall ・ floor) 2013年2月内装リフォーム済(壁・床) | Structure-storey 構造・階建て | | SRC11 story SRC11階建 | Site of the right form 敷地の権利形態 | | Ownership 所有権 | Use district 用途地域 | | Semi-industrial 準工業 | Parking lot 駐車場 | | Off-site (6000 yen / Month) 敷地外(6000円/月) | Company profile 会社概要 | | <Mediation> Okayama Governor (2) Article 004 843 issue (Ltd.) Fast land Yubinbango700-0975 Okayama, Okayama Prefecture, Kita-ku, now 4-9-23 <仲介>岡山県知事(2)第004843号(株)ファーストランド〒700-0975 岡山県岡山市北区今4-9-23 | Construction 施工 | | Tada Corporation (Corporation) 多田建設(株) |
Local appearance photo現地外観写真  Local (March 2013) Shooting
現地(2013年3月)撮影
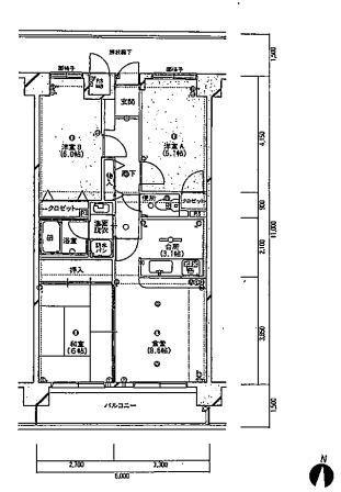
Floor plan間取り図  3LDK, Price 9 million yen, Footprint 65.6 sq m , Balcony area 9 sq m
3LDK、価格900万円、専有面積65.6m2、バルコニー面積9m2
Non-living roomリビング以外の居室  Indoor (March 2013) Shooting
室内(2013年3月)撮影
Livingリビング  Indoor (March 2013) Shooting
室内(2013年3月)撮影
Kitchenキッチン  Indoor (March 2013) Shooting
室内(2013年3月)撮影
Balconyバルコニー  Local (March 2013) Shooting
現地(2013年3月)撮影
Security equipment防犯設備  Auto-Lock Yes
オートロック有り
Toiletトイレ  Indoor (March 2013) Shooting
室内(2013年3月)撮影
Bathroom浴室  Indoor (March 2013) Shooting
室内(2013年3月)撮影
Location
|