Used Apartments » Chugoku » Okayama Prefecture » Kita-ku


Okayama, Okayama Prefecture, Kita-ku,
JR Sanyo Line "Niwase" walk 18 minutes
Interior renovation, All room 6 tatami mats or more, Face-to-face kitchen, Facing south, High floor, Elevator
Features pickup
Interior renovation / Facing south / High floor / Face-to-face kitchen / Elevator / All room 6 tatami mats or more
Property name
City Corporate Nobutomo
Price
9 million yen
Floor plan
3LDK
Units sold
1 units
Total units
140 households
Occupied area
65.6 sq m (center line of wall)
Other area
Balcony area: 9 sq m
Whereabouts floor / structures and stories
10th floor / SRC11 story
Completion date
February 1995
Address
Okayama, Okayama Prefecture, Kita-ku, Nobutomo
Traffic
JR Sanyo Line "Niwase" walk 18 minutes
Related links
[Related Sites of this company]
Contact
TEL: 0800-603-3177 [Toll free] mobile phone ・ Also available from PHS
Caller ID is not notified
Please contact the "saw SUUMO (Sumo)"
If it does not lead, If the real estate company
Administrative expense
7500 yen / Month (consignment (commuting))
Repair reserve
6900 yen / Month
Time residents
Consultation
Whereabouts floor
10th floor
Direction
South
Renovation
2013 February interior renovation completed (wall ・ floor)
Structure-storey
SRC11 story
Site of the right form
Ownership
Use district
Semi-industrial
Company profile
<Mediation> Minister of Land, Infrastructure and Transport (2) Apamanshop real estate sales Kitanagase store No. 007268 (Ltd.) KI Home Yubinbango700-0964 Okayama, Okayama Prefecture, Kita-ku, Nakasendo 2-33-1


Local appearance photo
Local appearance photo

Local appearance photo
Local appearance photo

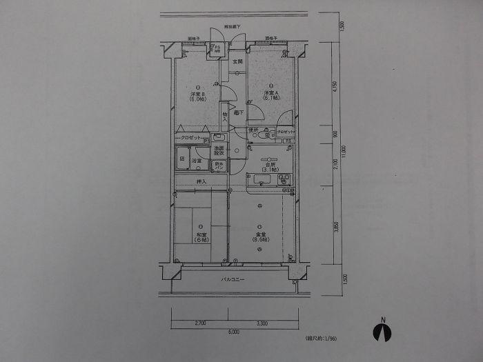
Floor plan

Floor plan. 3LDK, Price 9 million yen, Footprint 65.6 sq m , Balcony area 9 sq m
3LDK, Price 9 million yen, Footprint 65.6 sq m , Balcony area 9 sq m



Location