Used Apartments » Kansai » Osaka prefecture » Hirakata
 
| | Hirakata, Osaka 大阪府枚方市 |
| JR katamachi line "Tsuda" walk 4 minutes JR片町線「津田」歩4分 |
| Commute ・ 3-minute walk from the very convenient JR Tsuda Station to go to school! ! 2013 8 2 years with a home warranty of renovated with very beautiful by peace of mind in May 通勤・通学にとても便利JR津田駅まで徒歩3分!!平成25年8月にリフォーム済みでとてもきれいですよ安心の2年間の住宅保証付き |
| «Hirakata Tsudaekimae Sampler support Tsudaekimae II Ichibankan Used Mansion » ◆ Recommended point ○ 2013 August All rooms renovated There all rooms daylight ○ ○ 2-year mortgage guarantee ◆ Renovated content ○ gas stove had made ○ bathroom Thermo with faucet had made ○ vanity unit had made ○ warm water washing toilet seat had made ○ Western-style floor carpet re-covering ○ water heater had made ≪枚方市津田駅前 サンプラーサ津田駅前II番館 中古マンション≫ ◆おすすめポイント ○平成25年8月全室リフォーム済み ○全室採光あり ○2年間住宅保証付 ◆改装内容 ○ガスコンロ新調 ○浴室サーモ付水栓新調 ○洗面ユニット新調 ○温水洗浄便座新調 ○洋室床カーペット張替え ○給湯器新調 |
Features pickup 特徴ピックアップ | | See the mountain / It is close to golf course / Super close / Interior renovation / Facing south / System kitchen / Bathroom Dryer / Yang per good / All room storage / Flat to the station / A quiet residential area / Japanese-style room / top floor ・ No upper floor / High floor / Idyll / Washbasin with shower / Face-to-face kitchen / Security enhancement / Plane parking / South balcony / Bicycle-parking space / Elevator / Warm water washing toilet seat / Leafy residential area / Ventilation good / Good view / Maintained sidewalk / Bike shelter 山が見える /ゴルフ場が近い /スーパーが近い /内装リフォーム /南向き /システムキッチン /浴室乾燥機 /陽当り良好 /全居室収納 /駅まで平坦 /閑静な住宅地 /和室 /最上階・上階なし /高層階 /田園風景 /シャワー付洗面台 /対面式キッチン /セキュリティ充実 /平面駐車場 /南面バルコニー /駐輪場 /エレベーター /温水洗浄便座 /緑豊かな住宅地 /通風良好 /眺望良好 /整備された歩道 /バイク置場 | Property name 物件名 | | Sampler support Tsudaekimae II Ichibankan サンプラーサ津田駅前II番館 | Price 価格 | | 16,980,000 yen 1698万円 | Floor plan 間取り | | 3LDK 3LDK | Units sold 販売戸数 | | 1 units 1戸 | Occupied area 専有面積 | | 71.76 sq m (center line of wall) 71.76m2(壁芯) | Other area その他面積 | | Balcony area: 12.79 sq m バルコニー面積:12.79m2 | Whereabouts floor / structures and stories 所在階/構造・階建 | | 6th floor / RC6 story 6階/RC6階建 | Completion date 完成時期(築年月) | | July 1999 1999年7月 | Address 住所 | | Hirakata, Osaka Tsudaekimae 2 大阪府枚方市津田駅前2 | Traffic 交通 | | JR katamachi line "Tsuda" walk 4 minutes Keihan Katano Line "Katano" walk 40 minutes JR片町線「津田」歩4分 京阪交野線「交野市」歩40分
| Related links 関連リンク | | [Related Sites of this company] 【この会社の関連サイト】 | Contact お問い合せ先 | | (Ltd.) pylon TEL: 072-381-6351 Please inquire as "saw SUUMO (Sumo)" (株)パイロンTEL:072-381-6351「SUUMO(スーモ)を見た」と問い合わせください | Administrative expense 管理費 | | 10,100 yen / Month (consignment (commuting)) 1万100円/月(委託(通勤)) | Repair reserve 修繕積立金 | | 9500 yen / Month 9500円/月 | Time residents 入居時期 | | Consultation 相談 | Whereabouts floor 所在階 | | 6th floor 6階 | Direction 向き | | South 南 | Renovation リフォーム | | August interior renovation completed (Kitchen 2013 ・ bathroom ・ toilet ・ wall ・ floor ・ all rooms ・ Water heater had made) 2013年8月内装リフォーム済(キッチン・浴室・トイレ・壁・床・全室・給湯器新調) | Structure-storey 構造・階建て | | RC6 story RC6階建 | Site of the right form 敷地の権利形態 | | Ownership 所有権 | Use district 用途地域 | | One dwelling 1種住居 | Parking lot 駐車場 | | Site (8000 yen ~ ¥ 10,000 / Month) 敷地内(8000円 ~ 1万円/月) | Company profile 会社概要 | | <Mediation> governor of Osaka Prefecture (1) No. 055301 (Ltd.) pylon Yubinbango572-0080 Osaka Neyagawa Korikitano cho 17-6-101 <仲介>大阪府知事(1)第055301号(株)パイロン〒572-0080 大阪府寝屋川市香里北之町17-6-101 | Construction 施工 | | (Ltd.) Takamatsukensetsu Osaka Branch (株)高松建設 大阪支社 |
Local appearance photo現地外観写真  A natural rich, Near a train station, Probably here if live
自然豊かで、駅も近い、住むならここでしょ
View photos from the dwelling unit住戸からの眺望写真  It is the scenery as seen from the balcony! It is per positive good because it is a south
バルコニーから見た景色です! 南側ですので陽当り良好ですよ
Livingリビング  LDK 14.2 Pledge Japanese-style room is spacious it can be used in more than 20 Pledge After you open in 6 Pledge
LDKは14.2帖和室は6帖でオープンしたら20帖以上で広々使用出来ます
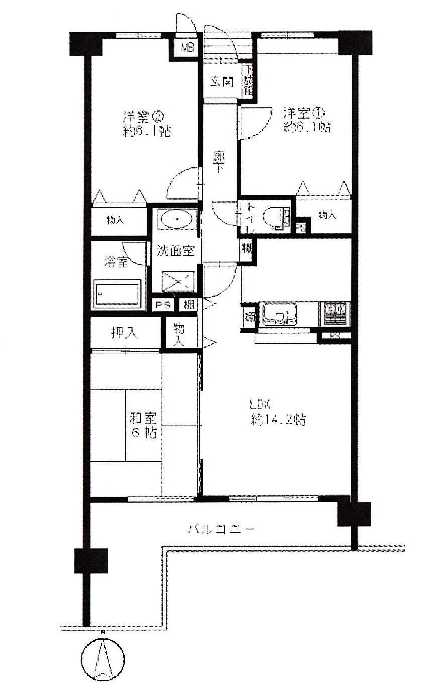
Floor plan間取り図  3LDK, Price 16,980,000 yen, Occupied area 71.76 sq m , Balcony area 12.79 sq m ☆ A beautiful try and in all rooms renovated ☆ To
3LDK、価格1698万円、専有面積71.76m2、バルコニー面積12.79m2 ☆全室リフォーム済みでとてみ綺麗で☆ すよ
Livingリビング  This view from the face-to-face kitchen. Family and conversation can be enjoyed while cooking
対面キッチンから見える景色です。 お料理しながら家族と会話が楽しめますよ
Bathroom浴室  Heisei we had made with bathroom Thermo faucet to 25 August
平成25年8月に浴室サーモ付水栓新調しました
Kitchenキッチン  March was a gas stove had made in 25 years in August
平成25年8月にガスコンロ新調しました
Non-living roomリビング以外の居室  Japanese-style room 6 Pledge
和室 6帖
Entrance玄関  Enter a good wind in the entire room from the front door
玄関から部屋全体にいい風入ります
Wash basin, toilet洗面台・洗面所  Heisei cool a wide type that was had made vanity unit on 25 August (^ - ^)
平成25年8月に洗面ユニット新調しましたワイドタイプでかっこいい(^-^)
Toiletトイレ  Heisei was had made bidet in 25 years in August
平成25年8月にウォシュレット新調しました
Entranceエントランス  It is very beautiful are managed properly
きちんと管理されておりとてもキレイです
Other common areasその他共用部  Bench that was used a short space next to the apartment
マンション横のちょっとしたスペースを利用したベンチ
Balconyバルコニー  Your laundry comfortably in the south balcony
南側バルコニーで気持ちよくお洗濯
Other introspectionその他内観  Little space usage happy and some will leave
あるとうれしいちょっとしたスペース使い方はお任せします
Non-living roomリビング以外の居室  Western style room 6.1 Pledge
洋室 6.1帖
Entranceエントランス  Auto lock-conditioned peace of mind
安心のオートロック完備
Other common areasその他共用部  It is a view from the front door
玄関から見える景色です
Other introspectionその他内観  Shelves used a short space,
ちょっとしたスペースを利用した棚、
Non-living roomリビング以外の居室  Western style room 6.1 Pledge
洋室 6.1帖
Supermarketスーパー  An 8-minute walk from the Kansai Super
関西スーパーまで徒歩8分
Station駅  JR 3-minute walk from Tsuda Tsuda Station
JR津田津田えきまで徒歩3分
Primary school小学校  Hirakata Municipal Tsudaminami 14-minute walk from the elementary school
枚方市立津田南小学校まで徒歩14分
Junior high school中学校  Hirakata 17-minute walk from City Tsuda Junior High School
枚方市立津田中学校まで徒歩17分
Otherその他  Really convenient to where to go
どこに行くにもほんとに便利
Parking lot駐車場  On-site parking Sky Yes
敷地内駐車場 空有
Otherその他  Bicycle equipped
駐輪場完備
Location
|