Used Apartments » Kansai » Osaka prefecture » Ibaraki
 
| | Ibaraki, Osaka 大阪府茨木市 |
| Hankyu Kyoto Line "Ibaraki" walk 17 minutes 阪急京都線「茨木市」歩17分 |
| ◆ It is the elevator stop floor! ◆ The southernmost building high-rise floor! Good per yang ◆ There is a site in the park to play with everyone! ◆エレベーター停止階です!◆最南棟の高層階!陽当たり良好です◆みんなで遊べる敷地内公園がございます! |
| ■ Since the education facilities are within walking distance, Also joy for children ■教育施設が徒歩圏内にございますので、お子様も喜びます |
Features pickup 特徴ピックアップ | | Year Available / Immediate Available / 2 along the line more accessible / Super close / It is close to the city / Facing south / Yang per good / Flat to the station / A quiet residential area / High floor / Plane parking / South balcony / Bicycle-parking space / Elevator / Leafy residential area / Mu front building / Ventilation good / All living room flooring / Good view / Maintained sidewalk / Fireworks viewing / Flat terrain / Bike shelter / Movable partition 年内入居可 /即入居可 /2沿線以上利用可 /スーパーが近い /市街地が近い /南向き /陽当り良好 /駅まで平坦 /閑静な住宅地 /高層階 /平面駐車場 /南面バルコニー /駐輪場 /エレベーター /緑豊かな住宅地 /前面棟無 /通風良好 /全居室フローリング /眺望良好 /整備された歩道 /花火大会鑑賞 /平坦地 /バイク置場 /可動間仕切り | Property name 物件名 | | Green Town Ibaraki 7 Ichibankan グリーンタウン茨木7番館 | Price 価格 | | 13.8 million yen 1380万円 | Floor plan 間取り | | 3LDK 3LDK | Units sold 販売戸数 | | 1 units 1戸 | Occupied area 専有面積 | | 60.06 sq m (center line of wall) 60.06m2(壁芯) | Other area その他面積 | | Balcony area: 8.28 sq m バルコニー面積:8.28m2 | Whereabouts floor / structures and stories 所在階/構造・階建 | | 7th floor / SRC8 story 7階/SRC8階建 | Completion date 完成時期(築年月) | | March 1979 1979年3月 | Address 住所 | | Ibaraki, Osaka Mizuo 3 大阪府茨木市水尾3 | Traffic 交通 | | Hankyu Kyoto Line "Ibaraki" walk 17 minutes Osaka Monorail Main Line "Minami Ibaraki" walk 19 minutes Hankyu Kyoto Line "Minami Ibaraki" walk 20 minutes 阪急京都線「茨木市」歩17分 大阪モノレール本線「南茨木」歩19分 阪急京都線「南茨木」歩20分
| Related links 関連リンク | | [Related Sites of this company] 【この会社の関連サイト】 | Contact お問い合せ先 | | TEL: 0800-603-4620 [Toll free] mobile phone ・ Also available from PHS Caller ID is not notified Please contact the "saw SUUMO (Sumo)" If it does not lead, If the real estate company TEL:0800-603-4620【通話料無料】携帯電話・PHSからもご利用いただけます 発信者番号は通知されません 「SUUMO(スーモ)を見た」と問い合わせください つながらない方、不動産会社の方は
| Administrative expense 管理費 | | 2500 yen / Month (consignment (commuting)) 2500円/月(委託(通勤)) | Repair reserve 修繕積立金 | | 10,500 yen / Month 1万500円/月 | Whereabouts floor 所在階 | | 7th floor 7階 | Direction 向き | | South 南 | Structure-storey 構造・階建て | | SRC8 story SRC8階建 | Site of the right form 敷地の権利形態 | | Ownership 所有権 | Use district 用途地域 | | One middle and high 1種中高 | Parking lot 駐車場 | | Sky Mu 空無 | Company profile 会社概要 | | <Mediation> governor of Osaka (2) No. 053,920 housing network Sales Co., Ltd. Ibaraki shop Yubinbango567-0031 Ibaraki, Osaka Kasuga 1-5-17 <仲介>大阪府知事(2)第053920号ハウジングネットワーク販売(株)茨木店〒567-0031 大阪府茨木市春日1-5-17 |
 Local appearance photo
現地外観写真
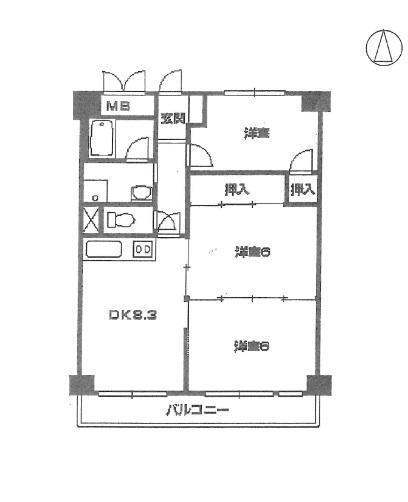
Floor plan間取り図  3LDK, Price 13.8 million yen, Occupied area 60.06 sq m , Balcony area 8.28 sq m
3LDK、価格1380万円、専有面積60.06m2、バルコニー面積8.28m2
Entranceエントランス  Common areas
共用部
 Local appearance photo
現地外観写真
Other common areasその他共用部  On-site park
敷地内公園
Supermarketスーパー  Heiwado Masago 498m to shop
平和堂真砂店まで498m
Otherその他  Super Fresco Mizuo shop ☆ 9:00 am ~ Super is open until the evening of 21. It is very convenient because right there a
スーパーフレスコ水尾店☆朝9時 ~ 夜の21時まで営業しているスーパーです。すぐそこなので大変便利です
Convenience storeコンビニ  570m to FamilyMart Ibaraki Mizuo shop
ファミリーマート茨木水尾店まで570m
Otherその他  Immediately to a convenience store
コンビニまですぐ
Convenience storeコンビニ  MINISTOP Ibaraki Masago 664m to shop
ミニストップ茨木真砂店まで664m
 Other
その他
Drug storeドラッグストア  Kirindo Ibaraki Masago 823m to shop
キリン堂茨木真砂店まで823m
Otherその他  Hankyu Ibaraki Station
阪急茨木市駅
Junior high school中学校  Ibaraki Minami until junior high school 579m
茨木市立南中学校まで579m
 Other
その他
Primary school小学校  Ibaraki Municipal Mizuo to elementary school 583m
茨木市立水尾小学校まで583m
Otherその他  Settsu Suitoshin'yokinko also close, Convenient!
摂津水都信用金庫も近隣に有り、便利です!
Post office郵便局  Ibaraki Masago 602m to the post office
茨木真砂郵便局まで602m
Library図書館  Ibaraki Municipal Mizuo to Library 221m
茨木市立水尾図書館まで221m
Park公園  885m until Mizuo park
水尾公園まで885m
Location
|