1986April
27.5 million yen, 4LDK, 116.05 sq m
Used Apartments » Kansai » Osaka prefecture » Mino
 
| | Osaka Prefecture Mino 大阪府箕面市 |
| Hankyū Minoo Line "Sakurai" walk 8 minutes 阪急箕面線「桜井」歩8分 |
| 100? Or more of 4LDK + roof a terrace! 100?以上の4LDK+屋上テラス付きです! |
Features pickup 特徴ピックアップ | | Immediate Available / LDK20 tatami mats or more / Super close / Facing south / Yang per good / Japanese-style room / top floor ・ No upper floor / Washbasin with shower / Face-to-face kitchen / Toilet 2 places / Bathroom 1 tsubo or more / 2 or more sides balcony / South balcony / The window in the bathroom / IH cooking heater / Pets Negotiable / terrace / rooftop 即入居可 /LDK20畳以上 /スーパーが近い /南向き /陽当り良好 /和室 /最上階・上階なし /シャワー付洗面台 /対面式キッチン /トイレ2ヶ所 /浴室1坪以上 /2面以上バルコニー /南面バルコニー /浴室に窓 /IHクッキングヒーター /ペット相談 /テラス /屋上 | Property name 物件名 | | Sakurai Incorporated 桜井コーポ | Price 価格 | | 27.5 million yen 2750万円 | Floor plan 間取り | | 4LDK 4LDK | Units sold 販売戸数 | | 1 units 1戸 | Total units 総戸数 | | 15 units 15戸 | Occupied area 専有面積 | | 116.05 sq m 116.05m2 | Other area その他面積 | | Balcony area: 24.1 sq m バルコニー面積:24.1m2 | Whereabouts floor / structures and stories 所在階/構造・階建 | | 4th floor / RC5 floors 1 underground story 4階/RC5階地下1階建 | Completion date 完成時期(築年月) | | April 1986 1986年4月 | Address 住所 | | Osaka Prefecture Mino Sakurai 3 大阪府箕面市桜井3 | Traffic 交通 | | Hankyū Minoo Line "Sakurai" walk 8 minutes 阪急箕面線「桜井」歩8分
| Related links 関連リンク | | [Related Sites of this company] 【この会社の関連サイト】 | Person in charge 担当者より | | The person in charge Tanaka 担当者田中 | Contact お問い合せ先 | | TEL: 0800-603-0470 [Toll free] mobile phone ・ Also available from PHS Caller ID is not notified Please contact the "saw SUUMO (Sumo)" If it does not lead, If the real estate company TEL:0800-603-0470【通話料無料】携帯電話・PHSからもご利用いただけます 発信者番号は通知されません 「SUUMO(スーモ)を見た」と問い合わせください つながらない方、不動産会社の方は
| Administrative expense 管理費 | | 3000 yen / Month (self-management) 3000円/月(自主管理) | Repair reserve 修繕積立金 | | 7000 yen / Month 7000円/月 | Time residents 入居時期 | | Immediate available 即入居可 | Whereabouts floor 所在階 | | 4th floor 4階 | Direction 向き | | South 南 | Overview and notices その他概要・特記事項 | | Contact: Tanaka 担当者:田中 | Structure-storey 構造・階建て | | RC5 floors 1 underground story RC5階地下1階建 | Site of the right form 敷地の権利形態 | | Ownership 所有権 | Use district 用途地域 | | One middle and high 1種中高 | Parking lot 駐車場 | | Site (7000 yen / Month) 敷地内(7000円/月) | Company profile 会社概要 | | <Mediation> Minister of Land, Infrastructure and Transport (10) Article 002608 No. Nippon Housing Distribution Co., Ltd. Toyonaka store Yubinbango560-0023 Toyonaka, Osaka Okakamino cho 4-3-2 Yoshioka building first floor <仲介>国土交通大臣(10)第002608号日本住宅流通(株)豊中店〒560-0023 大阪府豊中市岡上の町4-3―2 吉岡ビル1階 | Construction 施工 | | (Ltd.) Fujiko (株)富士工 |
 Local appearance photo
現地外観写真
 Local appearance photo
現地外観写真
 Entrance
玄関
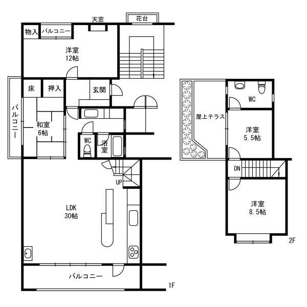
Floor plan間取り図  4LDK, Price 27.5 million yen, Footprint 116.05 sq m , Balcony area 24.1 sq m
4LDK、価格2750万円、専有面積116.05m2、バルコニー面積24.1m2
 Living
リビング
 Bathroom
浴室
 Kitchen
キッチン
Non-living roomリビング以外の居室  1F Western-style
1F洋室
 Wash basin, toilet
洗面台・洗面所
 Toilet
トイレ
 View photos from the dwelling unit
住戸からの眺望写真
 Living
リビング
 1F Western-style
1F洋室
 View photos from the dwelling unit
住戸からの眺望写真
 2F north Western-style
2F北側洋室
 View photos from the dwelling unit
住戸からの眺望写真
 2F south Western-style
2F南側洋室
Location
|