Used Apartments » Kansai » Osaka prefecture » Sakai city north district
 
| | Sakai, Osaka, Kita-ku, 大阪府堺市北区 |
| JR Hanwa Line "Uenoshiba" walk 8 minutes JR阪和線「上野芝」歩8分 |
| Renovation completed! ! It finished in a very beautiful! ! Because of the higher floors, Per yang ・ View ・ Ventilation is good station near ☆ 8 min. Walk ☆ There parking free ☆ ☆ リフォーム済!!大変綺麗に仕上がりました!!高層階のため、陽当たり・眺望・通風良好です駅近☆徒歩8分☆駐車場空きございます☆☆ |
Features pickup 特徴ピックアップ | | Parking two Allowed / Immediate Available / 2 along the line more accessible / Super close / It is close to the city / Interior renovation / System kitchen / Bathroom Dryer / Yang per good / Share facility enhancement / All room storage / Flat to the station / A quiet residential area / Around traffic fewer / Japanese-style room / High floor / 24 hours garbage disposal Allowed / Face-to-face kitchen / Security enhancement / Wide balcony / Plane parking / Bicycle-parking space / Elevator / Otobasu / High speed Internet correspondence / Warm water washing toilet seat / TV monitor interphone / High-function toilet / Leafy residential area / Urban neighborhood / Ventilation good / Good view / BS ・ CS ・ CATV / Located on a hill / Maintained sidewalk / Flat terrain / Delivery Box / Bike shelter 駐車2台可 /即入居可 /2沿線以上利用可 /スーパーが近い /市街地が近い /内装リフォーム /システムキッチン /浴室乾燥機 /陽当り良好 /共有施設充実 /全居室収納 /駅まで平坦 /閑静な住宅地 /周辺交通量少なめ /和室 /高層階 /24時間ゴミ出し可 /対面式キッチン /セキュリティ充実 /ワイドバルコニー /平面駐車場 /駐輪場 /エレベーター /オートバス /高速ネット対応 /温水洗浄便座 /TVモニタ付インターホン /高機能トイレ /緑豊かな住宅地 /都市近郊 /通風良好 /眺望良好 /BS・CS・CATV /高台に立地 /整備された歩道 /平坦地 /宅配ボックス /バイク置場 | Property name 物件名 | | Famille Heights Uenoshiba III Ichibankan ファミールハイツ上野芝III番館 | Price 価格 | | 15.8 million yen 1580万円 | Floor plan 間取り | | 3LDK 3LDK | Units sold 販売戸数 | | 1 units 1戸 | Occupied area 専有面積 | | 69.76 sq m (center line of wall) 69.76m2(壁芯) | Other area その他面積 | | Balcony area: 9.57 sq m バルコニー面積:9.57m2 | Whereabouts floor / structures and stories 所在階/構造・階建 | | 8th floor / SRC15 story 8階/SRC15階建 | Completion date 完成時期(築年月) | | March 1998 1998年3月 | Address 住所 | | Sakai, Osaka, Kita-ku, Higashiuenoshiba cho 2 大阪府堺市北区東上野芝町2 | Traffic 交通 | | JR Hanwa Line "Uenoshiba" walk 8 minutes JR Hanwa Line "Mozu" walk 16 minutes Nankai Koya Line "Mozu Hachiman" walk 26 minutes JR阪和線「上野芝」歩8分 JR阪和線「百舌鳥」歩16分 南海高野線「百舌鳥八幡」歩26分
| Related links 関連リンク | | [Related Sites of this company] 【この会社の関連サイト】 | Contact お問い合せ先 | | TEL: 0800-602-6616 [Toll free] mobile phone ・ Also available from PHS Caller ID is not notified Please contact the "saw SUUMO (Sumo)" If it does not lead, If the real estate company TEL:0800-602-6616【通話料無料】携帯電話・PHSからもご利用いただけます 発信者番号は通知されません 「SUUMO(スーモ)を見た」と問い合わせください つながらない方、不動産会社の方は
| Administrative expense 管理費 | | 4300 yen / Month (consignment (commuting)) 4300円/月(委託(通勤)) | Repair reserve 修繕積立金 | | 5800 yen / Month 5800円/月 | Time residents 入居時期 | | Immediate available 即入居可 | Whereabouts floor 所在階 | | 8th floor 8階 | Direction 向き | | West 西 | Renovation リフォーム | | 2013 September interior renovation completed (kitchen ・ bathroom ・ toilet ・ wall ・ floor ・ all rooms) 2013年9月内装リフォーム済(キッチン・浴室・トイレ・壁・床・全室) | Structure-storey 構造・階建て | | SRC15 story SRC15階建 | Site of the right form 敷地の権利形態 | | Ownership 所有権 | Parking lot 駐車場 | | Site (6000 yen / Month) 敷地内(6000円/月) | Company profile 会社概要 | | <Mediation> governor of Osaka (2) the first 053,920 No. housing network Sales Co., Ltd. Sakai Yubinbango591-8032 Sakai-shi, Osaka, Kita-ku, Mozuume cho 3-4-4 <仲介>大阪府知事(2)第053920号ハウジングネットワーク販売(株)堺店〒591-8032 大阪府堺市北区百舌鳥梅町3-4-4 |
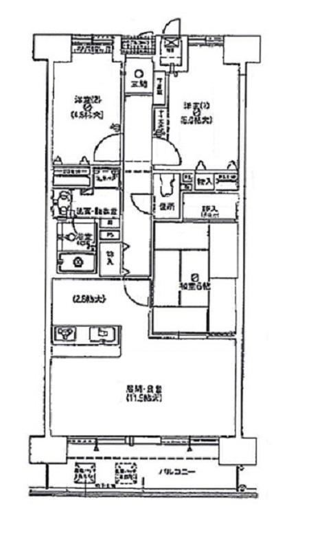
Floor plan間取り図  Renovation completed! !
リフォーム済!!
Local appearance photo現地外観写真  It is a large-scale condominium property. Management is in good very.
大規模分譲物件です。管理が大変行き届いています。
Livingリビング  Since it is a vacant house, Soku is your preview Allowed.
空家ですので、即ご内覧可です。
Kitchenキッチン  Since it has adopted face-to-face kitchen, Eye will Ikitodoki even if he has small children.
対面キッチン採用していますので、小さいお子様がおられても目が行き届きます。
Floor plan間取り図  3LDK, Price 15.8 million yen, Occupied area 69.76 sq m , Facing living room on the balcony to balcony area 9.57 sq m wide, It is very bright floor plan.
3LDK、価格1580万円、専有面積69.76m2、バルコニー面積9.57m2 ワイドにリビングがバルコニーに面して、大変明るい間取りです。
Local appearance photo現地外観写真  Life is a convenient location.
生活便利な立地です。
Livingリビング  Counter Kitchen adoption.
カウンターキッチン採用。
Bathroom浴室  Clean bath heals every day of fatigue.
清潔なお風呂は毎日の疲れを癒してくれます。
Non-living roomリビング以外の居室  Storage is abundant Western-style.
収納豊富な洋室です。
Wash basin, toilet洗面台・洗面所  Good is a wash basin easy to use.
使い勝手のよい洗面台です。
Toiletトイレ  It is a toilet with a clean.
清潔感のあるトイレです。
Entranceエントランス  Is the entrance and refreshing.
スッキリとしたエントランスです。
Supermarketスーパー  402m until Seiyu Uenoshiba shop
西友上野芝店まで402m
View photos from the dwelling unit住戸からの眺望写真  The view from the room is outstanding.
お部屋からの眺望は抜群です。
Otherその他  JR Hanwa Line "Uenoshiba" 8-minute walk from the station
JR阪和線「上野芝」駅より徒歩8分
Local appearance photo現地外観写真  Also substantial common areas.
共用部分も充実しています。
Non-living roomリビング以外の居室  It is beautiful because the renovation of already.
改装済なので綺麗ですよ。
Wash basin, toilet洗面台・洗面所  I am happy there is also a wall store.
壁面収納もあるのが嬉しいですね。
Convenience storeコンビニ  358m to FamilyMart Higashiuenoshiba shop
ファミリーマート東上野芝店まで358m
Otherその他  For further information, please contact our.
お問い合わせは当社まで。
Local appearance photo現地外観写真  It is a very fine apartment.
とても立派なマンションです。
Non-living roomリビング以外の居室  I hope there is also a Japanese-style room.
和室もあるといいですね。
Location
|