1997June
22,900,000 yen, 2LDK, 75.6 sq m
Used Apartments » Kansai » Osaka prefecture » Sakai city north district
 
| | Sakai, Osaka, Kita-ku, 大阪府堺市北区 |
| Subway Midosuji Line "Shinkanaoka" walk 8 minutes 地下鉄御堂筋線「新金岡」歩8分 |
Property name 物件名 | | Gallery Court Heim Shinkanaoka WEST ギャラリーコートハイム新金岡WEST | Price 価格 | | 22,900,000 yen 2290万円 | Floor plan 間取り | | 2LDK 2LDK | Units sold 販売戸数 | | 1 units 1戸 | Total units 総戸数 | | 46 units 46戸 | Occupied area 専有面積 | | 75.6 sq m (center line of wall) 75.6m2(壁芯) | Other area その他面積 | | Balcony area: 9.76 sq m バルコニー面積:9.76m2 | Whereabouts floor / structures and stories 所在階/構造・階建 | | 6th floor / RC6 story 6階/RC6階建 | Completion date 完成時期(築年月) | | June 1997 1997年6月 | Address 住所 | | Sakai, Osaka, Kita-ku, Shinkanaoka cho 2 大阪府堺市北区新金岡町2 | Traffic 交通 | | Subway Midosuji Line "Shinkanaoka" walk 8 minutes 地下鉄御堂筋線「新金岡」歩8分
| Contact お問い合せ先 | | ! Hausudu Nakamozu store Azuma House (Ltd.) TEL: 072-258-1700 Please inquire as "saw SUUMO (Sumo)" ハウスドゥ!なかもず店アズマハウス(株)TEL:072-258-1700「SUUMO(スーモ)を見た」と問い合わせください | Administrative expense 管理費 | | 8670 yen / Month (consignment (commuting)) 8670円/月(委託(通勤)) | Repair reserve 修繕積立金 | | 6960 yen / Month 6960円/月 | Time residents 入居時期 | | Immediate available 即入居可 | Whereabouts floor 所在階 | | 6th floor 6階 | Direction 向き | | South 南 | Structure-storey 構造・階建て | | RC6 story RC6階建 | Site of the right form 敷地の権利形態 | | Ownership 所有権 | Use district 用途地域 | | One middle and high 1種中高 | Parking lot 駐車場 | | Site (8130 yen / Month) 敷地内(8130円/月) | Company profile 会社概要 | | <Mediation> Minister of Land, Infrastructure and Transport (1) the first 008,219 No. Hausudu! Nakamozu store Azuma House Co., Ltd. Yubinbango591-8024 Sakai-shi, Osaka, Kita-ku, black soil-cho, 3002-24 <仲介>国土交通大臣(1)第008219号ハウスドゥ!なかもず店アズマハウス(株)〒591-8024 大阪府堺市北区黒土町3002-24 | Construction 施工 | | Nomura construction industry 野村建設工業 |
 Local appearance photo
現地外観写真
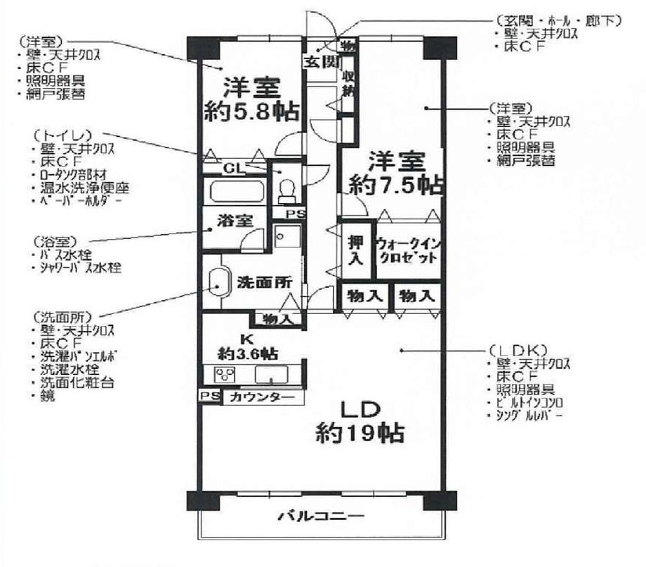
Floor plan間取り図  2LDK, Price 22,900,000 yen, Footprint 75.6 sq m , Balcony area 9.76 sq m
2LDK、価格2290万円、専有面積75.6m2、バルコニー面積9.76m2
Location
|