1982February
7.8 million yen, 3LDK, 70.86 sq m
Used Apartments » Kansai » Osaka prefecture » Yao City
 
| | Osaka Prefecture Yao City 大阪府八尾市 |
| Subway Tanimachi Line "Yaominami" walk 7 minutes 地下鉄谷町線「八尾南」歩7分 |
| ◇ high-rise floor is ventilation good ◇ housing wealth ◇ quiet residential area ◇高層階です通風良好◇収納豊富◇閑静な住宅街です |
| ◇ You can share the healing space cute pet ◇ there room of calm Japanese-style ◇ all room independent private space also firmly secured ◇ day ・ Ventilation good ◇ is a quiet residential area contact us feel free to ☆ → 0800-808-7253 ◇かわいいペットと癒しの空間を共有できます◇落ち着いた和室の部屋あります◇全居室独立プライベートな空間もしっかり確保◇日当たり・通風良好◇閑静な住宅街ですお問い合わせはお気軽に☆→0800-808-7253 |
Features pickup 特徴ピックアップ | | A quiet residential area / Japanese-style room / top floor ・ No upper floor / Pets Negotiable / terrace 閑静な住宅地 /和室 /最上階・上階なし /ペット相談 /テラス | Property name 物件名 | | Yaominami House 八尾南ハウス | Price 価格 | | 7.8 million yen 780万円 | Floor plan 間取り | | 3LDK 3LDK | Units sold 販売戸数 | | 1 units 1戸 | Occupied area 専有面積 | | 70.86 sq m (21.43 tsubo) (center line of wall) 70.86m2(21.43坪)(壁芯) | Other area その他面積 | | Balcony area: 6.14 sq m バルコニー面積:6.14m2 | Whereabouts floor / structures and stories 所在階/構造・階建 | | 5th floor / RC5 story 5階/RC5階建 | Completion date 完成時期(築年月) | | February 1982 1982年2月 | Address 住所 | | Osaka Prefecture Yao City Wakabayashi-cho 3 大阪府八尾市若林町3 | Traffic 交通 | | Subway Tanimachi Line "Yaominami" walk 7 minutes Subway Tanimachi Line "Nagahara" walk 18 minutes Subway Tanimachi Line "Detoxifying" walk 33 minutes 地下鉄谷町線「八尾南」歩7分 地下鉄谷町線「長原」歩18分 地下鉄谷町線「出戸」歩33分
| Person in charge 担当者より | | Person in charge of real-estate and building Sakamoto Masato Age: 20 Daigyokai experience: use to maximize the serious part is one year my advantage, Always aim to passionate service considered empathetic in your eyes! ! I will do my best day-to-day business as they say that there is no mistake in the service of Sakamoto. 担当者宅建坂本 優人年齢:20代業界経験:1年私の長所である真面目な部分を最大限に使い、常にお客様目線で親身に考え情熱的な接客を目指します!!坂本の接客に間違いなしと言われるように日々の業務を頑張ります。 | Contact お問い合せ先 | | TEL: 0800-808-7253 [Toll free] mobile phone ・ Also available from PHS Caller ID is not notified Please contact the "saw SUUMO (Sumo)" If it does not lead, If the real estate company TEL:0800-808-7253【通話料無料】携帯電話・PHSからもご利用いただけます 発信者番号は通知されません 「SUUMO(スーモ)を見た」と問い合わせください つながらない方、不動産会社の方は
| Administrative expense 管理費 | | 6150 yen / Month (consignment (commuting)) 6150円/月(委託(通勤)) | Repair reserve 修繕積立金 | | 9850 yen / Month 9850円/月 | Time residents 入居時期 | | Consultation 相談 | Whereabouts floor 所在階 | | 5th floor 5階 | Direction 向き | | West 西 | Overview and notices その他概要・特記事項 | | Contact: Sakamoto Masato 担当者:坂本 優人 | Structure-storey 構造・階建て | | RC5 story RC5階建 | Site of the right form 敷地の権利形態 | | Ownership 所有権 | Company profile 会社概要 | | <Mediation> governor of Osaka Prefecture (1) No. 056319 (Ltd.) rack housing Yubinbango574-0033 Osaka Prefecture Daito Ogimachi 6-17 <仲介>大阪府知事(1)第056319号(株)ラックハウジング〒574-0033 大阪府大東市扇町6-17 |
Local appearance photo現地外観写真  It is a 7-minute walk from the Osaka Municipal Tanimachi Line Yao South Station
大阪市営谷町線八尾南駅から徒歩7分です
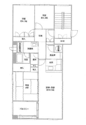
Floor plan間取り図  3LDK, Price 7.8 million yen, Occupied area 70.86 sq m , Is a floor plan of the balcony area 6.14 sq m 3LDK
3LDK、価格780万円、専有面積70.86m2、バルコニー面積6.14m2 3LDKの間取りです
Local appearance photo現地外観写真  The ground is a 5-story apartment
地上5階建マンションです
Otherその他  Pet breeding Allowed condominium
ペット飼育可マンションです
 Daylighting ・ Ventilation is good
採光・通風良好です
 Storage is abundant
収納豊富です
Location
|