|
|
Kawaguchi City Prefecture
埼玉県川口市
|
|
Saitama high-speed rail, "Kawaguchi Motogo" walk 8 minutes
埼玉高速鉄道「川口元郷」歩8分
|
|
~ Clean renovated room with a south-facing private garden, The living floor heating, Come please visit ~
~ 南向きの専用庭付のお部屋を綺麗にリフォーム、リビングには床暖房、是非ご覧ください ~
|
|
□ ■ Our attention information □ ■ □ ■ □ ■ □ ■ □ ■ □ ■ □ ■ □ ■ □ 1. In the case of our alliance mortgage available, The entire period up to -1.7 percent preferential treatment. Possible loan at floating interest rates 0.775 percent. ※ The application, conditions ・ There is a review. 2. weekdays ・ Saturday and Sunday ・ We will guide regardless of holiday. 3. we can come to pick you up at your car. □ ■ □ ■ □ ■ □ ■ □ ■ □ ■ □ ■ □ ■ □ ■ □ ■ □ ■ □ ■ □ ■ □ ■ □ ■ □ ■
□■ 弊社の注目情報□■□■□■□■□■□■□■□■□ 1.弊社提携住宅ローン利用の場合、全期間最大-1.7パーセント優遇。 変動金利0.775パーセントにて融資可能。 ※適用には、条件・審査がございます。 2.平日・土日・祝日問わずご案内致します。 3.お車でお迎えに伺います。 □■□■□■□■□■□■□■□■□■□■□■□■□■□■□■□■
|
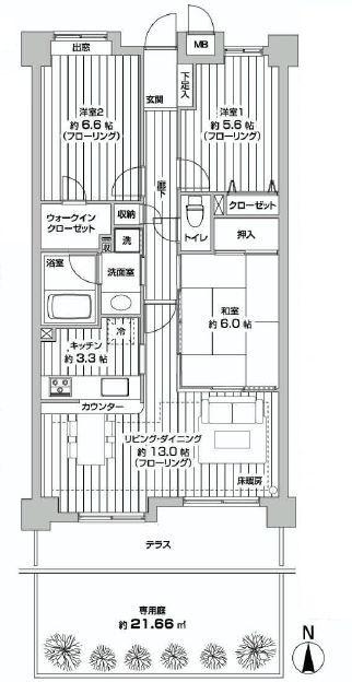
Features pickup 特徴ピックアップ | | Seismic fit / Immediate Available / 2 along the line more accessible / It is close to Tennis Court / Super close / It is close to the city / Interior renovation / Facing south / System kitchen / Bathroom Dryer / Yang per good / Share facility enhancement / All room storage / Flat to the station / A quiet residential area / LDK15 tatami mats or more / Around traffic fewer / Japanese-style room / 24 hours garbage disposal Allowed / Washbasin with shower / Face-to-face kitchen / Security enhancement / Barrier-free / Bicycle-parking space / Elevator / Otobasu / High speed Internet correspondence / Warm water washing toilet seat / Nantei / TV monitor interphone / Renovation / High-function toilet / Urban neighborhood / Mu front building / Ventilation good / Dish washing dryer / Walk-in closet / water filter / Pets Negotiable / BS ・ CS ・ CATV / Maintained sidewalk / Flat terrain / Floor heating / Delivery Box / terrace / Private garden / Bike shelter 耐震適合 /即入居可 /2沿線以上利用可 /テニスコートが近い /スーパーが近い /市街地が近い /内装リフォーム /南向き /システムキッチン /浴室乾燥機 /陽当り良好 /共有施設充実 /全居室収納 /駅まで平坦 /閑静な住宅地 /LDK15畳以上 /周辺交通量少なめ /和室 /24時間ゴミ出し可 /シャワー付洗面台 /対面式キッチン /セキュリティ充実 /バリアフリー /駐輪場 /エレベーター /オートバス /高速ネット対応 /温水洗浄便座 /南庭 /TVモニタ付インターホン /リノベーション /高機能トイレ /都市近郊 /前面棟無 /通風良好 /食器洗乾燥機 /ウォークインクロゼット /浄水器 /ペット相談 /BS・CS・CATV /整備された歩道 /平坦地 /床暖房 /宅配ボックス /テラス /専用庭 /バイク置場 |
Property name 物件名 | | Zephyr Kawaguchi Aoki Felicia ゼファー川口青木フェリシア |
Price 価格 | | 25,800,000 yen 2580万円 |
Floor plan 間取り | | 3LDK 3LDK |
Units sold 販売戸数 | | 1 units 1戸 |
Total units 総戸数 | | 43 units 43戸 |
Occupied area 専有面積 | | 75.63 sq m (center line of wall) 75.63m2(壁芯) |
Other area その他面積 | | Balcony area: 15.87 sq m , Private garden: 21.66 sq m (use fee 400 yen / Month), Terrace: 10.47 sq m (use fee Mu) バルコニー面積:15.87m2、専用庭:21.66m2(使用料400円/月)、テラス:10.47m2(使用料無) |
Whereabouts floor / structures and stories 所在階/構造・階建 | | 1st floor / RC6 story 1階/RC6階建 |
Completion date 完成時期(築年月) | | December 2002 2002年12月 |
Address 住所 | | Kawaguchi City Prefecture Aoki 1 埼玉県川口市青木1 |
Traffic 交通 | | Saitama high-speed rail, "Kawaguchi Motogo" walk 8 minutes JR Keihin Tohoku Line "Kawaguchi" walk 19 minutes Saitama high-speed railway, "South Hatogaya" walk 18 minutes 埼玉高速鉄道「川口元郷」歩8分 JR京浜東北線「川口」歩19分 埼玉高速鉄道「南鳩ヶ谷」歩18分
|
Related links 関連リンク | | [Related Sites of this company] 【この会社の関連サイト】 |
Person in charge 担当者より | | The person in charge Kojima Flight 担当者小島 飛将 |
Contact お問い合せ先 | | TEL: 0800-603-7130 [Toll free] mobile phone ・ Also available from PHS Caller ID is not notified Please contact the "saw SUUMO (Sumo)" If it does not lead, If the real estate company TEL:0800-603-7130【通話料無料】携帯電話・PHSからもご利用いただけます 発信者番号は通知されません 「SUUMO(スーモ)を見た」と問い合わせください つながらない方、不動産会社の方は
|
Administrative expense 管理費 | | 11,625 yen / Month (consignment (commuting)) 1万1625円/月(委託(通勤)) |
Repair reserve 修繕積立金 | | 6130 yen / Month 6130円/月 |
Expenses 諸費用 | | Town council fee: 300 yen / Month 町会費:300円/月 |
Time residents 入居時期 | | Immediate available 即入居可 |
Whereabouts floor 所在階 | | 1st floor 1階 |
Direction 向き | | South 南 |
Renovation リフォーム | | 2013 November interior renovation completed (kitchen ・ bathroom ・ toilet ・ wall ・ all rooms ・ cleaning, other) 2013年11月内装リフォーム済(キッチン・浴室・トイレ・壁・全室・クリーニング、他) |
Overview and notices その他概要・特記事項 | | Contact: Kojima Flight 担当者:小島 飛将 |
Structure-storey 構造・階建て | | RC6 story RC6階建 |
Site of the right form 敷地の権利形態 | | Ownership 所有権 |
Use district 用途地域 | | Commerce 商業 |
Parking lot 駐車場 | | Nothing 無 |
Company profile 会社概要 | | <Mediation> Minister of Land, Infrastructure and Transport (2) No. 007684 + HOUSE Tokyo Office (Ltd.) propoxycarbonyl life Yubinbango104-0028, Chuo-ku, Tokyo Yaesu 2-5-12 Prairie Yaesu Building 5th floor <仲介>国土交通大臣(2)第007684号+HOUSE東京Office(株)プロポライフ〒104-0028 東京都中央区八重洲2-5-12 プレリー八重洲ビル5階 |