|
|
Kawaguchi City Prefecture
埼玉県川口市
|
|
JR Keihin Tohoku Line "Kawaguchi" walk 9 minutes
JR京浜東北線「川口」歩9分
|
|
◇ auto lock of confidence in Sunny space woman ◇ shine in a bright light from Kawaguchi Station walk 9 minutes ◇ south
◇川口駅徒歩9分 ◇南から明るい光が射し込む陽だまり空間 ◇女性にも安心のオートロック
|
|
◇ southwest ・ Per yang per 5 floor in the southeast corner room ・ Ventilation is good !! ◇ There Delivery Box
◇南西・南東角部屋で5階部分につき陽当たり・通風良好です!! ◇宅配ボックス有り
|
Features pickup 特徴ピックアップ | | Interior renovation / Facing south / System kitchen / Corner dwelling unit / Yang per good / All room storage / Japanese-style room / 2 or more sides balcony / South balcony / Flooring Chokawa / Bicycle-parking space / Elevator / Maintained sidewalk 内装リフォーム /南向き /システムキッチン /角住戸 /陽当り良好 /全居室収納 /和室 /2面以上バルコニー /南面バルコニー /フローリング張替 /駐輪場 /エレベーター /整備された歩道 |
Property name 物件名 | | Sky Front Tower Kawaguchi スカイフロントタワー川口 |
Price 価格 | | 26,800,000 yen 2680万円 |
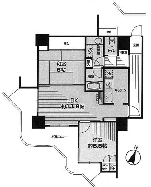
Floor plan 間取り | | 2LDK 2LDK |
Units sold 販売戸数 | | 1 units 1戸 |
Total units 総戸数 | | 177 units 177戸 |
Occupied area 専有面積 | | 61.51 sq m (center line of wall) 61.51m2(壁芯) |
Other area その他面積 | | Balcony area: 14.11 sq m バルコニー面積:14.11m2 |
Whereabouts floor / structures and stories 所在階/構造・階建 | | 5th floor / SRC29 basement floor 2-story 5階/SRC29階地下2階建 |
Completion date 完成時期(築年月) | | February 1994 1994年2月 |
Address 住所 | | Kawaguchi Kawaguchi 1 埼玉県川口市川口1 |
Traffic 交通 | | JR Keihin Tohoku Line "Kawaguchi" walk 9 minutes JR京浜東北線「川口」歩9分
|
Related links 関連リンク | | [Related Sites of this company] 【この会社の関連サイト】 |
Person in charge 担当者より | | Person in charge of real-estate and building Hasegawa Motoyuki Age: 30 Daigyokai Experience: happy with the four-year customer, I will do my best so that you can by the best advice. Thank you. 担当者宅建長谷川 素之年齢:30代業界経験:4年お客様にご満足頂ける、最良のアドバイスをさせて頂けますよう頑張ります。よろしくお願いいたします。 |
Contact お問い合せ先 | | TEL: 0800-603-0561 [Toll free] mobile phone ・ Also available from PHS Caller ID is not notified Please contact the "saw SUUMO (Sumo)" If it does not lead, If the real estate company TEL:0800-603-0561【通話料無料】携帯電話・PHSからもご利用いただけます 発信者番号は通知されません 「SUUMO(スーモ)を見た」と問い合わせください つながらない方、不動産会社の方は
|
Administrative expense 管理費 | | 16,300 yen / Month (consignment (commuting)) 1万6300円/月(委託(通勤)) |
Repair reserve 修繕積立金 | | 13,130 yen / Month 1万3130円/月 |
Time residents 入居時期 | | Consultation 相談 |
Whereabouts floor 所在階 | | 5th floor 5階 |
Direction 向き | | South 南 |
Renovation リフォーム | | January 2014 interior renovation will be completed (kitchen ・ wall ・ floor ・ Exchange cross Zhang et al.) 2014年1月内装リフォーム完了予定(キッチン・壁・床・クロス張替他) |
Overview and notices その他概要・特記事項 | | Contact: Hasegawa Motoyuki 担当者:長谷川 素之 |
Structure-storey 構造・階建て | | SRC29 basement floor 2-story SRC29階地下2階建 |
Site of the right form 敷地の権利形態 | | Ownership 所有権 |
Use district 用途地域 | | Semi-industrial 準工業 |
Parking lot 駐車場 | | Sky Mu 空無 |
Company profile 会社概要 | | <Mediation> Minister of Land, Infrastructure and Transport (3) No. 006,185 (one company) National Housing Industry Association (Corporation) metropolitan area real estate Fair Trade Council member Asahi Housing Corporation Omiya Yubinbango330-0845 Saitama Omiya-ku Nakamachi 1-54-3 Visionary III 4 floor <仲介>国土交通大臣(3)第006185号(一社)全国住宅産業協会会員 (公社)首都圏不動産公正取引協議会加盟朝日住宅(株)大宮店〒330-0845 埼玉県さいたま市大宮区仲町1-54-3 ビジョナリーIII 4階 |