2003September
24,800,000 yen, 3LDK, 87.77 sq m
Used Apartments » Tokai » Shizuoka Prefecture » Hamamatsu Nishi-ku
 
| | Hamamatsu, Shizuoka Prefecture, Nishi-ku, 静岡県浜松市西区 |
| Totetsu bus "Yada hill" walk 1 minute 遠鉄バス「矢田坂」歩1分 |
Features pickup 特徴ピックアップ | | Bathroom Dryer / Corner dwelling unit / Dish washing dryer / Pets Negotiable / Delivery Box / Private garden 浴室乾燥機 /角住戸 /食器洗乾燥機 /ペット相談 /宅配ボックス /専用庭 | Property name 物件名 | | La ・ Faure Irino ラ・フォーレ入野 | Price 価格 | | 24,800,000 yen 2480万円 | Floor plan 間取り | | 3LDK 3LDK | Units sold 販売戸数 | | 1 units 1戸 | Occupied area 専有面積 | | 87.77 sq m (26.55 tsubo) (center line of wall) 87.77m2(26.55坪)(壁芯) | Other area その他面積 | | Private garden: 20.99 sq m (use fee 2300 yen / Month) 専用庭:20.99m2(使用料2300円/月) | Whereabouts floor / structures and stories 所在階/構造・階建 | | 1st floor / RC7 story 1階/RC7階建 | Completion date 完成時期(築年月) | | September 2003 2003年9月 | Address 住所 | | Hamamatsu, Shizuoka Prefecture, Nishi-ku, Irino-cho 静岡県浜松市西区入野町 | Traffic 交通 | | Totetsu bus "Yada hill" walk 1 minute 遠鉄バス「矢田坂」歩1分 | Person in charge 担当者より | | Rep Okawara 担当者大川原 | Contact お問い合せ先 | | TEL: 0800-603-1737 [Toll free] mobile phone ・ Also available from PHS Caller ID is not notified Please contact the "saw SUUMO (Sumo)" If it does not lead, If the real estate company TEL:0800-603-1737【通話料無料】携帯電話・PHSからもご利用いただけます 発信者番号は通知されません 「SUUMO(スーモ)を見た」と問い合わせください つながらない方、不動産会社の方は
| Administrative expense 管理費 | | 13,200 yen / Month (consignment (commuting)) 1万3200円/月(委託(通勤)) | Repair reserve 修繕積立金 | | 4400 yen / Month 4400円/月 | Time residents 入居時期 | | Consultation 相談 | Whereabouts floor 所在階 | | 1st floor 1階 | Direction 向き | | South 南 | Overview and notices その他概要・特記事項 | | Contact: Okawara 担当者:大川原 | Structure-storey 構造・階建て | | RC7 story RC7階建 | Site of the right form 敷地の権利形態 | | Ownership 所有権 | Use district 用途地域 | | Two dwellings 2種住居 | Company profile 会社概要 | | <Mediation> Shizuoka Governor (10) No. 004034 (Ltd.) Masutore head office Yubinbango432-8061 Hamamatsu, Shizuoka Prefecture, Nishi-ku, Irino-cho, 20002-28 <仲介>静岡県知事(10)第004034号(株)マストレ本店〒432-8061 静岡県浜松市西区入野町20002-28 |
 Local appearance photo
現地外観写真
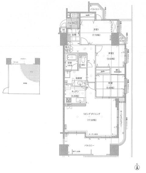
Floor plan間取り図  3LDK, Price 24,800,000 yen, Occupied area 87.77 sq m
3LDK、価格2480万円、専有面積87.77m2
 Living
リビング
 Non-living room
リビング以外の居室
 Garden
庭
Location
|