Used Apartments » Kanto » Tokyo » Adachi-ku
 
| | Adachi-ku, Tokyo 東京都足立区 |
| Isesaki Tobu "Takenotsuka" walk 17 minutes 東武伊勢崎線「竹ノ塚」歩17分 |
| ◆ New interior renovation properties around the water also renewed ◆ ◆水回りも一新の新規内装リノベーション物件◆ |
| ◆ Subjected to a new renovation by interior coordinator. Because there is also available, such as a model room, By all means, please check the local ◆ ◆インテリアコーディネーターによる新規リノベーションをほどこします。モデルルームなどのご用意もございますので、ぜひ現地をご確認ください◆ |
Features pickup 特徴ピックアップ | | It is close to the city / Interior renovation / System kitchen / Bathroom Dryer / All room storage / Flat to the station / A quiet residential area / 24 hours garbage disposal Allowed / Washbasin with shower / Plane parking / Flooring Chokawa / Bicycle-parking space / Elevator / Otobasu / High speed Internet correspondence / Warm water washing toilet seat / TV monitor interphone / Renovation / High-function toilet / Leafy residential area / Urban neighborhood / All living room flooring / water filter / BS ・ CS ・ CATV / Maintained sidewalk / Flat terrain / terrace 市街地が近い /内装リフォーム /システムキッチン /浴室乾燥機 /全居室収納 /駅まで平坦 /閑静な住宅地 /24時間ゴミ出し可 /シャワー付洗面台 /平面駐車場 /フローリング張替 /駐輪場 /エレベーター /オートバス /高速ネット対応 /温水洗浄便座 /TVモニタ付インターホン /リノベーション /高機能トイレ /緑豊かな住宅地 /都市近郊 /全居室フローリング /浄水器 /BS・CS・CATV /整備された歩道 /平坦地 /テラス | Property name 物件名 | | Cesar second Takenotsuka セザール第二竹ノ塚 | Price 価格 | | 13,780,000 yen 1378万円 | Floor plan 間取り | | 1LDK + S (storeroom) 1LDK+S(納戸) | Units sold 販売戸数 | | 1 units 1戸 | Total units 総戸数 | | 71 units 71戸 | Occupied area 専有面積 | | 50.11 sq m (center line of wall) 50.11m2(壁芯) | Other area その他面積 | | Private garden: 4.88 sq m (use fee Mu), Terrace: 13.12 sq m (use fee Mu) 専用庭:4.88m2(使用料無)、テラス:13.12m2(使用料無) | Whereabouts floor / structures and stories 所在階/構造・階建 | | 1st floor / RC4 story 1階/RC4階建 | Completion date 完成時期(築年月) | | January 1995 1995年1月 | Address 住所 | | Adachi-ku, Tokyo Nishihokima 2 東京都足立区西保木間2 | Traffic 交通 | | Isesaki Tobu "Takenotsuka" walk 17 minutes 東武伊勢崎線「竹ノ塚」歩17分
| Related links 関連リンク | | [Related Sites of this company] 【この会社の関連サイト】 | Person in charge 担当者より | | Person in charge of the sun Asaotto Age: 20's "hard to work, The motto cordial "to the people, And a satisfactory proposal. 担当者日向 麻夫年齢:20代「仕事に対して一生懸命、人に対して誠心誠意」をモットーに、満足のいく提案をします。 | Contact お問い合せ先 | | TEL: 0800-603-0565 [Toll free] mobile phone ・ Also available from PHS Caller ID is not notified Please contact the "saw SUUMO (Sumo)" If it does not lead, If the real estate company TEL:0800-603-0565【通話料無料】携帯電話・PHSからもご利用いただけます 発信者番号は通知されません 「SUUMO(スーモ)を見た」と問い合わせください つながらない方、不動産会社の方は
| Administrative expense 管理費 | | 9810 yen / Month (consignment (commuting)) 9810円/月(委託(通勤)) | Repair reserve 修繕積立金 | | 10,090 yen / Month 1万90円/月 | Time residents 入居時期 | | Consultation 相談 | Whereabouts floor 所在階 | | 1st floor 1階 | Direction 向き | | East 東 | Renovation リフォーム | | 2013 November interior renovation completed (kitchen ・ bathroom ・ toilet ・ wall ・ floor ・ all rooms) 2013年11月内装リフォーム済(キッチン・浴室・トイレ・壁・床・全室) | Overview and notices その他概要・特記事項 | | Contact: Hinata Asaotto 担当者:日向 麻夫 | Structure-storey 構造・階建て | | RC4 story RC4階建 | Site of the right form 敷地の権利形態 | | Ownership 所有権 | Use district 用途地域 | | Residential 近隣商業 | Parking lot 駐車場 | | Sky Mu 空無 | Company profile 会社概要 | | <Mediation> Minister of Land, Infrastructure and Transport (3) No. 006,185 (one company) National Housing Industry Association (Corporation) metropolitan area real estate Fair Trade Council member Asahi housing (stock) Ueno shop Yubinbango110-0005, Taito-ku, Tokyo Ueno 2-13-10 Asahi Seimei Building 6th floor <仲介>国土交通大臣(3)第006185号(一社)全国住宅産業協会会員 (公社)首都圏不動産公正取引協議会加盟朝日住宅(株)上野店〒110-0005 東京都台東区上野2-13-10 朝日生命ビル6階 | Construction 施工 | | Dainihondoboku Co., Ltd. 大日本土木株式会社 |
Livingリビング  Same specifications is a picture.
同仕様写真です。
 Local appearance photo
現地外観写真
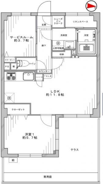
Floor plan間取り図  1LDK+S, Price 13,780,000 yen, Occupied area 50.11 sq m
1LDK+S、価格1378万円、専有面積50.11m2
Bathroom浴室  Same specifications is a picture.
同仕様写真です。
Kitchenキッチン  Same specifications is a picture.
同仕様写真です。
Non-living roomリビング以外の居室  Same specifications is a picture.
同仕様写真です。
Entrance玄関  Same specifications is a picture.
同仕様写真です。
Wash basin, toilet洗面台・洗面所  Same specifications is a picture.
同仕様写真です。
Toiletトイレ  Same specifications is a picture.
同仕様写真です。
Other Equipmentその他設備  Same specifications is a picture.
同仕様写真です。
Same specifications photos (Other introspection)同仕様写真(その他内観)  Same specifications is a picture.
同仕様写真です。
 View photos from the dwelling unit
住戸からの眺望写真
Same specifications photo (bathroom)同仕様写真(浴室)  Same specifications is a picture.
同仕様写真です。
Non-living roomリビング以外の居室  Same specifications is a picture.
同仕様写真です。
Other Equipmentその他設備  Same specifications is a picture.
同仕様写真です。
Other introspectionその他内観  Same specifications is a picture.
同仕様写真です。
Same specifications photo (bathroom)同仕様写真(浴室)  Same specifications is a picture.
同仕様写真です。
Non-living roomリビング以外の居室  Same specifications is a picture.
同仕様写真です。
Other introspectionその他内観  Same specifications is a picture.
同仕様写真です。
 Same specifications is a picture.
同仕様写真です。
Location
|