|
|
Adachi-ku, Tokyo
東京都足立区
|
|
Tokyo Metro Chiyoda Line "Ayase" walk 3 minutes
東京メトロ千代田線「綾瀬」歩3分
|
|
Commute ・ Convenient to go to school Chiyoda Line, It is conveniently located apartment of "Ayase Station" 3-minute walk of the first train. The rooms are also good ventilation is also good per sun. Please compared to the now rent.
通勤・通学に便利な千代田線、始発の『綾瀬駅』徒歩3分の好立地なマンションです。お部屋は陽当たりも良く風通しも良好です。今の家賃と比べてください。
|
Features pickup 特徴ピックアップ | | Facing south / System kitchen / Yang per good / Japanese-style room / High floor / Warm water washing toilet seat / Dish washing dryer 南向き /システムキッチン /陽当り良好 /和室 /高層階 /温水洗浄便座 /食器洗乾燥機 |
Property name 物件名 | | Stoke Mansion Ayase ストークマンション綾瀬 |
Price 価格 | | 14.9 million yen 1490万円 |
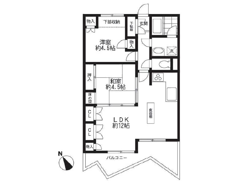
Floor plan 間取り | | 2LDK 2LDK |
Units sold 販売戸数 | | 1 units 1戸 |
Total units 総戸数 | | 61 units 61戸 |
Occupied area 専有面積 | | 50.78 sq m (center line of wall) 50.78m2(壁芯) |
Whereabouts floor / structures and stories 所在階/構造・階建 | | 7th floor / SRC9-story part RC 7階/SRC9階建一部RC |
Completion date 完成時期(築年月) | | March 1977 1977年3月 |
Address 住所 | | Adachi-ku, Tokyo Ayase 2 東京都足立区綾瀬2 |
Traffic 交通 | | Tokyo Metro Chiyoda Line "Ayase" walk 3 minutes 東京メトロ千代田線「綾瀬」歩3分
|
Related links 関連リンク | | [Related Sites of this company] 【この会社の関連サイト】 |
Person in charge 担当者より | | Rep Sato Mamiko "a forward-only" take of your customers, I hope you can support that step. Come Please feel free to contact us. 担当者佐藤 真美子「前進あるのみ」御客様の踏み出す、その一歩をサポート出来たらと思います。是非お気軽にご相談下さい。 |
Contact お問い合せ先 | | TEL: 0800-805-3849 [Toll free] mobile phone ・ Also available from PHS Caller ID is not notified Please contact the "saw SUUMO (Sumo)" If it does not lead, If the real estate company TEL:0800-805-3849【通話料無料】携帯電話・PHSからもご利用いただけます 発信者番号は通知されません 「SUUMO(スーモ)を見た」と問い合わせください つながらない方、不動産会社の方は
|
Administrative expense 管理費 | | 11,300 yen / Month (consignment (commuting)) 1万1300円/月(委託(通勤)) |
Repair reserve 修繕積立金 | | 13,200 yen / Month 1万3200円/月 |
Expenses 諸費用 | | Union dues: 300 yen / Month 組合費:300円/月 |
Time residents 入居時期 | | Consultation 相談 |
Whereabouts floor 所在階 | | 7th floor 7階 |
Direction 向き | | South 南 |
Overview and notices その他概要・特記事項 | | Contact: Sato Mamiko 担当者:佐藤 真美子 |
Structure-storey 構造・階建て | | SRC9-story part RC SRC9階建一部RC |
Site of the right form 敷地の権利形態 | | Ownership 所有権 |
Parking lot 駐車場 | | Sky Mu 空無 |
Company profile 会社概要 | | <Mediation> Minister of Land, Infrastructure and Transport (4) No. 005542 (Corporation) Tokyo Metropolitan Government Building Lots and Buildings Transaction Business Association (Corporation) metropolitan area real estate Fair Trade Council member (Ltd.) House Plaza condominium sales department Yubinbango120-0005 Adachi-ku, Tokyo Ayase 4-7-6 <仲介>国土交通大臣(4)第005542号(公社)東京都宅地建物取引業協会会員 (公社)首都圏不動産公正取引協議会加盟(株)ハウスプラザマンション営業部〒120-0005 東京都足立区綾瀬4-7-6 |
Construction 施工 | | (Ltd.) Okumura Corporation (株)奥村組 |