|
|
Adachi-ku, Tokyo
東京都足立区
|
|
Keisei Main Line "Senjuohashi" walk 4 minutes
京成本線「千住大橋」歩4分
|
|
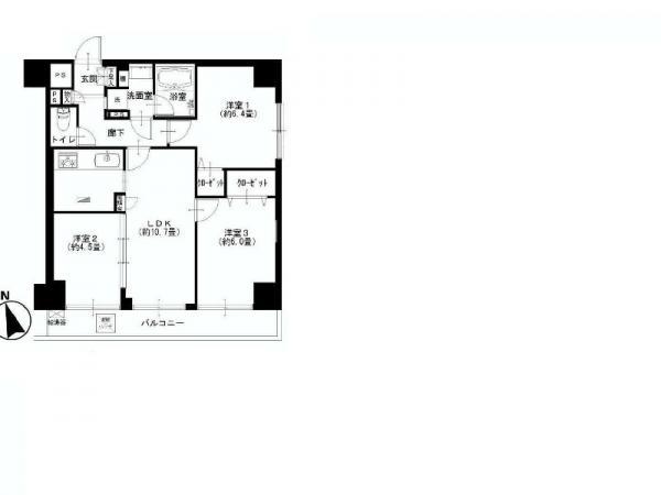
"Senjuohashi" station A 4-minute walk "Kita-Senju" station It is a 2-Station apartment available a 15-minute walk. Also good 3 rooms have south facing balcony per Tamehi of 9 floor.
『千住大橋』駅 徒歩4分 『北千住』駅 徒歩15分の2駅利用可能なマンションです。9階部分の為陽当たりも良く3部屋南バルコニーに面しています。
|
Property name 物件名 | | Green Park Kita-Senju 3 1 Ichibankan グリーンパーク北千住3 1番館 |
Price 価格 | | 25,900,000 yen 2590万円 |
Floor plan 間取り | | 3LDK 3LDK |
Units sold 販売戸数 | | 1 units 1戸 |
Total units 総戸数 | | 29 units 29戸 |
Occupied area 専有面積 | | 60 sq m (center line of wall) 60m2(壁芯) |
Other area その他面積 | | Balcony area: 7.3 sq m バルコニー面積:7.3m2 |
Whereabouts floor / structures and stories 所在階/構造・階建 | | 9 floor / SRC14 story 9階/SRC14階建 |
Completion date 完成時期(築年月) | | November 1991 1991年11月 |
Address 住所 | | Adachi-ku, Tokyo Senjuhashido cho 東京都足立区千住橋戸町 |
Traffic 交通 | | Keisei Main Line "Senjuohashi" walk 4 minutes Tokyo Metro Chiyoda Line "Senju" walk 15 minutes JR Joban Line "Senju" walk 15 minutes 京成本線「千住大橋」歩4分 東京メトロ千代田線「北千住」歩15分 JR常磐線「北千住」歩15分 |
Related links 関連リンク | | [Related Sites of this company] 【この会社の関連サイト】 |
Person in charge 担当者より | | The person in charge Tanaka Kenshiro Age: Tanaka 20s rookie. I is of still studying, To cherish the encounter with our customers, So that the smile is to find a home that does not constantly, Utmost help. 担当者田中 健士郎年齢:20代新人の田中です。まだまだ勉強中の私ですが、お客様との出会いを大切にし、笑顔が絶えないお家を見つけられるよう、精一杯お手伝いします。 |
Contact お問い合せ先 | | TEL: 0800-602-7359 [Toll free] mobile phone ・ Also available from PHS Caller ID is not notified Please contact the "saw SUUMO (Sumo)" If it does not lead, If the real estate company TEL:0800-602-7359【通話料無料】携帯電話・PHSからもご利用いただけます 発信者番号は通知されません 「SUUMO(スーモ)を見た」と問い合わせください つながらない方、不動産会社の方は
|
Administrative expense 管理費 | | 10,500 yen / Month (consignment (cyclic)) 1万500円/月(委託(巡回)) |
Repair reserve 修繕積立金 | | 7700 yen / Month 7700円/月 |
Time residents 入居時期 | | Immediate available 即入居可 |
Whereabouts floor 所在階 | | 9 floor 9階 |
Direction 向き | | South 南 |
Renovation リフォーム | | 2013 September interior renovation completed (kitchen ・ bathroom ・ toilet ・ wall ・ floor) 2013年9月内装リフォーム済(キッチン・浴室・トイレ・壁・床) |
Overview and notices その他概要・特記事項 | | Contact: Tanaka Kenshiro 担当者:田中 健士郎 |
Structure-storey 構造・階建て | | SRC14 story SRC14階建 |
Site of the right form 敷地の権利形態 | | Ownership 所有権 |
Use district 用途地域 | | Commerce 商業 |
Parking lot 駐車場 | | Nothing 無 |
Company profile 会社概要 | | <Mediation> Minister of Land, Infrastructure and Transport (4) No. 005542 (Corporation) Tokyo Metropolitan Government Building Lots and Buildings Transaction Business Association (Corporation) metropolitan area real estate Fair Trade Council member (Ltd.) House Plaza headquarters sales 5 parts Yubinbango120-0005 Adachi-ku, Tokyo Ayase 4-7-6 <仲介>国土交通大臣(4)第005542号(公社)東京都宅地建物取引業協会会員 (公社)首都圏不動産公正取引協議会加盟(株)ハウスプラザ本社営業5部〒120-0005 東京都足立区綾瀬4-7-6 |
Construction 施工 | | (Ltd.) Chizakikogyo (株)地崎工業 |