2007February
33,800,000 yen, 2LDK, 83.85 sq m
Used Apartments » Kanto » Tokyo » Adachi-ku
 
| | Adachi-ku, Tokyo 東京都足立区 |
| JR Joban Line "Kameari" walk 15 minutes JR常磐線「亀有」歩15分 |
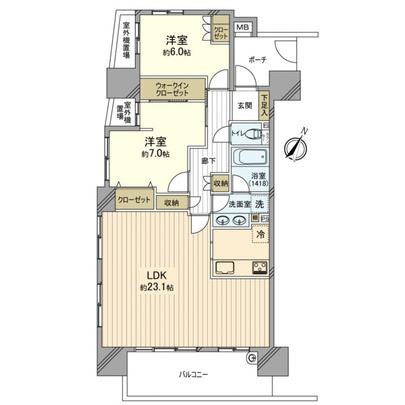
Property name 物件名 | | Tokyo Garden Suite トーキョーガーデンスイート | Price 価格 | | 33,800,000 yen 3380万円 | Floor plan 間取り | | 2LDK 2LDK | Units sold 販売戸数 | | 1 units 1戸 | Total units 総戸数 | | 555 units 555戸 | Occupied area 専有面積 | | 83.85 sq m (center line of wall) 83.85m2(壁芯) | Other area その他面積 | | Balcony area: 12.1 sq m バルコニー面積:12.1m2 | Whereabouts floor / structures and stories 所在階/構造・階建 | | 10th floor / RC15 floors 1 underground story 10階/RC15階地下1階建 | Completion date 完成時期(築年月) | | February 2007 2007年2月 | Address 住所 | | Adachi-ku, Tokyo Towa 3 東京都足立区東和3 | Traffic 交通 | | JR Joban Line "Kameari" walk 15 minutes on the Tokyo Metro Chiyoda Line "Kitaayase" walk 13 minutes JR常磐線「亀有」歩15分東京メトロ千代田線「北綾瀬」歩13分
| Person in charge 担当者より | | Rep Yoshio Kanai 担当者金井良雄 | Contact お問い合せ先 | | Mitsui Rehouse Ayase shop Mitsui Fudosan Realty (Ltd.) TEL: 0120-051431 [Toll free] Please contact the "saw SUUMO (Sumo)" 三井のリハウス綾瀬店三井不動産リアルティ(株)TEL:0120-051431【通話料無料】「SUUMO(スーモ)を見た」と問い合わせください | Administrative expense 管理費 | | 15,700 yen / Month (consignment (resident)) 1万5700円/月(委託(常駐)) | Repair reserve 修繕積立金 | | 6743 yen / Month 6743円/月 | Time residents 入居時期 | | Consultation 相談 | Whereabouts floor 所在階 | | 10th floor 10階 | Direction 向き | | South 南 | Other limitations その他制限事項 | | Other expenses 710 yen / Month TV distribution facility use fee month Club membership fee per month 300 yen TV distribution facility use fee per month 410 yen separately Yes Indoor furnishings, In real estate buying and selling interest その他費用710円/月 TV配信設備利用料月 クラブ会費月額300円 TV配信設備利用料月額410円別途有 室内の調度品は、不動産売買対象に | Overview and notices その他概要・特記事項 | | Contact: Yoshio Kanai 担当者:金井良雄 | Structure-storey 構造・階建て | | RC15 floors 1 underground story RC15階地下1階建 | Site of the right form 敷地の権利形態 | | Ownership 所有権 | Use district 用途地域 | | One middle and high, One dwelling 1種中高、1種住居 | Company profile 会社概要 | | <Mediation> Minister of Land, Infrastructure and Transport (13) No. 000777 (one company) Property distribution management Association (Corporation) metropolitan area real estate Fair Trade Council member Mitsui Rehouse Ayase shop Mitsui Fudosan Realty Co. Yubinbango120-0005 Adachi-ku, Tokyo Ayase 3-6-2 Bonnard 16BLD 1 floor <仲介>国土交通大臣(13)第000777号(一社)不動産流通経営協会会員 (公社)首都圏不動産公正取引協議会加盟三井のリハウス綾瀬店三井不動産リアルティ(株)〒120-0005 東京都足立区綾瀬3-6-2 ボナール16BLD 1階 |
 Local appearance photo
現地外観写真
 Floor plan
間取り図
Location
|