|
|
Adachi-ku, Tokyo
東京都足立区
|
|
Isesaki Tobu "Nishiarai" walk 14 minutes
東武伊勢崎線「西新井」歩14分
|
|
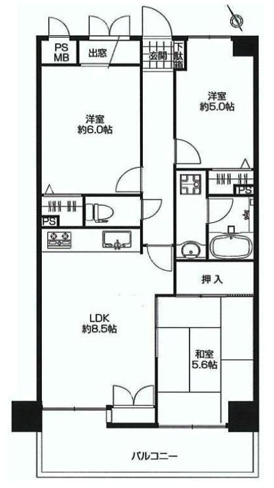
South-facing 3LDK overlooking the Sky Tree and Mount Fuji, New interior renovation completed, 5 floor, Good view
スカイツリーや富士山を望む南向き3LDK、新規内装リフォーム済、5階部分、眺望良好
|
|
・ 5 floor of bright and airy 3LDK. ・ Interior renovation completed (kitchen, bathroom, bathroom, ) ・ Good view from the south balcony overlooking the Sky Tree and Mount Fuji. ・ Super 357m, Within walking distance of a convenience store 181m. ・ Shimane elementary school 640m, June Junior High School 880m
・5階部分の明るく開放的な3LDK。・内装リフォーム済(キッチン、浴室、洗面室、)・南面バルコニーからスカイツリーや富士山を望む眺望良好。・スーパー357m、コンビニ181mの徒歩圏内。・島根小学校640m、六月中学校880m
|
Features pickup 特徴ピックアップ | | Interior renovation / Facing south / System kitchen / Yang per good / Japanese-style room / South balcony / Elevator / TV monitor interphone / Good view 内装リフォーム /南向き /システムキッチン /陽当り良好 /和室 /南面バルコニー /エレベーター /TVモニタ付インターホン /眺望良好 |
Property name 物件名 | | Lions Garden Nishiarai second ライオンズガーデン西新井第2 |
Price 価格 | | 20,990,000 yen 2099万円 |
Floor plan 間取り | | 3LDK 3LDK |
Units sold 販売戸数 | | 1 units 1戸 |
Total units 総戸数 | | 76 units 76戸 |
Occupied area 専有面積 | | 58.2 sq m (17.60 tsubo) (center line of wall) 58.2m2(17.60坪)(壁芯) |
Other area その他面積 | | Balcony area: 7.32 sq m バルコニー面積:7.32m2 |
Whereabouts floor / structures and stories 所在階/構造・階建 | | 5th floor / RC7 story 5階/RC7階建 |
Completion date 完成時期(築年月) | | January 1995 1995年1月 |
Address 住所 | | Adachi-ku, Tokyo, Shimane 4 東京都足立区島根4 |
Traffic 交通 | | Isesaki Tobu "Nishiarai" walk 14 minutes 東武伊勢崎線「西新井」歩14分
|
Person in charge 担当者より | | The person in charge Inoue Hidenobu Age: 20 Daigyokai Experience: I am allowed to help for the big shopping of five years house purchase, I feel the responsibility, There is also in the challenging. As you can feel the joy, It will be supported by the full force. 担当者井上 英信年齢:20代業界経験:5年住宅購入という大きなお買物についてお手伝いさせて頂く事は、責任を感じ、またやりがいでもあります。楽しさを感じて頂けるよう、全力でサポートさせて頂きます。 |
Contact お問い合せ先 | | TEL: 0800-603-6306 [Toll free] mobile phone ・ Also available from PHS Caller ID is not notified Please contact the "saw SUUMO (Sumo)" If it does not lead, If the real estate company TEL:0800-603-6306【通話料無料】携帯電話・PHSからもご利用いただけます 発信者番号は通知されません 「SUUMO(スーモ)を見た」と問い合わせください つながらない方、不動産会社の方は
|
Administrative expense 管理費 | | 11,100 yen / Month (consignment (commuting)) 1万1100円/月(委託(通勤)) |
Repair reserve 修繕積立金 | | 8730 yen / 8730円/ |
Time residents 入居時期 | | Consultation 相談 |
Whereabouts floor 所在階 | | 5th floor 5階 |
Direction 向き | | South 南 |
Renovation リフォーム | | 2013 September interior renovation completed (kitchen ・ bathroom ・ toilet ・ floor) 2013年9月内装リフォーム済(キッチン・浴室・トイレ・床) |
Overview and notices その他概要・特記事項 | | Contact: Inoue Hidenobu 担当者:井上 英信 |
Structure-storey 構造・階建て | | RC7 story RC7階建 |
Site of the right form 敷地の権利形態 | | Ownership 所有権 |
Parking lot 駐車場 | | Site (17,000 yen) 敷地内(1万7000円) |
Company profile 会社概要 | | <Mediation> Governor of Tokyo (1) the first 089,301 No. Century 21 (Ltd.) dwelling & amp; Smile Yubinbango121-0823 Adachi-ku, Tokyo diplomatic 1-24-25 <仲介>東京都知事(1)第089301号センチュリー21(株)住まい&スマイル〒121-0823 東京都足立区伊興1-24-25 |