1979April
26,900,000 yen, 2LDK, 49.97 sq m
Used Apartments » Kanto » Tokyo » Bunkyo
 
| | Bunkyo-ku, Tokyo 東京都文京区 |
| JR Yamanote Line "Komagome" walk 12 minutes JR山手線「駒込」歩12分 |
| Popular Bunkyo area, Living environment favorable convenient for transportation 3 Line 2 stations available 人気の文京区エリア、住環境良好 交通至便 3路線2駅利用可能 |
Property name 物件名 | | Lions Mansion Komagome second ライオンズマンション駒込第2 | Price 価格 | | 26,900,000 yen 2690万円 | Floor plan 間取り | | 2LDK 2LDK | Units sold 販売戸数 | | 1 units 1戸 | Total units 総戸数 | | 53 houses 53戸 | Occupied area 専有面積 | | 49.97 sq m (center line of wall) 49.97m2(壁芯) | Other area その他面積 | | Balcony area: 3.46 sq m バルコニー面積:3.46m2 | Whereabouts floor / structures and stories 所在階/構造・階建 | | 6th floor / SRC9 story 6階/SRC9階建 | Completion date 完成時期(築年月) | | April 1979 1979年4月 | Address 住所 | | Bunkyo-ku, Tokyo Honkomagome 4 東京都文京区本駒込4 | Traffic 交通 | | JR Yamanote Line "Komagome" walk 12 minutes JR山手線「駒込」歩12分
| Contact お問い合せ先 | | TEL: 0800-601-5277 [Toll free] mobile phone ・ Also available from PHS Caller ID is not notified Please contact the "saw SUUMO (Sumo)" If it does not lead, If the real estate company TEL:0800-601-5277【通話料無料】携帯電話・PHSからもご利用いただけます 発信者番号は通知されません 「SUUMO(スーモ)を見た」と問い合わせください つながらない方、不動産会社の方は
| Administrative expense 管理費 | | 14,000 yen / Month (consignment (commuting)) 1万4000円/月(委託(通勤)) | Repair reserve 修繕積立金 | | 9490 yen / Month 9490円/月 | Time residents 入居時期 | | Immediate available 即入居可 | Whereabouts floor 所在階 | | 6th floor 6階 | Direction 向き | | Southeast 南東 | Structure-storey 構造・階建て | | SRC9 story SRC9階建 | Site of the right form 敷地の権利形態 | | Ownership 所有権 | Use district 用途地域 | | Commerce 商業 | Parking lot 駐車場 | | Sky Mu 空無 | Company profile 会社概要 | | <Seller> Minister of Land, Infrastructure and Transport (2) No. 007356 (Ltd.) Total Estate Tokyo Branch Yubinbango105-0001 Toranomon, Minato-ku, Tokyo 2-3-17 Toranomon 2-chome Tower 8th floor <売主>国土交通大臣(2)第007356号(株)トータルエステート東京支社〒105-0001 東京都港区虎ノ門2-3-17 虎ノ門2丁目タワー8階 | Construction 施工 | | Uekigumi 植木組 |
 Living
リビング
 Local appearance photo
現地外観写真
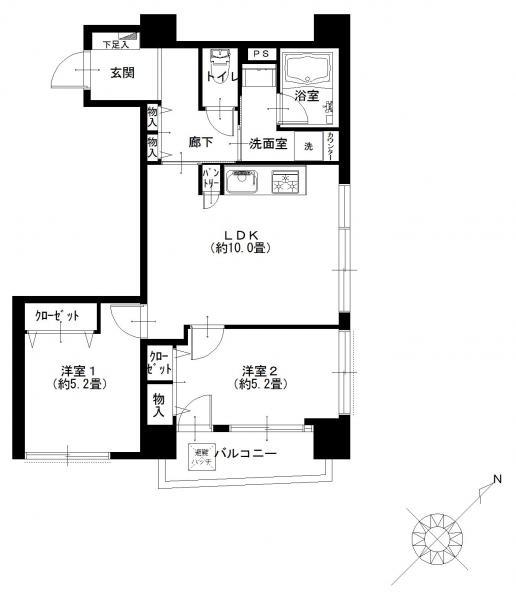
Floor plan間取り図  2LDK, Price 26,900,000 yen, Occupied area 49.97 sq m , Balcony area 3.46 sq m
2LDK、価格2690万円、専有面積49.97m2、バルコニー面積3.46m2
 Living
リビング
 Bathroom
浴室
 Kitchen
キッチン
 Non-living room
リビング以外の居室
 Wash basin, toilet
洗面台・洗面所
 Toilet
トイレ
 Living
リビング
 Non-living room
リビング以外の居室
 Living
リビング
 Living
リビング
Location
|