Used Apartments » Kanto » Tokyo » Bunkyo
 
| | Bunkyo-ku, Tokyo 東京都文京区 |
| Tokyo Metro Yurakucho Line "Edogawabashi" walk 5 minutes 東京メトロ有楽町線「江戸川橋」歩5分 |
| Southwest Corner Room, Day view good! ! Room facilities, Crime prevention security also enhance! Kitchen storage rack, Western-style door option use, The room is very beautiful! At any time you can move please visit once. 南西角部屋、日当たり眺望良好!!室内設備、防犯セキュリティーも充実!キッチン収納棚、洋室扉オプション使用、室内大変きれいです!いつでも入居可能です一度ご覧ください。 |
| ◆ Elementary school walk about 7 minutes, Junior high school about a 10-minute walk! ◆ 9 floor per, View, Sunny! ◆ 1 station 3 minutes from Edogawabashi to Iidabashi Station. JR Sobu Line ・ Tokyo Metro Nanboku Line ・ Even to such as the Toei Oedo Line A possible transfer, Access to the city in all directions Allowed! ◆ Edogawa Park and New Edogawa Park, Tokyo, etc. Hotel Chinzan-so with a Japanese garden, Child-rearing, Rich is to explore Environment is equipped ◆小学校徒歩約7分、中学校徒歩約10分!◆9階につき、眺望、日当たり良好!◆江戸川橋駅から飯田橋駅へは1駅3分。JR総武線・東京メトロ南北線・都営大江戸線などへも 乗換可能で、都心全方向へアクセス可!◆江戸川公園と新江戸川公園、日本庭園を備えたホテル椿山荘東京等、子育て、散策には豊か な環境が揃ってます |
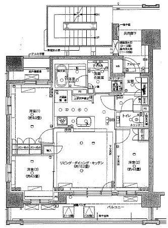
Features pickup 特徴ピックアップ | | Immediate Available / Fiscal year Available / It is close to the city / System kitchen / Corner dwelling unit / Yang per good / High floor / Security enhancement / Elevator / Warm water washing toilet seat / Urban neighborhood / Mu front building / All living room flooring / Good view / Southwestward / Dish washing dryer / water filter / Maintained sidewalk / Flat terrain / Floor heating / Delivery Box 即入居可 /年度内入居可 /市街地が近い /システムキッチン /角住戸 /陽当り良好 /高層階 /セキュリティ充実 /エレベーター /温水洗浄便座 /都市近郊 /前面棟無 /全居室フローリング /眺望良好 /南西向き /食器洗乾燥機 /浄水器 /整備された歩道 /平坦地 /床暖房 /宅配ボックス | Property name 物件名 | | Otowa Park House 音羽パークハウス | Price 価格 | | 51,500,000 yen 5150万円 | Floor plan 間取り | | 3LDK 3LDK | Units sold 販売戸数 | | 1 units 1戸 | Occupied area 専有面積 | | 62.44 sq m (center line of wall) 62.44m2(壁芯) | Other area その他面積 | | Balcony area: 12.27 sq m バルコニー面積:12.27m2 | Whereabouts floor / structures and stories 所在階/構造・階建 | | 9 floor / RC13 story 9階/RC13階建 | Completion date 完成時期(築年月) | | August 2007 2007年8月 | Address 住所 | | Bunkyo-ku, Tokyo Otowa 1 東京都文京区音羽1 | Traffic 交通 | | Tokyo Metro Yurakucho Line "Edogawabashi" walk 5 minutes 東京メトロ有楽町線「江戸川橋」歩5分
| Contact お問い合せ先 | | Soryine (Ltd.) TEL: 0800-601-6317 [Toll free] mobile phone ・ Also available from PHS Caller ID is not notified Please contact the "saw SUUMO (Sumo)" If it does not lead, If the real estate company ソリィーネ(株)TEL:0800-601-6317【通話料無料】携帯電話・PHSからもご利用いただけます 発信者番号は通知されません 「SUUMO(スーモ)を見た」と問い合わせください つながらない方、不動産会社の方は
| Administrative expense 管理費 | | 17,764 yen / Month (consignment (cyclic)) 1万7764円/月(委託(巡回)) | Repair reserve 修繕積立金 | | ¥ 10,000 / Month 1万円/月 | Time residents 入居時期 | | Immediate available 即入居可 | Whereabouts floor 所在階 | | 9 floor 9階 | Direction 向き | | Southwest 南西 | Structure-storey 構造・階建て | | RC13 story RC13階建 | Site of the right form 敷地の権利形態 | | Ownership 所有権 | Use district 用途地域 | | Commerce 商業 | Company profile 会社概要 | | <Mediation> Governor of Tokyo (1) No. 094725 Soryine Co. Yubinbango183-0033 Fuchu, Tokyo Bubai cho 2-28-4 <仲介>東京都知事(1)第094725号ソリィーネ(株)〒183-0033 東京都府中市分梅町2-28-4 | Construction 施工 | | Kiuchikensetsu (Ltd.) 木内建設(株) |
Local appearance photo現地外観写真  Since there is no the entire building sunny!
全面建物が無いので日当たり良好!
Floor plan間取り図  3LDK, Price 51,500,000 yen, Occupied area 62.44 sq m , Balcony area 12.27 sq m All rooms flooring! Stylish interior!
3LDK、価格5150万円、専有面積62.44m2、バルコニー面積12.27m2 全室フローリング!オシャレな内装です!
Livingリビング  You may view, Sun will come in and Shanshan!
見晴らしも良く、陽がサンサンと入ってきます!
 Living taken from the balcony side
バルコニー側から撮影したリビング
 Bathroom
浴室
Kitchenキッチン  And spot lighting is installed, It becomes a stylish space. Storage was put in the option
スポット照明が設置されており、おしゃれな空間となります。収納はオプションで付けました
Non-living roomリビング以外の居室  It is a photograph of the corner room. Door was put in the option
角部屋の写真です。扉はオプションで付けました
 Entrance
玄関
 Wash basin, toilet
洗面台・洗面所
Receipt収納  Closet of the northeast side of the room
北東側のお部屋のクローゼット
Entranceエントランス  Common areas
共用部
Balconyバルコニー  Spacious balcony!
広々バルコニー!
Otherその他  It is hand-wash facilities located in the toilet.
トイレ内にある手洗い場です。
 Bathroom
浴室
 Kitchen
キッチン
Non-living roomリビング以外の居室  North-east side of the room
北東側のお部屋です
Entrance玄関  With lighting at the feet, It is very bright.
足元に照明がついて、とても明るいです。
Kitchenキッチン  Gas stove 3-neck
ガスコンロ3口
 dishwasher
食器洗い機
 Sink photo, There is a water purification cartridge.
シンク写真、浄水のカートリッジがあります。
Location
|