|
|
Edogawa-ku, Tokyo
東京都江戸川区
|
|
Tokyo Metro Tozai Line "Nishikasai" walk 9 minutes
東京メトロ東西線「西葛西」歩9分
|
|
・ Shopping center on site, There is a post office life convenient community ・ Freshening the town green space near, Living environment favorable ・ Furnished new full renovation ・ Equipment specifications of enhancement ・ On the day preview Allowed
・敷地内にショッピングセンター、郵便局がある生活至便なコミュニティ ・清新町緑地近く、住環境良好 ・家具付き新規フルリノベーション ・充実の設備仕様 ・当日内覧可
|
|
What is the interest rate of the mortgage percent .. total amount of the expenses included How much .. so This listing is I think there are a .. worry a lot how much can discount, but I will answer all, Please do not hesitate to contact us. ・ In the case of our alliance mortgage available, The entire period up to -1.7 percent preferential treatment. ・ The application, Conditions, there is a review. ・ Weekdays, Saturday and Sunday, will guide you regardless of holiday. ・ It can come to pick you up in the car.
住宅ローンの金利は何パーセント..諸費用込みの総額はいくら..この物件はどれだけ値引きできるか..心配事たくさんあると思いますが全てお答え致しますので、お気軽にお問い合わせくださいませ。・弊社の提携住宅ローン利用の場合、全期間最大-1.7パーセント優遇。・適用には、条件,審査がございます。・平日,土日,祝日問わずご案内致します。・車でお迎えに伺います。
|
Features pickup 特徴ピックアップ | | Corresponding to the flat-35S / Fit renovation / Year Available / Immediate Available / 2 along the line more accessible / Fiscal year Available / It is close to golf course / It is close to Tennis Court / Super close / It is close to the city / Interior renovation / System kitchen / Bathroom Dryer / Yang per good / All room storage / Flat to the station / A quiet residential area / Around traffic fewer / Washbasin with shower / Security enhancement / Barrier-free / Plane parking / Flooring Chokawa / Bicycle-parking space / Elevator / Otobasu / Warm water washing toilet seat / TV monitor interphone / High-function toilet / Leafy residential area / Urban neighborhood / Mu front building / Ventilation good / All living room flooring / Dish washing dryer / Walk-in closet / water filter / Pets Negotiable / BS ・ CS ・ CATV / Maintained sidewalk / Flat terrain / Readjustment land within / Bike shelter フラット35Sに対応 /適合リノベーション /年内入居可 /即入居可 /2沿線以上利用可 /年度内入居可 /ゴルフ場が近い /テニスコートが近い /スーパーが近い /市街地が近い /内装リフォーム /システムキッチン /浴室乾燥機 /陽当り良好 /全居室収納 /駅まで平坦 /閑静な住宅地 /周辺交通量少なめ /シャワー付洗面台 /セキュリティ充実 /バリアフリー /平面駐車場 /フローリング張替 /駐輪場 /エレベーター /オートバス /温水洗浄便座 /TVモニタ付インターホン /高機能トイレ /緑豊かな住宅地 /都市近郊 /前面棟無 /通風良好 /全居室フローリング /食器洗乾燥機 /ウォークインクロゼット /浄水器 /ペット相談 /BS・CS・CATV /整備された歩道 /平坦地 /区画整理地内 /バイク置場 |
Property name 物件名 | | Freshening Plaza 4 Building 清新プラザ4号棟 |
Price 価格 | | 31,400,000 yen 3140万円 |
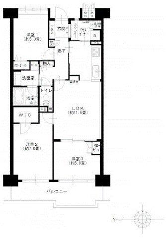
Floor plan 間取り | | 3LDK 3LDK |
Units sold 販売戸数 | | 1 units 1戸 |
Total units 総戸数 | | 63 units 63戸 |
Occupied area 専有面積 | | 67.62 sq m (center line of wall) 67.62m2(壁芯) |
Other area その他面積 | | Balcony area: 10.02 sq m バルコニー面積:10.02m2 |
Whereabouts floor / structures and stories 所在階/構造・階建 | | 3rd floor / SRC10 story 3階/SRC10階建 |
Completion date 完成時期(築年月) | | August 1983 1983年8月 |
Address 住所 | | Edogawa-ku, Tokyo freshness cho 東京都江戸川区清新町1 |
Traffic 交通 | | Tokyo Metro Tozai Line "Nishikasai" walk 9 minutes Tokyo Metro Tozai Line "Kasai" walk 20 minutes JR Keiyo Line "Kasai Seaside Park" walk 24 minutes 東京メトロ東西線「西葛西」歩9分 東京メトロ東西線「葛西」歩20分 JR京葉線「葛西臨海公園」歩24分
|
Person in charge 担当者より | | Rep Huashan Light Age: 20 Daigyokai Experience: 3 years 担当者華山 光年齢:20代業界経験:3年 |
Contact お問い合せ先 | | TEL: 0800-603-7130 [Toll free] mobile phone ・ Also available from PHS Caller ID is not notified Please contact the "saw SUUMO (Sumo)" If it does not lead, If the real estate company TEL:0800-603-7130【通話料無料】携帯電話・PHSからもご利用いただけます 発信者番号は通知されません 「SUUMO(スーモ)を見た」と問い合わせください つながらない方、不動産会社の方は
|
Administrative expense 管理費 | | 11,000 yen / Month (consignment (commuting)) 1万1000円/月(委託(通勤)) |
Repair reserve 修繕積立金 | | 8580 yen / Month 8580円/月 |
Time residents 入居時期 | | Immediate available 即入居可 |
Whereabouts floor 所在階 | | 3rd floor 3階 |
Direction 向き | | West 西 |
Renovation リフォーム | | August interior renovation completed (Kitchen 2013 ・ bathroom ・ toilet ・ wall ・ floor ・ all rooms) 2013年8月内装リフォーム済(キッチン・浴室・トイレ・壁・床・全室) |
Overview and notices その他概要・特記事項 | | Contact: Huashan light 担当者:華山 光 |
Structure-storey 構造・階建て | | SRC10 story SRC10階建 |
Site of the right form 敷地の権利形態 | | Ownership 所有権 |
Use district 用途地域 | | One dwelling 1種住居 |
Parking lot 駐車場 | | Site (16,000 yen / Month) 敷地内(1万6000円/月) |
Company profile 会社概要 | | <Mediation> Minister of Land, Infrastructure and Transport (2) No. 007684 + HOUSE Tokyo Office (Ltd.) propoxycarbonyl life Yubinbango104-0028, Chuo-ku, Tokyo Yaesu 2-5-12 Prairie Yaesu Building 5th floor <仲介>国土交通大臣(2)第007684号+HOUSE東京Office(株)プロポライフ〒104-0028 東京都中央区八重洲2-5-12 プレリー八重洲ビル5階 |
Construction 施工 | | Japan Housing Corporation 日本住宅公団 |