|
|
Edogawa-ku, Tokyo
東京都江戸川区
|
|
Tokyo Metro Tozai Line "Kasai" 10 minutes Nagisa New Town walk 2 minutes by bus
東京メトロ東西線「葛西」バス10分なぎさニュータウン歩2分
|
|
■ New full renovation ■ Management system good ■ Per yang ・ View ・ Ventilation good ■ Park near, It is a good apartment on the environment ■ Pets Allowed ■ Mortgage tax cuts fit ■ A full line of equipment
■新規フルリノベーション ■管理体制良好 ■陽当たり・眺望・通風良好 ■公園近く、環境の良いマンションです ■ペット可 ■住宅ローン減税適合 ■各種充実の設備
|
|
☆ What% interest rate of the mortgage .. ☆ The total included expenses How much .. ☆ Since this property how much you can discount .. I think the worry it is a lot, but I will answer all, Please do not hesitate to contact us. In the case of o our alliance mortgage available, The entire period up to minus 1.7 percent preferential treatment. To o apply, conditions ・ There is a review. o weekdays ・ Saturday and Sunday ・ We will guide regardless of holiday. We can come to pick you up at o car.
☆住宅ローンの金利は何%.. ☆諸費用込みの総額はいくら.. ☆この物件はどれだけ値引きできるか.. 心配事が沢山あると思いますが全てお答え致しますので、 お気軽にお問い合わせくださいませ。 o弊社の提携住宅ローン利用の場合、全期間最大マイナス1.7パーセント優遇。 o適用には、条件・審査がございます。o平日・土日・祝日問わずご案内致します。 oお車でお迎えに伺います。
|
Features pickup 特徴ピックアップ | | Immediate Available / 2 along the line more accessible / Super close / It is close to the city / Interior renovation / System kitchen / Bathroom Dryer / Yang per good / Flat to the station / A quiet residential area / Around traffic fewer / Starting station / High floor / 24 hours garbage disposal Allowed / Washbasin with shower / Wide balcony / Barrier-free / Plane parking / Flooring Chokawa / Bicycle-parking space / Elevator / Otobasu / High speed Internet correspondence / Warm water washing toilet seat / TV monitor interphone / Renovation / High-function toilet / Leafy residential area / Urban neighborhood / Mu front building / Ventilation good / All living room flooring / Good view / Dish washing dryer / Walk-in closet / water filter / Pets Negotiable / BS ・ CS ・ CATV / Maintained sidewalk / Flat terrain / Bike shelter / Movable partition 即入居可 /2沿線以上利用可 /スーパーが近い /市街地が近い /内装リフォーム /システムキッチン /浴室乾燥機 /陽当り良好 /駅まで平坦 /閑静な住宅地 /周辺交通量少なめ /始発駅 /高層階 /24時間ゴミ出し可 /シャワー付洗面台 /ワイドバルコニー /バリアフリー /平面駐車場 /フローリング張替 /駐輪場 /エレベーター /オートバス /高速ネット対応 /温水洗浄便座 /TVモニタ付インターホン /リノベーション /高機能トイレ /緑豊かな住宅地 /都市近郊 /前面棟無 /通風良好 /全居室フローリング /眺望良好 /食器洗乾燥機 /ウォークインクロゼット /浄水器 /ペット相談 /BS・CS・CATV /整備された歩道 /平坦地 /バイク置場 /可動間仕切り |
Property name 物件名 | | Kasai second Sky Heights 葛西第2スカイハイツ |
Price 価格 | | 25,400,000 yen 2540万円 |
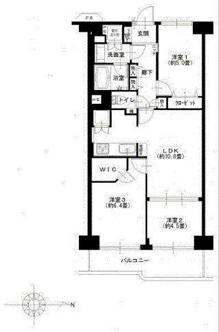
Floor plan 間取り | | 3LDK 3LDK |
Units sold 販売戸数 | | 1 units 1戸 |
Total units 総戸数 | | 109 units 109戸 |
Occupied area 専有面積 | | 61.6 sq m (center line of wall) 61.6m2(壁芯) |
Other area その他面積 | | Balcony area: 7.6 sq m バルコニー面積:7.6m2 |
Whereabouts floor / structures and stories 所在階/構造・階建 | | 7th floor / SRC9 story 7階/SRC9階建 |
Completion date 完成時期(築年月) | | December 1979 1979年12月 |
Address 住所 | | Edogawa-ku, Tokyo Minamikasai 6 東京都江戸川区南葛西6 |
Traffic 交通 | | Tokyo Metro Tozai Line "Kasai" 10 minutes Nagisa New Town walk 2 minutes by bus JR Keiyo Line "Kasai Seaside Park" walk 19 minutes JR Keiyo Line "Maihama" walk 17 minutes 東京メトロ東西線「葛西」バス10分なぎさニュータウン歩2分 JR京葉線「葛西臨海公園」歩19分 JR京葉線「舞浜」歩17分
|
Person in charge 担当者より | | Rep Huashan light 担当者華山 光 |
Contact お問い合せ先 | | TEL: 0800-603-7130 [Toll free] mobile phone ・ Also available from PHS Caller ID is not notified Please contact the "saw SUUMO (Sumo)" If it does not lead, If the real estate company TEL:0800-603-7130【通話料無料】携帯電話・PHSからもご利用いただけます 発信者番号は通知されません 「SUUMO(スーモ)を見た」と問い合わせください つながらない方、不動産会社の方は
|
Administrative expense 管理費 | | 7400 yen / Month (consignment (commuting)) 7400円/月(委託(通勤)) |
Repair reserve 修繕積立金 | | 13,460 yen / Month 1万3460円/月 |
Time residents 入居時期 | | Immediate available 即入居可 |
Whereabouts floor 所在階 | | 7th floor 7階 |
Direction 向き | | East 東 |
Renovation リフォーム | | June 2013 interior renovation completed (kitchen ・ bathroom ・ toilet ・ wall ・ floor ・ all rooms) 2013年6月内装リフォーム済(キッチン・浴室・トイレ・壁・床・全室) |
Overview and notices その他概要・特記事項 | | Contact: Huashan light 担当者:華山 光 |
Structure-storey 構造・階建て | | SRC9 story SRC9階建 |
Site of the right form 敷地の権利形態 | | Ownership 所有権 |
Use district 用途地域 | | One dwelling 1種住居 |
Parking lot 駐車場 | | Site (18,000 yen / Month) 敷地内(1万8000円/月) |
Company profile 会社概要 | | <Mediation> Minister of Land, Infrastructure and Transport (2) No. 007684 + HOUSE Tokyo Office (Ltd.) propoxycarbonyl life Yubinbango104-0028, Chuo-ku, Tokyo Yaesu 2-5-12 Prairie Yaesu Building 5th floor <仲介>国土交通大臣(2)第007684号+HOUSE東京Office(株)プロポライフ〒104-0028 東京都中央区八重洲2-5-12 プレリー八重洲ビル5階 |
Construction 施工 | | (Ltd.) Hasegawa builders (株)長谷川工務店 |