Used Apartments » Kanto » Tokyo » Fuchu
 
| | Fuchu, Tokyo 東京都府中市 |
| Keio Line "Nakagawara" walk 8 minutes 京王線「中河原」歩8分 |
| ● Spa (sauna ・ Open-air bath with) "calcium carbonate hot spring system," "high-density hot water system carbonate" two of the introduction of the spa ● guest room, Kids Room, Theater Room, Karaoke room, etc. ●スパ(サウナ・露天風呂付き)「炭酸カルシウム温泉システム」「高濃度炭酸温水システム」を導入した2つのスパ●ゲストルーム、キッズルーム、シアタールーム、カラオケルーム等 |
| ● TES hot water floor heating, TES hot-water bathroom heater dryer, Disposer system installed ● on-site parking 100% installation, There is also visitor parking. ●TES温水式床暖房、TES温水式浴室暖房乾燥機、ディスポーザーシステム搭載●敷地内駐車場100%設置、来客駐車場もございます。 |
Features pickup 特徴ピックアップ | | Riverside / It is close to Tennis Court / It is close to the city / System kitchen / Share facility enhancement / Flat to the station / A quiet residential area / Japanese-style room / 24 hours garbage disposal Allowed / Security enhancement / Barrier-free / Bicycle-parking space / Elevator / TV monitor interphone / Leafy residential area / Urban neighborhood / Mu front building / Pets Negotiable / Maintained sidewalk / Flat terrain / Delivery Box / Kids Room ・ nursery / Bike shelter / A shared open-air bath リバーサイド /テニスコートが近い /市街地が近い /システムキッチン /共有施設充実 /駅まで平坦 /閑静な住宅地 /和室 /24時間ゴミ出し可 /セキュリティ充実 /バリアフリー /駐輪場 /エレベーター /TVモニタ付インターホン /緑豊かな住宅地 /都市近郊 /前面棟無 /ペット相談 /整備された歩道 /平坦地 /宅配ボックス /キッズルーム・託児所 /バイク置場 /共用露天風呂 | Property name 物件名 | | La Villa Fuchu Tamagawa ラヴィラ府中多摩川 | Price 価格 | | 32,800,000 yen 3280万円 | Floor plan 間取り | | 3LDK 3LDK | Units sold 販売戸数 | | 1 units 1戸 | Total units 総戸数 | | 374 units 374戸 | Occupied area 専有面積 | | 71.5 sq m (center line of wall) 71.5m2(壁芯) | Other area その他面積 | | Balcony area: 12.11 sq m バルコニー面積:12.11m2 | Whereabouts floor / structures and stories 所在階/構造・階建 | | 4th floor / SRC13 floors 1 underground story 4階/SRC13階地下1階建 | Completion date 完成時期(築年月) | | January 2005 2005年1月 | Address 住所 | | Tokyo Metropolitan Fuchu Sumiyoshi-cho, 2 東京都府中市住吉町2 | Traffic 交通 | | Keio Line "Nakagawara" walk 8 minutes 京王線「中河原」歩8分
| Related links 関連リンク | | [Related Sites of this company] 【この会社の関連サイト】 | Person in charge 担当者より | | Person in charge of real-estate and building Yoshinaga Keita Age: 20 Daigyokai experience: well six years footwork, It supports the real estate transactions of everyone in full force. Mansion ・ land ・ Residential home anything, please consult. Brightly ・ We try to sincere support us. 担当者宅建吉永 啓太年齢:20代業界経験:6年フットワーク良く、皆様の不動産取引を全力でサポートします。マンション・土地・一戸建て何でもご相談下さい。明るく・誠実なご対応を心がけております。 | Contact お問い合せ先 | | TEL: 0800-602-6712 [Toll free] mobile phone ・ Also available from PHS Caller ID is not notified Please contact the "saw SUUMO (Sumo)" If it does not lead, If the real estate company TEL:0800-602-6712【通話料無料】携帯電話・PHSからもご利用いただけます 発信者番号は通知されません 「SUUMO(スーモ)を見た」と問い合わせください つながらない方、不動産会社の方は
| Administrative expense 管理費 | | 12,700 yen / Month (consignment (commuting)) 1万2700円/月(委託(通勤)) | Repair reserve 修繕積立金 | | 5080 yen / Month 5080円/月 | Expenses 諸費用 | | Internet flat rate: 1290 yen / Month, Interference maintenance costs: 300 yen / Month, Friendly club membership fee: 400 yen / Month インターネット定額料金:1290円/月、電波障害維持管理費:300円/月、フレンドリークラブ会費:400円/月 | Time residents 入居時期 | | Consultation 相談 | Whereabouts floor 所在階 | | 4th floor 4階 | Direction 向き | | East 東 | Overview and notices その他概要・特記事項 | | Contact: Yoshinaga Keita 担当者:吉永 啓太 | Structure-storey 構造・階建て | | SRC13 floors 1 underground story SRC13階地下1階建 | Site of the right form 敷地の権利形態 | | Ownership 所有権 | Use district 用途地域 | | Semi-industrial 準工業 | Parking lot 駐車場 | | Site (3000 yen ~ 5000 Yen / Month) 敷地内(3000円 ~ 5000円/月) | Company profile 会社概要 | | <Mediation> Minister of Land, Infrastructure and Transport (1) No. 008026 (Ltd.) Haseko realistic Estate Tachikawa Yubinbango190-0022 Tokyo Tachikawa Nishikicho 2-1-26 N Building first floor <仲介>国土交通大臣(1)第008026号(株)長谷工リアルエステート立川店〒190-0022 東京都立川市錦町2-1-26 Nビルディング1階 | Construction 施工 | | HASEKO Corporation (株)長谷工コーポレーション |
Local appearance photo現地外観写真  Local (September 2013) Shooting
現地(2013年9月)撮影
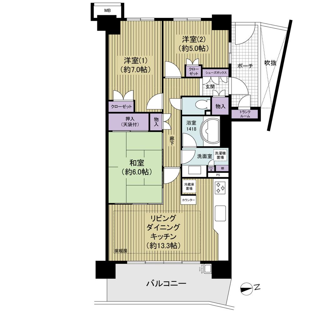
Floor plan間取り図  3LDK, Price 32,800,000 yen, Footprint 71.5 sq m , Balcony area 12.11 sq m frontage full Hi spread LDK is open-minded 3LDK plan
3LDK、価格3280万円、専有面積71.5m2、バルコニー面積12.11m2 間口いっぱいひ広がるLDKが開放的な3LDKプラン
Entranceエントランス  Common areas
共用部
Local appearance photo現地外観写真  Local (September 2013) Shooting La Villa Garden
現地(2013年9月)撮影 ラヴィラガーデン
 Local (September 2013) Shooting Welcome patio
現地(2013年9月)撮影 ウェルカムパティオ
 Local (September 2013) Shooting
現地(2013年9月)撮影
View photos from the dwelling unit住戸からの眺望写真  View from the site (December 2013) Shooting
現地からの眺望(2013年12月)撮影
Livingリビング  Indoor (12 May 2013) Shooting
室内(2013年12月)撮影
Kitchenキッチン  Indoor (12 May 2013) Shooting
室内(2013年12月)撮影
Wash basin, toilet洗面台・洗面所  Indoor (12 May 2013) Shooting
室内(2013年12月)撮影
Bathroom浴室  Indoor (12 May 2013) Shooting
室内(2013年12月)撮影
Toiletトイレ  Indoor (12 May 2013) Shooting
室内(2013年12月)撮影
Entranceエントランス  Common areas
共用部
Location
|