Used Apartments » Kanto » Tokyo » Fuchu
 
| | Fuchu, Tokyo 東京都府中市 |
| Keio Line "Musashino" walk 12 minutes 京王線「武蔵野台」歩12分 |
| Corresponding to the flat-35S, Immediate Available, 2 along the line more accessible, System kitchen, Bathroom Dryer, Yang per good, Elevator, Otobasu, Renovation, All living room flooring, Dish washing dryer, フラット35Sに対応、即入居可、2沿線以上利用可、システムキッチン、浴室乾燥機、陽当り良好、エレベーター、オートバス、リノベーション、全居室フローリング、食器洗乾燥機、 |
| ■ Keio Line "Musashino" station a 10-minute walk ■ 2SLDK ・ Occupied area 61.74 sq m ・ 2001 Built ■ 2012. August large-scale repair work carried out already ■ auto lock ・ Paste appearance tile ・ Pet breeding Allowed ■ Flat 35S pending ・ New Renovation ■ Mortgage tax cuts fit Property ■ Furnished apartment ■京王線「武蔵野台」駅徒歩10分■2SLDK・専有面積61.74m2・平成13年築■平成24年8月大規模修繕工事実施済み■オートロック・外観タイル貼り・ペット飼育可■フラット35S申請中・新規リノベーション■住宅ローン減税適合物件■家具付きマンション |
Features pickup 特徴ピックアップ | | Corresponding to the flat-35S / Immediate Available / 2 along the line more accessible / System kitchen / Bathroom Dryer / Yang per good / Elevator / Otobasu / Renovation / All living room flooring / Dish washing dryer / Pets Negotiable / Delivery Box フラット35Sに対応 /即入居可 /2沿線以上利用可 /システムキッチン /浴室乾燥機 /陽当り良好 /エレベーター /オートバス /リノベーション /全居室フローリング /食器洗乾燥機 /ペット相談 /宅配ボックス | Property name 物件名 | | Fuchu Shiraitodai Sunny Court 府中白糸台サニーコート | Price 価格 | | 30,900,000 yen 3090万円 | Floor plan 間取り | | 2LDK + S (storeroom) 2LDK+S(納戸) | Units sold 販売戸数 | | 1 units 1戸 | Occupied area 専有面積 | | 61.74 sq m 61.74m2 | Other area その他面積 | | Balcony area: 9.8 sq m バルコニー面積:9.8m2 | Whereabouts floor / structures and stories 所在階/構造・階建 | | Second floor / SRC8 story 2階/SRC8階建 | Completion date 完成時期(築年月) | | April 2001 2001年4月 | Address 住所 | | Fuchu, Tokyo Shiraitodai 3 東京都府中市白糸台3 | Traffic 交通 | | Keio Line "Musashino" walk 12 minutes Seibu Tamagawa "Shiraitodai" walk 12 minutes Keio Line "Tobitakyu" walk 13 minutes 京王線「武蔵野台」歩12分 西武多摩川線「白糸台」歩12分 京王線「飛田給」歩13分
| Related links 関連リンク | | [Related Sites of this company] 【この会社の関連サイト】 | Person in charge 担当者より | | Person in charge of real-estate and building FP Kato Toshimitsu Age: 40 shop-studded hobbies such as Daiongaku and movies we have our popular and easy to enter. Mortgage consultation, etc., Please feel free to contact us. 担当者宅建FP加藤 利光年齢:40代音楽や映画など趣味を散りばめた店舗は入りやすいとご好評いただいております。住宅ローンのご相談等、お気軽にご相談ください。 | Contact お問い合せ先 | | TEL: 0800-603-9070 [Toll free] mobile phone ・ Also available from PHS Caller ID is not notified Please contact the "saw SUUMO (Sumo)" If it does not lead, If the real estate company TEL:0800-603-9070【通話料無料】携帯電話・PHSからもご利用いただけます 発信者番号は通知されません 「SUUMO(スーモ)を見た」と問い合わせください つながらない方、不動産会社の方は
| Administrative expense 管理費 | | 9600 yen / Month (consignment (commuting)) 9600円/月(委託(通勤)) | Repair reserve 修繕積立金 | | 4800 yen / Month 4800円/月 | Time residents 入居時期 | | Immediate available 即入居可 | Whereabouts floor 所在階 | | Second floor 2階 | Direction 向き | | West 西 | Renovation リフォーム | | December 2013 interior renovation completed (kitchen ・ bathroom ・ toilet ・ wall ・ floor ・ all rooms) 2013年12月内装リフォーム済(キッチン・浴室・トイレ・壁・床・全室) | Overview and notices その他概要・特記事項 | | Contact: Kato Toshimitsu 担当者:加藤 利光 | Structure-storey 構造・階建て | | SRC8 story SRC8階建 | Site of the right form 敷地の権利形態 | | Ownership 所有権 | Use district 用途地域 | | One middle and high, Quasi-residence 1種中高、準住居 | Company profile 会社概要 | | <Mediation> Governor of Tokyo (1) No. 090622 (Ltd.) denim Yubinbango156-0057 Setagaya-ku, Tokyo Kamikitazawa 3-18-8 <仲介>東京都知事(1)第090622号(株)デニム〒156-0057 東京都世田谷区上北沢3-18-8 |
Local appearance photo現地外観写真  Local (12 May 2013) Shooting
現地(2013年12月)撮影
 Local (12 May 2013) Shooting
現地(2013年12月)撮影
Entranceエントランス  Common areas
共用部
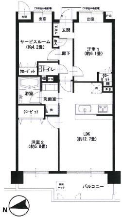
Floor plan間取り図  2LDK + S (storeroom), Price 30,900,000 yen, Occupied area 61.74 sq m , Balcony area 9.8 sq m
2LDK+S(納戸)、価格3090万円、専有面積61.74m2、バルコニー面積9.8m2
Livingリビング  Indoor (12 May 2013) Shooting
室内(2013年12月)撮影
Bathroom浴室  Indoor (12 May 2013) Shooting
室内(2013年12月)撮影
Kitchenキッチン  Indoor (12 May 2013) Shooting
室内(2013年12月)撮影
Non-living roomリビング以外の居室  Indoor (12 May 2013) Shooting
室内(2013年12月)撮影
Entrance玄関  Local (12 May 2013) Shooting
現地(2013年12月)撮影
Wash basin, toilet洗面台・洗面所  Indoor (12 May 2013) Shooting
室内(2013年12月)撮影
Toiletトイレ  Indoor (12 May 2013) Shooting
室内(2013年12月)撮影
Entranceエントランス  Common areas
共用部
Parking lot駐車場  Common areas
共用部
Balconyバルコニー  Local (12 May 2013) Shooting
現地(2013年12月)撮影
View photos from the dwelling unit住戸からの眺望写真  Local (12 May 2013) Shooting
現地(2013年12月)撮影
 Other
その他
Non-living roomリビング以外の居室  Indoor (12 May 2013) Shooting
室内(2013年12月)撮影
Entrance玄関  Local (12 May 2013) Shooting
現地(2013年12月)撮影
 Other
その他
 Other
その他
Location
|