1988August
19,800,000 yen, 2LDK + S (storeroom), 87.75 sq m
Used Apartments » Kanto » Tokyo » Inagi
 
| | Tokyo Inagi 東京都稲城市 |
| Keio Sagamihara Line "Inagi" bus 5 minutes Koyodai 3-chome, walk 22 minutes 京王相模原線「稲城」バス5分向陽台3丁目歩22分 |
Property name 物件名 | | Ribere Koyodai リベレ向陽台 | Price 価格 | | 19,800,000 yen 1980万円 | Floor plan 間取り | | 2LDK + S (storeroom) 2LDK+S(納戸) | Units sold 販売戸数 | | 1 units 1戸 | Total units 総戸数 | | 205 units 205戸 | Occupied area 専有面積 | | 87.75 sq m (center line of wall) 87.75m2(壁芯) | Other area その他面積 | | Balcony area: 10.55 sq m バルコニー面積:10.55m2 | Whereabouts floor / structures and stories 所在階/構造・階建 | | Second floor / RC4 story 2階/RC4階建 | Completion date 完成時期(築年月) | | August 1988 1988年8月 | Address 住所 | | Tokyo Inagi Koyodai 5 東京都稲城市向陽台5 | Traffic 交通 | | Keio Sagamihara Line "Inagi" bus 5 minutes Koyodai 3-chome, walk 22 minutes JR Nambu Line "Minamitama" walk 20 minutes 京王相模原線「稲城」バス5分向陽台3丁目歩22分 JR南武線「南多摩」歩20分
| Person in charge 担当者より | | Person in charge of Yoshida Kazumasa 担当者吉田 和将 | Contact お問い合せ先 | | Sumitomo Real Estate Sales Co., Ltd. Seiseki Sakuragaoka business center TEL: 042-338-1311 Please inquire as "saw SUUMO (Sumo)" 住友不動産販売(株)聖蹟桜ヶ丘営業センターTEL:042-338-1311「SUUMO(スーモ)を見た」と問い合わせください | Administrative expense 管理費 | | 6600 yen / Month (consignment (commuting)) 6600円/月(委託(通勤)) | Repair reserve 修繕積立金 | | 12,850 yen / Month 1万2850円/月 | Time residents 入居時期 | | Consultation 相談 | Whereabouts floor 所在階 | | Second floor 2階 | Direction 向き | | Southeast 南東 | Other limitations その他制限事項 | | / Building by number of units 15 units /棟別戸数15戸 | Overview and notices その他概要・特記事項 | | Contact: Yoshida Kazumasa 担当者:吉田 和将 | Structure-storey 構造・階建て | | RC4 story RC4階建 | Site of the right form 敷地の権利形態 | | Ownership 所有権 | Use district 用途地域 | | One middle and high 1種中高 | Parking lot 駐車場 | | Site (4000 yen / Month) 敷地内(4000円/月) | Company profile 会社概要 | | <Mediation> Minister of Land, Infrastructure and Transport (11) No. 002077 (one company) Real Estate Association (Corporation) metropolitan area real estate Fair Trade Council member Sumitomo Real Estate Sales Co., Ltd. Seiseki Sakuragaoka business center Yubinbango206-0011 Tama City, Tokyo Sekido 2-40-1 Nissei Seiseki Sakuragaoka building 6th floor <仲介>国土交通大臣(11)第002077号(一社)不動産協会会員 (公社)首都圏不動産公正取引協議会加盟住友不動産販売(株)聖蹟桜ヶ丘営業センター〒206-0011 東京都多摩市関戸2-40-1 ニッセイ聖蹟桜ヶ丘ビル6階 |
Local appearance photo現地外観写真  appearance
外観
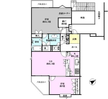
 Floor plan
間取り図
Location
|