|
|
Itabashi-ku, Tokyo
東京都板橋区
|
|
Tobu Tojo Line "Tokiwadai" walk 10 minutes
東武東上線「ときわ台」歩10分
|
|
Renovation apartment (with guarantee) 4LDK ・ South-facing two-sided balcony ・ New quake-resistance standards ・ Paste outer wall tile
リノベーションマンション(保証付)4LDK・南向き2面バルコニー・新耐震基準・外壁タイル貼り
|
|
Peripheral environment's a street until now, It does not change even children of school, Not change even commuting time. As it is also your neighborhood Zukiai. But in the house is equipped with new equipment. It's a "hen and say," I this. But I think that it is a rare case, Whether or not really blessed with good encounter, It might be up to you to decide. I think that it is property that makes us to such a feeling.
周辺環境は今まで通りだし、子供の学校も変わらないし、通勤時間も変わらない。ご近所づきあいもそのまま。でも家の中は新しい設備が整っている。これって「いいとこどり」ですよね。稀なケースだとは思いますが、本当にいい出会いに恵まれるかどうかは、あなたの決心次第かもしれません。そんな気持ちにさせてくれる物件だと思います。
|
Features pickup 特徴ピックアップ | | Facing south / Yang per good / A quiet residential area / TV monitor interphone / All living room flooring / Dish washing dryer / Walk-in closet 南向き /陽当り良好 /閑静な住宅地 /TVモニタ付インターホン /全居室フローリング /食器洗乾燥機 /ウォークインクロゼット |
Property name 物件名 | | Bamuhaitsu Tokiwadai バームハイツときわ台 |
Price 価格 | | 36,900,000 yen 3690万円 |
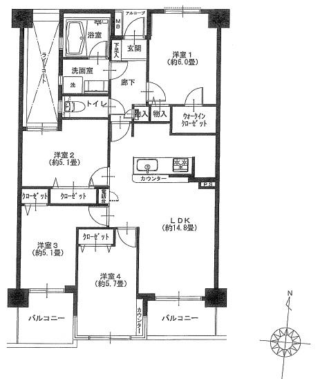
Floor plan 間取り | | 4LDK 4LDK |
Units sold 販売戸数 | | 1 units 1戸 |
Total units 総戸数 | | 52 units 52戸 |
Occupied area 専有面積 | | 78.59 sq m (center line of wall) 78.59m2(壁芯) |
Other area その他面積 | | Balcony area: 8.66 sq m バルコニー面積:8.66m2 |
Whereabouts floor / structures and stories 所在階/構造・階建 | | 5th floor / RC7 story 5階/RC7階建 |
Completion date 完成時期(築年月) | | March 1988 1988年3月 |
Address 住所 | | Itabashi-ku, Tokyo Maeno-cho 1 東京都板橋区前野町1 |
Traffic 交通 | | Tobu Tojo Line "Tokiwadai" walk 10 minutes Toei Mita Line "this Hasunuma" walk 13 minutes 東武東上線「ときわ台」歩10分 都営三田線「本蓮沼」歩13分
|
Related links 関連リンク | | [Related Sites of this company] 【この会社の関連サイト】 |
Person in charge 担当者より | | Person in charge of real-estate and building Sakakibara Kazunori industry experience: 13 years in good faith and in contact with the customer. 担当者宅建榊原 一典業界経験:13年誠意を持ってお客様に接します。 |
Contact お問い合せ先 | | TEL: 0800-603-0564 [Toll free] mobile phone ・ Also available from PHS Caller ID is not notified Please contact the "saw SUUMO (Sumo)" If it does not lead, If the real estate company TEL:0800-603-0564【通話料無料】携帯電話・PHSからもご利用いただけます 発信者番号は通知されません 「SUUMO(スーモ)を見た」と問い合わせください つながらない方、不動産会社の方は
|
Administrative expense 管理費 | | 13,500 yen / Month (consignment (commuting)) 1万3500円/月(委託(通勤)) |
Repair reserve 修繕積立金 | | 15,200 yen / Month 1万5200円/月 |
Expenses 諸費用 | | External owner management cooperation Fee: 2000 yen / Month 外部所有者管理協力費:2000円/月 |
Time residents 入居時期 | | Immediate available 即入居可 |
Whereabouts floor 所在階 | | 5th floor 5階 |
Direction 向き | | South 南 |
Renovation リフォーム | | December 2013 interior renovation completed (kitchen ・ bathroom ・ toilet ・ wall ・ floor ・ all rooms ・ Washstand new exchange, etc.) 2013年12月内装リフォーム済(キッチン・浴室・トイレ・壁・床・全室・洗面台新規交換他) |
Other limitations その他制限事項 | | Automatic hot water filling, Reheating possible system! 自動湯張り、追焚き可能なシステム! |
Overview and notices その他概要・特記事項 | | Contact: Sakakibara Kazunori 担当者:榊原 一典 |
Structure-storey 構造・階建て | | RC7 story RC7階建 |
Site of the right form 敷地の権利形態 | | Ownership 所有権 |
Use district 用途地域 | | Semi-industrial 準工業 |
Parking lot 駐車場 | | Sky Mu 空無 |
Company profile 会社概要 | | <Mediation> Minister of Land, Infrastructure and Transport (3) No. 006,185 (one company) National Housing Industry Association (Corporation) metropolitan area real estate Fair Trade Council member Asahi Housing Corporation Ikebukuro Yubinbango170-0013 Toshima-ku, Tokyo Ikebukuro 1-21-11 Oak Ikebukuro building 7th floor <仲介>国土交通大臣(3)第006185号(一社)全国住宅産業協会会員 (公社)首都圏不動産公正取引協議会加盟朝日住宅(株)池袋店〒170-0013 東京都豊島区東池袋1-21-11 オーク池袋ビル7階 |
Construction 施工 | | Toda 戸田建設 |