|
|
Itabashi-ku, Tokyo
東京都板橋区
|
|
Tobu Tojo Line "Tokiwadai" walk 11 minutes
東武東上線「ときわ台」歩11分
|
|
[Information meetings being accepted] According to your demand, Your local property also will be announced! First, Please feel free to contact us → 0800-603-1731
【案内会受付中】ご要望に合わせて、お近くの物件もご案内させて頂きます!まずは、お気軽にお問い合わせ下さい→0800-603-1731
|
|
◆ Indoor new renovation already [Fully furnished] Mansion ◆ South-facing each is a positive per good. ◆ 2-minute walk from the Super Life (about 160m) ・ It is also comfortably every day of shopping. ※ 2014 March to 31 days is possible delivery ====================== local guidance meeting in the reception! 0800-603-173110:00 ~ 19:00 started (Wednesday off), Kita-ku,, Please leave if to our things Johoku. ====================== ↓↓ property details, Please see the photo below ↓↓
◆室内新規リノベーション済み【家具付き】マンション◆南向きにつき陽当り良好です。◆スーパーライフまで徒歩2分(約160m)・毎日のお買物もらくらくです。※平成26年3月31日までに引渡し可能です======================現地案内会受付中!0800-603-173110:00 ~ 19:00(水曜休み)北区をはじめ、城北のことなら弊社へお任せ下さい。======================↓↓物件詳細は、下の写真をご覧ください↓↓
|
Features pickup 特徴ピックアップ | | Vibration Control ・ Seismic isolation ・ Earthquake resistant / Immediate Available / 2 along the line more accessible / Facing south / System kitchen / Yang per good / All room storage / A quiet residential area / Washbasin with shower / Face-to-face kitchen / 2 or more sides balcony / South balcony / Flooring Chokawa / Bicycle-parking space / Elevator / The window in the bathroom / TV monitor interphone / Renovation / All living room flooring / Dish washing dryer / Walk-in closet / water filter / BS ・ CS ・ CATV 制震・免震・耐震 /即入居可 /2沿線以上利用可 /南向き /システムキッチン /陽当り良好 /全居室収納 /閑静な住宅地 /シャワー付洗面台 /対面式キッチン /2面以上バルコニー /南面バルコニー /フローリング張替 /駐輪場 /エレベーター /浴室に窓 /TVモニタ付インターホン /リノベーション /全居室フローリング /食器洗乾燥機 /ウォークインクロゼット /浄水器 /BS・CS・CATV |
Property name 物件名 | | Bamuhaitsu Tokiwadai バームハイツときわ台 |
Price 価格 | | 36,900,000 yen 3690万円 |
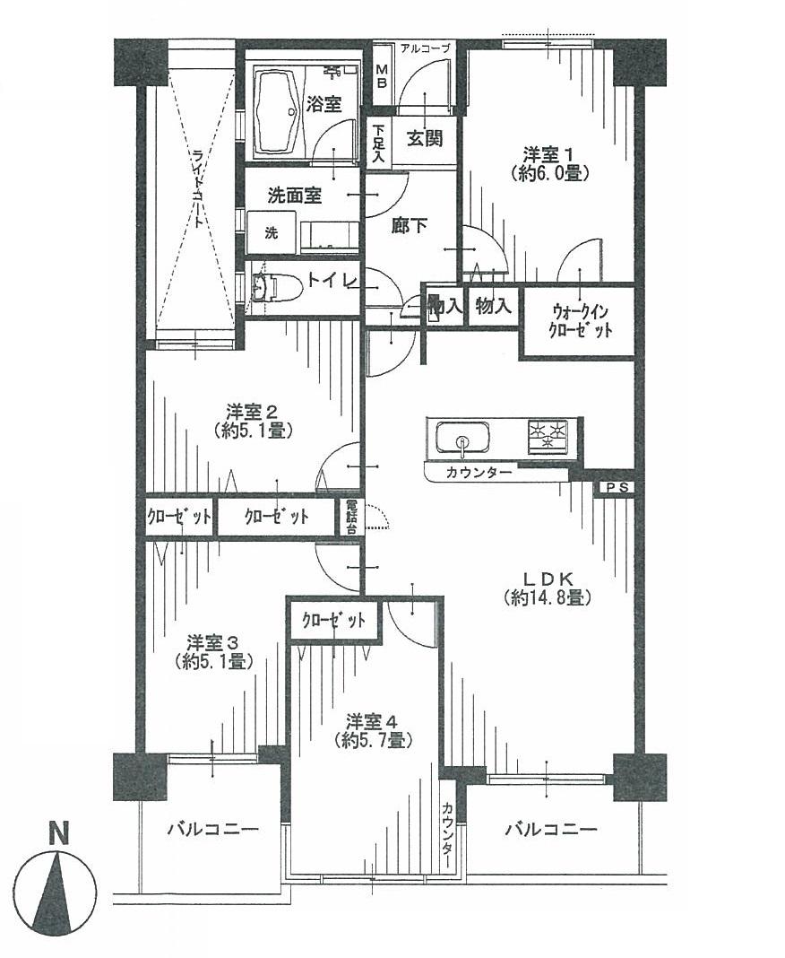
Floor plan 間取り | | 4LDK 4LDK |
Units sold 販売戸数 | | 1 units 1戸 |
Total units 総戸数 | | 52 units 52戸 |
Occupied area 専有面積 | | 78.59 sq m 78.59m2 |
Other area その他面積 | | Balcony area: 8.66 sq m バルコニー面積:8.66m2 |
Whereabouts floor / structures and stories 所在階/構造・階建 | | 5th floor / RC7 story 5階/RC7階建 |
Completion date 完成時期(築年月) | | March 1988 1988年3月 |
Address 住所 | | Itabashi-ku, Tokyo Maeno-cho 1 東京都板橋区前野町1 |
Traffic 交通 | | Tobu Tojo Line "Tokiwadai" walk 11 minutes Toei Mita Line "this Hasunuma" walk 14 minutes Tobu Tojo Line "Nakaitabashi" walk 14 minutes 東武東上線「ときわ台」歩11分 都営三田線「本蓮沼」歩14分 東武東上線「中板橋」歩14分
|
Related links 関連リンク | | [Related Sites of this company] 【この会社の関連サイト】 |
Person in charge 担当者より | | Rep Matsushima Victory Age: The Matsushima of strong charge to 40s mainly Johoku district. I to you, speed, Polite, Looking house in the motto the trust was to your needs, We work hard to become the customer's feelings believe that it is possible to make that chance 担当者松島 勝利年齢:40代主に城北地区に強い担当の松島です。私はお客様に対して、スピード、丁寧、信頼をモットーにお客様のニーズにあった住まい探し、そのチャンスをつくることができるものと信じお客様の気持ちになって頑張っております |
Contact お問い合せ先 | | TEL: 0800-603-1731 [Toll free] mobile phone ・ Also available from PHS Caller ID is not notified Please contact the "saw SUUMO (Sumo)" If it does not lead, If the real estate company TEL:0800-603-1731【通話料無料】携帯電話・PHSからもご利用いただけます 発信者番号は通知されません 「SUUMO(スーモ)を見た」と問い合わせください つながらない方、不動産会社の方は
|
Administrative expense 管理費 | | 13,500 yen / Month (consignment (commuting)) 1万3500円/月(委託(通勤)) |
Repair reserve 修繕積立金 | | 15,200 yen / Month 1万5200円/月 |
Time residents 入居時期 | | Immediate available 即入居可 |
Whereabouts floor 所在階 | | 5th floor 5階 |
Direction 向き | | South 南 |
Renovation リフォーム | | December 2013 interior renovation completed (kitchen ・ bathroom ・ toilet ・ wall ・ floor ・ all rooms) 2013年12月内装リフォーム済(キッチン・浴室・トイレ・壁・床・全室) |
Overview and notices その他概要・特記事項 | | Contact: Matsushima victory 担当者:松島 勝利 |
Structure-storey 構造・階建て | | RC7 story RC7階建 |
Site of the right form 敷地の権利形態 | | Ownership 所有権 |
Use district 用途地域 | | Semi-industrial 準工業 |
Company profile 会社概要 | | <Mediation> Governor of Tokyo (6) No. 062333 (Corporation) Tokyo Metropolitan Government Building Lots and Buildings Transaction Business Association (Corporation) metropolitan area real estate Fair Trade Council member (Ltd.) House Say Lars prince shop Yubinbango114-0002 Prince Kita-ku, Tokyo 1-17-1 <仲介>東京都知事(6)第062333号(公社)東京都宅地建物取引業協会会員 (公社)首都圏不動産公正取引協議会加盟(株)ハウスセイラーズ王子店〒114-0002 東京都北区王子1-17-1 |