|
|
Katsushika-ku, Tokyo
東京都葛飾区
|
|
JR Sobu Line Rapid "Shinkoiwa" walk 20 minutes
JR総武線快速「新小岩」歩20分
|
|
■ The exclusive right to use with with parking ■ Pets welcome breeding ■ Already the new renovation ■ On the day possible preview
■専用使用権つき駐車場付 ■ペット飼育可能 ■新規リノベーション済 ■当日内覧可能
|
|
□ ■ Our attention information □ ■ □ ■ □ ■ □ ■ □ ■ □ ■ □ ■ □ ■ □ 1. In the case of our alliance mortgage available, The entire period up to -1.7 percent preferential treatment. Possible loan at floating interest rates 0.775 percent. ※ The application, conditions ・ There is a review. 2. weekdays ・ Saturday and Sunday ・ We will guide regardless of holiday. 3. we can come to pick you up at your car. □ ■ □ ■ □ ■ □ ■ □ ■ □ ■ □ ■ □ ■ □ ■ □ ■ □ ■ □ ■ □ ■ □ ■ □ ■ □ ■
□■ 弊社の注目情報□■□■□■□■□■□■□■□■□ 1.弊社提携住宅ローン利用の場合、全期間最大-1.7パーセント優遇。 変動金利0.775パーセントにて融資可能。 ※適用には、条件・審査がございます。 2.平日・土日・祝日問わずご案内致します。 3.お車でお迎えに伺います。 □■□■□■□■□■□■□■□■□■□■□■□■□■□■□■□■
|
Features pickup 特徴ピックアップ | | Vibration Control ・ Seismic isolation ・ Earthquake resistant / Fit renovation / Immediate Available / 2 along the line more accessible / LDK20 tatami mats or more / Super close / It is close to the city / Interior renovation / System kitchen / Bathroom Dryer / Corner dwelling unit / Yang per good / Share facility enhancement / All room storage / Flat to the station / A quiet residential area / Around traffic fewer / Japanese-style room / 24 hours garbage disposal Allowed / Washbasin with shower / Face-to-face kitchen / Security enhancement / Wide balcony / Plane parking / South balcony / Flooring Chokawa / Double-glazing / Bicycle-parking space / Elevator / Otobasu / High speed Internet correspondence / Warm water washing toilet seat / TV monitor interphone / High-function toilet / Leafy residential area / Urban neighborhood / Mu front building / Ventilation good / All living room flooring / Good view / Southwestward / water filter / Whirlpool / Pets Negotiable / BS ・ CS ・ CATV / Maintained sidewalk / Flat terrain / Delivery Box / Bike shelter 制震・免震・耐震 /適合リノベーション /即入居可 /2沿線以上利用可 /LDK20畳以上 /スーパーが近い /市街地が近い /内装リフォーム /システムキッチン /浴室乾燥機 /角住戸 /陽当り良好 /共有施設充実 /全居室収納 /駅まで平坦 /閑静な住宅地 /周辺交通量少なめ /和室 /24時間ゴミ出し可 /シャワー付洗面台 /対面式キッチン /セキュリティ充実 /ワイドバルコニー /平面駐車場 /南面バルコニー /フローリング張替 /複層ガラス /駐輪場 /エレベーター /オートバス /高速ネット対応 /温水洗浄便座 /TVモニタ付インターホン /高機能トイレ /緑豊かな住宅地 /都市近郊 /前面棟無 /通風良好 /全居室フローリング /眺望良好 /南西向き /浄水器 /ジェットバス /ペット相談 /BS・CS・CATV /整備された歩道 /平坦地 /宅配ボックス /バイク置場 |
Property name 物件名 | | Gran City Shinkoiwa 2 グランシティ新小岩2 |
Price 価格 | | 31,900,000 yen 3190万円 |
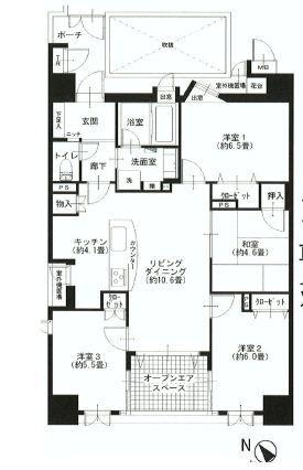
Floor plan 間取り | | 4LDK 4LDK |
Units sold 販売戸数 | | 1 units 1戸 |
Total units 総戸数 | | 31 units 31戸 |
Occupied area 専有面積 | | 78.94 sq m (center line of wall) 78.94m2(壁芯) |
Other area その他面積 | | Balcony area: 5.4 sq m バルコニー面積:5.4m2 |
Whereabouts floor / structures and stories 所在階/構造・階建 | | Second floor / RC10 story 2階/RC10階建 |
Completion date 完成時期(築年月) | | April 2002 2002年4月 |
Address 住所 | | Katsushika-ku, Tokyo Higashishinkoiwa 2 東京都葛飾区東新小岩2 |
Traffic 交通 | | JR Sobu Line Rapid "Shinkoiwa" walk 20 minutes JR Sobu Line "Shinkoiwa" walk 20 minutes JR Sobu Line "Koiwa" walk 20 minutes JR総武線快速「新小岩」歩20分 JR総武線「新小岩」歩20分JR総武線「小岩」歩20分 |
Related links 関連リンク | | [Related Sites of this company] 【この会社の関連サイト】 |
Person in charge 担当者より | | Rep Ikeya Takeshi Age: 20 Daigyokai Experience: I am allowed to introduce the prime properties tailored to each person four years Customers. Such as market and living environment of the 23 wards of Tokyo, Please feel free to contact us. 担当者池谷 剛士年齢:20代業界経験:4年お客様一人一人に合わせた優良物件をご紹介させて頂いております。東京都23区の相場や住環境など、お気軽にお問合せ下さい。 |
Contact お問い合せ先 | | TEL: 0800-603-7130 [Toll free] mobile phone ・ Also available from PHS Caller ID is not notified Please contact the "saw SUUMO (Sumo)" If it does not lead, If the real estate company TEL:0800-603-7130【通話料無料】携帯電話・PHSからもご利用いただけます 発信者番号は通知されません 「SUUMO(スーモ)を見た」と問い合わせください つながらない方、不動産会社の方は
|
Administrative expense 管理費 | | 24,000 yen / Month (consignment (commuting)) 2万4000円/月(委託(通勤)) |
Repair reserve 修繕積立金 | | 14,530 yen / Month 1万4530円/月 |
Time residents 入居時期 | | Immediate available 即入居可 |
Whereabouts floor 所在階 | | Second floor 2階 |
Direction 向き | | Southwest 南西 |
Renovation リフォーム | | 2013 May interior renovation completed (kitchen ・ bathroom ・ toilet ・ wall ・ floor ・ all rooms) 2013年5月内装リフォーム済(キッチン・浴室・トイレ・壁・床・全室) |
Overview and notices その他概要・特記事項 | | Contact: Ikeya Takeshi 担当者:池谷 剛士 |
Structure-storey 構造・階建て | | RC10 story RC10階建 |
Site of the right form 敷地の権利形態 | | Ownership 所有権 |
Use district 用途地域 | | City planning area outside 都市計画区域外 |
Parking lot 駐車場 | | On-site (fee Mu) 敷地内(料金無) |
Company profile 会社概要 | | <Mediation> Minister of Land, Infrastructure and Transport (2) No. 007684 + HOUSE Tokyo Office (Ltd.) propoxycarbonyl life Yubinbango104-0028, Chuo-ku, Tokyo Yaesu 2-5-12 Prairie Yaesu Building 5th floor <仲介>国土交通大臣(2)第007684号+HOUSE東京Office(株)プロポライフ〒104-0028 東京都中央区八重洲2-5-12 プレリー八重洲ビル5階 |