Used Apartments » Kanto » Tokyo » Katsushika
 
| | Katsushika-ku, Tokyo 東京都葛飾区 |
| JR Joban Line "Kanamachi" walk 15 minutes JR常磐線「金町」歩15分 |
| ◆ ◆ ◆ ◆ It is the top floor of the lighting portion is large room! ◆ ◆ ◆ ◆ ◆◆◆◆ 最上階の採光部が多いお部屋です! ◆◆◆◆ |
| ■ Tokyo Sky Tree from the roof balcony, You can see Mount Fuji. (View is not intended to be permanently guaranteed. ) ■ Ventilation drying heating function ・ Reheating function with bathroom ■ Hot water floor heating (living dining kitchen) ■ Toilet with hot cleaning function toilet seat ■ Paste outer wall tile ・ Auto-lock system with a TV monitor function ■ Also there is a lighting window in the bathroom ■ Receipt of the courier service, etc. even in the absence of a possible courier box located on the first floor ■ルーフバルコニーから東京スカイツリー、富士山がご覧いただけます。(眺望は永続的に保証されるものではありません。)■換気乾燥暖房機能・追い焚き機能付浴室■温水式床暖房(リビングダイニングキッチン)■温水洗浄機能便座付トイレ■外壁タイル貼り・テレビモニター機能付オートロックシステム■浴室にも採光窓がございます■不在時にも宅配便等の受け取りが可能な宅配ボックスが1階にございます |
Features pickup 特徴ピックアップ | | 2 along the line more accessible / System kitchen / Corner dwelling unit / Yang per good / All room storage / Flat to the station / Japanese-style room / Starting station / top floor ・ No upper floor / Wide balcony / 3 face lighting / South balcony / Southwestward / roof balcony 2沿線以上利用可 /システムキッチン /角住戸 /陽当り良好 /全居室収納 /駅まで平坦 /和室 /始発駅 /最上階・上階なし /ワイドバルコニー /3面採光 /南面バルコニー /南西向き /ルーフバルコニー | Property name 物件名 | | ■ Dragon Mansion Kanamachi Ichibankan ■ ■ドラゴンマンション金町壱番館■ | Price 価格 | | 22,700,000 yen 2270万円 | Floor plan 間取り | | 3LDK 3LDK | Units sold 販売戸数 | | 1 units 1戸 | Total units 総戸数 | | 46 units 46戸 | Occupied area 専有面積 | | 64.23 sq m (19.42 tsubo) (center line of wall) 64.23m2(19.42坪)(壁芯) | Other area その他面積 | | Balcony area: 40.92 sq m , Roof balcony: 40.92 sq m (use fee 1640 yen / Month) バルコニー面積:40.92m2、ルーフバルコニー:40.92m2(使用料1640円/月) | Whereabouts floor / structures and stories 所在階/構造・階建 | | 7th floor / RC7 story 7階/RC7階建 | Completion date 完成時期(築年月) | | 5 May 1997 1997年5月 | Address 住所 | | Katsushika-ku, Tokyo Shinjuku 4-11-9 東京都葛飾区新宿4-11-9 | Traffic 交通 | | JR Joban Line "Kanamachi" walk 15 minutes JR Joban Line "Kameari" walk 19 minutes Keiseikanamachi line "Keiseikanamachi" walk 14 minutes JR常磐線「金町」歩15分JR常磐線「亀有」歩19分京成金町線「京成金町」歩14分
| Person in charge 担当者より | | Rep Katagiri 担当者片桐 | Contact お問い合せ先 | | TEL: 0120-984841 [Toll free] Please contact the "saw SUUMO (Sumo)" TEL:0120-984841【通話料無料】「SUUMO(スーモ)を見た」と問い合わせください | Administrative expense 管理費 | | 13,500 yen / Month (consignment (commuting)) 1万3500円/月(委託(通勤)) | Repair reserve 修繕積立金 | | 12,210 yen / Month 1万2210円/月 | Expenses 諸費用 | | Bicycle: 500 yen / Month 駐輪場:500円/月 | Time residents 入居時期 | | Consultation 相談 | Whereabouts floor 所在階 | | 7th floor 7階 | Direction 向き | | Southwest 南西 | Overview and notices その他概要・特記事項 | | Contact: Katagiri 担当者:片桐 | Structure-storey 構造・階建て | | RC7 story RC7階建 | Site of the right form 敷地の権利形態 | | Ownership 所有権 | Use district 用途地域 | | Semi-industrial 準工業 | Parking lot 駐車場 | | Site (5000 yen ~ 11,000 yen / Month) 敷地内(5000円 ~ 1万1000円/月) | Company profile 会社概要 | | <Mediation> Minister of Land, Infrastructure and Transport (6) No. 004139 (Corporation) metropolitan area real estate Fair Trade Council member (Ltd.) Daikyo Riarudo Ueno store sales Section 2 / Telephone reception → Headquarters: Tokyo Yubinbango110-0005, Taito-ku, Tokyo Ueno 2-7-13 JTB Sompo Japan Ueno jointly building the fourth floor <仲介>国土交通大臣(6)第004139号(公社)首都圏不動産公正取引協議会会員 (株)大京リアルド上野店営業二課/電話受付→本社:東京〒110-0005 東京都台東区上野2-7-13 JTB損保ジャパン上野共同ビル4階 | Construction 施工 | | Daiwakensetsu ・ Iwatakensetsu (Ltd.) 大和建設・岩田建設(株) |
Local appearance photo現地外観写真  Local (August 2013) shooting those rooms, It will be reinforced concrete 7-storey 7 floor.
現地(2013年8月)撮影当お部屋は、鉄筋コンクリート造7階建て7階部分になります。
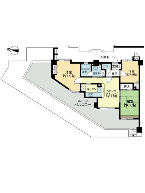
Floor plan間取り図  3LDK, Price 22,700,000 yen, Occupied area 64.23 sq m , Balcony area 40.92 sq m 3LDK + is a roof balcony of the room.
3LDK、価格2270万円、専有面積64.23m2、バルコニー面積40.92m2 3LDK+ルーフバルコニーのお部屋です。
Livingリビング  Room (August 2013) Shooting About 11.5 Pledge of living ・ It will be dining ・
室内(2013年8月)撮影 約11.5帖のリビング・ダイニングになります・
Bathroom浴室  Room (August 2013) Shooting
室内(2013年8月)撮影
Kitchenキッチン  Room (August 2013) Shooting Spacious L-shaped kitchen
室内(2013年8月)撮影 広々L字型システムキッチン
Non-living roomリビング以外の居室  Room (August 2013) Shooting
室内(2013年8月)撮影
Wash basin, toilet洗面台・洗面所  Room (August 2013) Shooting
室内(2013年8月)撮影
Entranceエントランス  It will be the apartment entrance.
マンションエントランスになります。
Other common areasその他共用部  Room before the corridor
お部屋前の廊下
Balconyバルコニー  Local (August 2013) Shooting
現地(2013年8月)撮影
Non-living roomリビング以外の居室  Room (August 2013) Shooting
室内(2013年8月)撮影
Location
|