Used Apartments » Kanto » Tokyo » Katsushika
 
| | Katsushika-ku, Tokyo 東京都葛飾区 |
| Keisei Main Line "Horikiri iris garden" walk 12 minutes 京成本線「堀切菖蒲園」歩12分 |
| [Single person ・ 2-Person Tenant] I Recommended for [Renovation Property] is! Ventilation at the corner dwelling unit ・ Sunny! ! Eyes before [Super Libre Keisei] In is a convenient shopping! ! 【単身者・2人入居】の方におすすめな【リノベーション物件】です!角住戸で通風・日当たり良好!! 目の前は【スーパーリブレ京成】で買い物便利です!! |
| ■ □ ■ □ ■ □ ■ □ ■ □ ■ □ ■ □ ■ □ ■ □ ■ □ ■ □ ■ □ ■ □ ■ □ ■ □ ■ □ ■ □ ■ □ ■ □ ■ □ ■ Two-sided balcony! Walk-in closet is located Pledge LDK11 ・ You can use Western-style 6 Pledge spacious! ! ■ It is rare 1LDK property in this area! Since it is a renovation property also reduced initial cost! ! [Long-term repair plan] There will ■ □ ■ □ ■ □ ■ □ ■ □ ■ □ ■ □ ■ □ ■ □ ■ □ ■ □ ■ □ ■ □ ■ □ ■ □ ■ □ ■ □ ■ □ ■ □ ■ □ Local guides Board accepted in 10:00 ~ 19:00 Please feel free to contact. Responsible Nakamoto will be happy to guide you! ↓ For more information, please refer to the following photos ↓ ■□■□■□■□■□■□■□■□■□■□■□■□■□■□■□■□■□■□■□■□■2面バルコニー!ウォークインクローゼットがありLDK11帖・洋室6帖とゆったり使えます!!■このエリアでは希少な1LDK物件です!リノベーション物件ですので初期費用も抑えられます!! 【長期修繕計画】あります■□■□■□■□■□■□■□■□■□■□■□■□■□■□■□■□■□■□■□■□現地案内会受付中10:00 ~ 19:00 お気軽にご連絡下さい。担当中本がご案内させていただきます!↓詳しくは下記写真を参照下さい↓ |
Features pickup 特徴ピックアップ | | Immediate Available / 2 along the line more accessible / Super close / System kitchen / Corner dwelling unit / All room storage / Flat to the station / Around traffic fewer / Barrier-free / 2 or more sides balcony / Flooring Chokawa / Elevator / High speed Internet correspondence / Warm water washing toilet seat / TV monitor interphone / Renovation / Ventilation good / All living room flooring / Walk-in closet / All room 6 tatami mats or more / water filter / All rooms are two-sided lighting / BS ・ CS ・ CATV / Flat terrain 即入居可 /2沿線以上利用可 /スーパーが近い /システムキッチン /角住戸 /全居室収納 /駅まで平坦 /周辺交通量少なめ /バリアフリー /2面以上バルコニー /フローリング張替 /エレベーター /高速ネット対応 /温水洗浄便座 /TVモニタ付インターホン /リノベーション /通風良好 /全居室フローリング /ウォークインクロゼット /全居室6畳以上 /浄水器 /全室2面採光 /BS・CS・CATV /平坦地 | Property name 物件名 | | Leopard Horikiri レオパード堀切 | Price 価格 | | 12.5 million yen 1250万円 | Floor plan 間取り | | 1LDK 1LDK | Units sold 販売戸数 | | 1 units 1戸 | Total units 総戸数 | | 30 units 30戸 | Occupied area 専有面積 | | 40.95 sq m (12.38 tsubo) (center line of wall) 40.95m2(12.38坪)(壁芯) | Other area その他面積 | | Balcony area: 5.94 sq m バルコニー面積:5.94m2 | Whereabouts floor / structures and stories 所在階/構造・階建 | | Second floor / RC5 story 2階/RC5階建 | Completion date 完成時期(築年月) | | March 1986 1986年3月 | Address 住所 | | Katsushika-ku, Tokyo Horikiri 1 東京都葛飾区堀切1 | Traffic 交通 | | Keisei Main Line "Horikiri iris garden" walk 12 minutes Keisei Oshiage Line "Yotsugi" walk 15 minutes 京成本線「堀切菖蒲園」歩12分 京成押上線「四ツ木」歩15分
| Related links 関連リンク | | [Related Sites of this company] 【この会社の関連サイト】 | Person in charge 担当者より | | Person in charge of real-estate and building Masamitsu Nakamoto Age: 30 Daigyokai Experience: 15 years Shi actually meet, It is the first condition of looking for good properties that get tell all hope. Not only the information to see on the net, Dialogue with still people and the people still ・ Good edge from the trust relationship is born. Please say anything trust. 担当者宅建中本 政光年齢:30代業界経験:15年実際にお会いし、ご希望を全てお伝え頂く事が良い物件探しの第一条件です。ネットで見る情報だけではなく、現在でもやはり人と人との対話・信頼関係から良い縁は生まれます。信頼して何でもおっしゃって下さい。 | Contact お問い合せ先 | | TEL: 0800-808-9189 [Toll free] mobile phone ・ Also available from PHS Caller ID is not notified Please contact the "saw SUUMO (Sumo)" If it does not lead, If the real estate company TEL:0800-808-9189【通話料無料】携帯電話・PHSからもご利用いただけます 発信者番号は通知されません 「SUUMO(スーモ)を見た」と問い合わせください つながらない方、不動産会社の方は
| Administrative expense 管理費 | | 9200 yen / Month (consignment (cyclic)) 9200円/月(委託(巡回)) | Repair reserve 修繕積立金 | | 10,660 yen / Month 1万660円/月 | Time residents 入居時期 | | Immediate available 即入居可 | Whereabouts floor 所在階 | | Second floor 2階 | Direction 向き | | Northeast 北東 | Renovation リフォーム | | October 2013 interior renovation completed (kitchen ・ bathroom ・ toilet ・ wall ・ floor ・ all rooms) 2013年10月内装リフォーム済(キッチン・浴室・トイレ・壁・床・全室) | Overview and notices その他概要・特記事項 | | Contact: Masamitsu Nakamoto 担当者:中本 政光 | Structure-storey 構造・階建て | | RC5 story RC5階建 | Site of the right form 敷地の権利形態 | | Ownership 所有権 | Parking lot 駐車場 | | Nothing 無 | Company profile 会社概要 | | <Mediation> Governor of Tokyo (3) The 081,338 No. eye rent Home Co., Ayase shop Yubinbango120-0005 Adachi-ku, Tokyo Ayase 3-4-5 etcetera first floor <仲介>東京都知事(3)第081338号アイレントホーム(株)綾瀬店〒120-0005 東京都足立区綾瀬3-4-5 エトセトラ1階 | Construction 施工 | | Kyoritsu Construction Co., Ltd. 共立建設(株) |
Local appearance photo現地外観写真  There are long-term repair plan! Surrounding shopping service is good in front of the Super Libre Keisei eyes while residential area!
長期修繕計画のあります!周辺は住宅街ながらスーパーリブレ京成目の前で買い物便良好です!
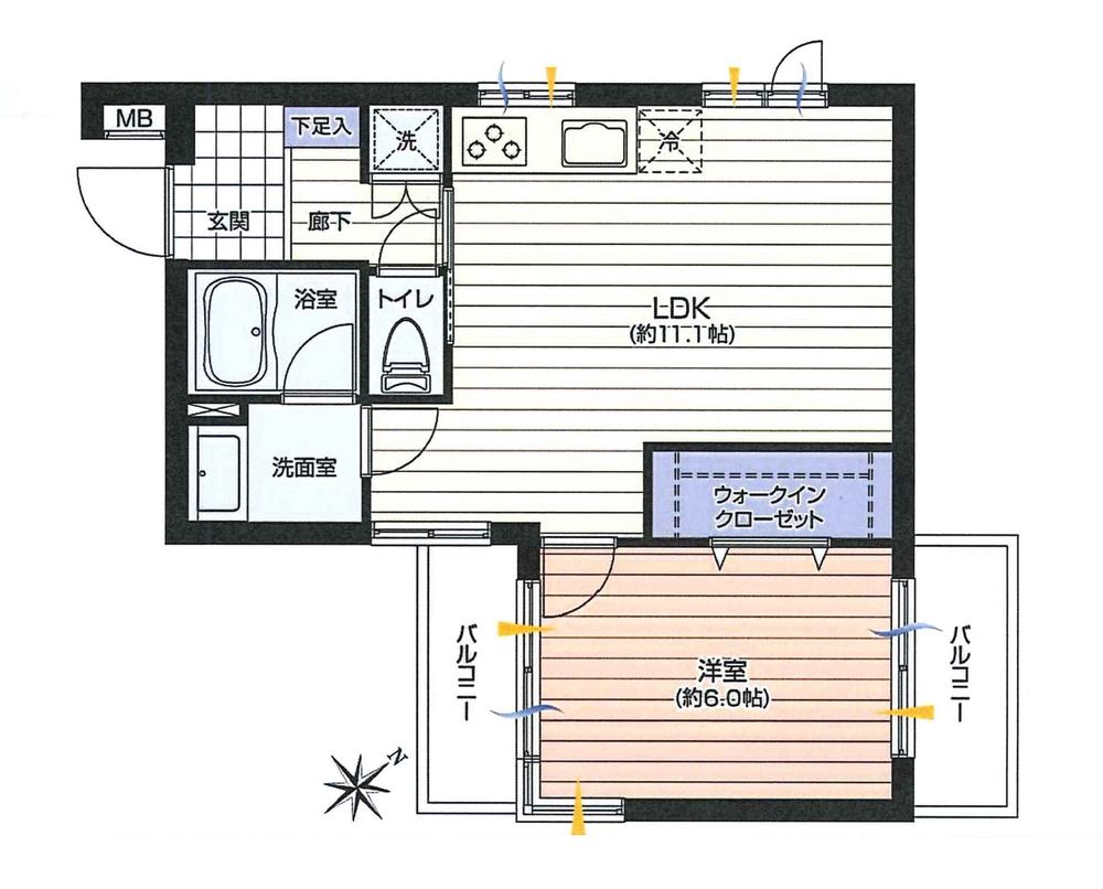
Floor plan間取り図  1LDK, Price 12.5 million yen, Occupied area 40.95 sq m , Balcony area 5.94 sq m interior renovation ・ Day ventilation is good in the corner dwelling unit ・ 13 million yen or less 1LDK renovation listing Joto area is rare.
1LDK、価格1250万円、専有面積40.95m2、バルコニー面積5.94m2 内装リノベーション・角住戸で日当たり通風良好です・城東エリアで1,300万円以下の1LDKリノベーション物件は希少です。
Livingリビング  Interior renovation and construction completed
内装リノベーション施工済
Local appearance photo現地外観写真  local
現地
Livingリビング  Since it is a corner dwelling unit is a window many bright property!
角住戸ですので窓が多く明るい物件です!
Bathroom浴室  Bathroom new exchange
浴室新規交換
Kitchenキッチン  System Kitchen New
システムキッチン新規
Non-living roomリビング以外の居室  Since it is a corner dwelling unit bright Western-style
角住戸ですので明るい洋室
Entrance玄関  Since we have taken a wide space, It puts umbrella and golf equipment, etc.
スペースを広く採っておりますので、傘やゴルフ用品等も置けます
Wash basin, toilet洗面台・洗面所  Vanity shower faucet
シャワー水栓の洗面化粧台
Receipt収納  Walk-in closet new fixtures!
ウォークインクローゼット新規造作!
Toiletトイレ  Shower toilet
シャワートイレ
Entranceエントランス  Common areas
共用部
Supermarketスーパー  Libre Keisei until Horikiri shop 5m
リブレ京成堀切店まで5m
View photos from the dwelling unit住戸からの眺望写真  Not troubled in every day of shopping because it is super Libre Keisei is before the eyes.
目の前はスーパーリブレ京成ですので毎日の買物にも困りません。
Otherその他  But before the Super Libre Keisei eyes! !
スーパーリブレ京成目の前です!!
Receipt収納  You can store plenty to walk-in closet
ウォークインクローゼットにたっぷり収納出来ます
Otherその他  TV monitor with intercom new
TVモニター付きインターフォン新設
Location
|