|
|
Kita-ku, Tokyo
東京都北区
|
|
JR Keihin Tohoku Line "Akabane" walk 5 minutes
JR京浜東北線「赤羽」歩5分
|
|
We will find the rooms meet the needs of our wish to help in fine thoughtfulness. So we are on our HP posted a large number of public before the property, We are allowed to quickly transmit the fresh information. So that I found you live the customer Nasaru consent, And supported by the best with the sense of speed. Sale assessment ・ We also purchase. In the case of hope is, Kee Corporation buying and selling Division 03-6865-1151 until Please feel free to contact us.
お客様のご希望に合ったお部屋探しを細かい心遣いでお手伝いさせて頂きます。弊社HPには公開前の物件を多数掲載しておりますので、新鮮な情報をいち早く発信させて頂いております。お客様が納得なさるお住まいが見つかるよう、スピード感を持って全力でサポートします。売却査定・買い取りも致します。ご希望の際は、ケーコーポレーション売買事業部 03-6865-1151迄 お気軽にお問い合わせ下さい。
|
Features pickup 特徴ピックアップ | | 2 along the line more accessible / System kitchen / Corner dwelling unit / A quiet residential area / Bicycle-parking space / Elevator 2沿線以上利用可 /システムキッチン /角住戸 /閑静な住宅地 /駐輪場 /エレベーター |
Property name 物件名 | | Gem Akabane Advanced City ジェム赤羽アドバンスドシティ |
Price 価格 | | 24,800,000 yen 2480万円 |
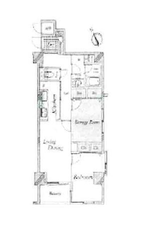
Floor plan 間取り | | 2LDK 2LDK |
Units sold 販売戸数 | | 1 units 1戸 |
Total units 総戸数 | | 29 units 29戸 |
Occupied area 専有面積 | | 55.35 sq m (16.74 tsubo) (center line of wall) 55.35m2(16.74坪)(壁芯) |
Other area その他面積 | | Balcony area: 3.41 sq m バルコニー面積:3.41m2 |
Whereabouts floor / structures and stories 所在階/構造・階建 | | 3rd floor / SRC9 story 3階/SRC9階建 |
Completion date 完成時期(築年月) | | August 1990 1990年8月 |
Address 住所 | | Kita-ku, Tokyo Akabane 1 東京都北区赤羽1 |
Traffic 交通 | | JR Keihin Tohoku Line "Akabane" walk 5 minutes Tokyo Metro Nanboku "Akabaneiwabuchi" walk 4 minutes JR Saikyo Line "North Akabane" walk 22 minutes JR京浜東北線「赤羽」歩5分東京メトロ南北線「赤羽岩淵」歩4分 JR埼京線「北赤羽」歩22分
|
Related links 関連リンク | | [Related Sites of this company] 【この会社の関連サイト】 |
Person in charge 担当者より | | Rep Sueyoshi Takeshi 担当者末吉猛 |
Contact お問い合せ先 | | TEL: 0800-603-1099 [Toll free] mobile phone ・ Also available from PHS Caller ID is not notified Please contact the "saw SUUMO (Sumo)" If it does not lead, If the real estate company TEL:0800-603-1099【通話料無料】携帯電話・PHSからもご利用いただけます 発信者番号は通知されません 「SUUMO(スーモ)を見た」と問い合わせください つながらない方、不動産会社の方は
|
Administrative expense 管理費 | | 14,900 yen / Month (consignment (cyclic)) 1万4900円/月(委託(巡回)) |
Repair reserve 修繕積立金 | | 7480 yen / Month 7480円/月 |
Expenses 諸費用 | | Bicycle: 500 yen / Month 駐輪場:500円/月 |
Time residents 入居時期 | | Consultation 相談 |
Whereabouts floor 所在階 | | 3rd floor 3階 |
Direction 向き | | Southwest 南西 |
Overview and notices その他概要・特記事項 | | Contact: Sueyoshi Takeshi 担当者:末吉猛 |
Structure-storey 構造・階建て | | SRC9 story SRC9階建 |
Site of the right form 敷地の権利形態 | | Ownership 所有権 |
Parking lot 駐車場 | | Sky Mu 空無 |
Company profile 会社概要 | | <Mediation> Governor of Tokyo (7) No. 054460 (Ltd.) Kee Corporation head office Yubinbango113-0001, Bunkyo-ku, Tokyo Hakusan 1-33-19 Lions Mansion Hakusan Station <仲介>東京都知事(7)第054460号(株)ケーコーポレーション本店〒113-0001 東京都文京区白山1-33-19 ライオンズマンション白山駅前 |