|
|
Kita-ku, Tokyo
東京都北区
|
|
JR Saikyo Line "North Akabane" walk 9 minutes
JR埼京線「北赤羽」歩9分
|
|
Large 4LDK, It is with full renovation furniture. You can also your visit on weekdays.
大型4LDK、フルリフォーム家具付きです。平日もご見学出来ます。
|
|
Large 4LDK, It is with full renovation furniture. You can also your visit on weekdays.
大型4LDK、フルリフォーム家具付きです。平日もご見学出来ます。
|
Features pickup 特徴ピックアップ | | Corresponding to the flat-35S / Fit renovation / Immediate Available / 2 along the line more accessible / System kitchen / Bathroom Dryer / Corner dwelling unit / Washbasin with shower / 3 face lighting / Barrier-free / 2 or more sides balcony / Elevator / Warm water washing toilet seat / TV monitor interphone / All living room flooring / Dish washing dryer / Walk-in closet / water filter フラット35Sに対応 /適合リノベーション /即入居可 /2沿線以上利用可 /システムキッチン /浴室乾燥機 /角住戸 /シャワー付洗面台 /3面採光 /バリアフリー /2面以上バルコニー /エレベーター /温水洗浄便座 /TVモニタ付インターホン /全居室フローリング /食器洗乾燥機 /ウォークインクロゼット /浄水器 |
Event information イベント情報 | | Open House (Please be sure to ask in advance) schedule / During the public time / 11:00 ~ 18:00 オープンハウス(事前に必ずお問い合わせください)日程/公開中時間/11:00 ~ 18:00 |
Property name 物件名 | | Lions Akabane 4LDK full renovation ライオンズ赤羽4LDKフルリフォーム |
Price 価格 | | 32,900,000 yen 3290万円 |
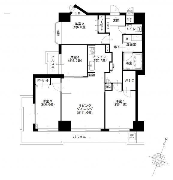
Floor plan 間取り | | 4LDK 4LDK |
Units sold 販売戸数 | | 1 units 1戸 |
Total units 総戸数 | | 65 units 65戸 |
Occupied area 専有面積 | | 79.31 sq m (23.99 tsubo) (center line of wall) 79.31m2(23.99坪)(壁芯) |
Other area その他面積 | | Balcony area: 15.9 sq m バルコニー面積:15.9m2 |
Whereabouts floor / structures and stories 所在階/構造・階建 | | Second floor / RC7 story 2階/RC7階建 |
Completion date 完成時期(築年月) | | April 1987 1987年4月 |
Address 住所 | | Kita-ku, Tokyo Akabanekita 2 東京都北区赤羽北2 |
Traffic 交通 | | JR Saikyo Line "North Akabane" walk 9 minutes Toei Mita Line "Shimura Sakagami" walk 14 minutes JR埼京線「北赤羽」歩9分 都営三田線「志村坂上」歩14分
|
Person in charge 担当者より | | Rep Yamamoto 担当者山本 |
Contact お問い合せ先 | | TEL: 0800-603-8723 [Toll free] mobile phone ・ Also available from PHS Caller ID is not notified Please contact the "saw SUUMO (Sumo)" If it does not lead, If the real estate company TEL:0800-603-8723【通話料無料】携帯電話・PHSからもご利用いただけます 発信者番号は通知されません 「SUUMO(スーモ)を見た」と問い合わせください つながらない方、不動産会社の方は
|
Administrative expense 管理費 | | 11,900 yen / Month (consignment (commuting)) 1万1900円/月(委託(通勤)) |
Repair reserve 修繕積立金 | | 10,710 yen / Month 1万710円/月 |
Time residents 入居時期 | | Immediate available 即入居可 |
Whereabouts floor 所在階 | | Second floor 2階 |
Direction 向き | | Southwest 南西 |
Renovation リフォーム | | October 2013 interior renovation completed (kitchen ・ bathroom ・ toilet ・ wall ・ floor) 2013年10月内装リフォーム済(キッチン・浴室・トイレ・壁・床) |
Overview and notices その他概要・特記事項 | | Contact: Yamamoto 担当者:山本 |
Structure-storey 構造・階建て | | RC7 story RC7階建 |
Site of the right form 敷地の権利形態 | | Ownership 所有権 |
Parking lot 駐車場 | | Sky Mu 空無 |
Company profile 会社概要 | | <Mediation> Governor of Tokyo (1) No. 089356 fit one (stock) Yubinbango136-0071 Koto-ku, Tokyo Kameido 6-16-10 Waizubiru second floor <仲介>東京都知事(1)第089356号フィットワン(株)〒136-0071 東京都江東区亀戸6-16-10ワイズビル2階 |