|
|
Machida, Tokyo
東京都町田市
|
|
Denentoshi Tokyu "Minami Machida" walk 9 minutes
東急田園都市線「南町田」歩9分
|
|
☆ 3 floor angle yang per for the hotel room ・ View ・ Ventilation good ☆ Denentoshi "Minami Machida" station flat walk 9 minutes ☆ Furnished apartment
☆3階部分角部屋のため陽当り・眺望・通風良好☆田園都市線「南町田」駅平坦徒歩9分☆家具付きマンション
|
|
◇ ◆ 2013 April renovation already ◆ ◇ cross Chokawa (part), Bathroom mirror exchange, Toilet exchange, Lighting equipment mounting, Eco-carat installation (LDK), House cleaning [Parking Lot] 100% complete (monthly 5,000 yen ~ 10000 yen) [Bicycle-parking space] Empty Yes (monthly 100 yen ~ 200 yen) [Bike shelter] Empty Yes (1000 yen per month) <pet> Dog ・ Until the cat OK (1 dwelling unit two dogs. Following growth during the length 50 cm)
◇◆平成25年4月リノベーション済み◆◇クロス張替(一部)、浴室鏡交換、トイレ交換、照明器具取付、エコカラット設置(LDK)、ハウスクリーニング【駐車場】100%完備(月額5000円 ~ 10000円)【駐輪場】空有(月額100円 ~ 200円)【バイク置場】空有(月額1000円)<ペット>犬・猫OK(1住戸2匹まで。成長時体長50センチ以下)
|
Features pickup 特徴ピックアップ | | Corresponding to the flat-35S / Immediate Available / Bathroom Dryer / Corner dwelling unit / Yang per good / Flat to the station / Security enhancement / 2 or more sides balcony / Flooring Chokawa / Bicycle-parking space / Elevator / TV monitor interphone / Renovation / Ventilation good / All living room flooring / Pets Negotiable / BS ・ CS ・ CATV / Floor heating / Delivery Box / Bike shelter フラット35Sに対応 /即入居可 /浴室乾燥機 /角住戸 /陽当り良好 /駅まで平坦 /セキュリティ充実 /2面以上バルコニー /フローリング張替 /駐輪場 /エレベーター /TVモニタ付インターホン /リノベーション /通風良好 /全居室フローリング /ペット相談 /BS・CS・CATV /床暖房 /宅配ボックス /バイク置場 |
Property name 物件名 | | Initiative Minami Machida イニシア南町田 |
Price 価格 | | 35,900,000 yen 3590万円 |
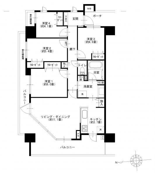
Floor plan 間取り | | 4LDK 4LDK |
Units sold 販売戸数 | | 1 units 1戸 |
Total units 総戸数 | | 85 units 85戸 |
Occupied area 専有面積 | | 80.61 sq m (24.38 tsubo) (center line of wall) 80.61m2(24.38坪)(壁芯) |
Other area その他面積 | | Balcony area: 21.2 sq m バルコニー面積:21.2m2 |
Whereabouts floor / structures and stories 所在階/構造・階建 | | 3rd floor / RC7 story 3階/RC7階建 |
Completion date 完成時期(築年月) | | December 2008 2008年12月 |
Address 住所 | | Machida, Tokyo Tsuruma 東京都町田市鶴間 |
Traffic 交通 | | Denentoshi Tokyu "Minami Machida" walk 9 minutes 東急田園都市線「南町田」歩9分
|
Related links 関連リンク | | [Related Sites of this company] 【この会社の関連サイト】 |
Person in charge 担当者より | | [Regarding this property.] We have subscribed to watch the live home security (Tokyu security) 【この物件について】暮らしを見守るホームセキュリティー(東急セキュリティー)に加入しております |
Contact お問い合せ先 | | TEL: 0800-603-2687 [Toll free] mobile phone ・ Also available from PHS Caller ID is not notified Please contact the "saw SUUMO (Sumo)" If it does not lead, If the real estate company TEL:0800-603-2687【通話料無料】携帯電話・PHSからもご利用いただけます 発信者番号は通知されません 「SUUMO(スーモ)を見た」と問い合わせください つながらない方、不動産会社の方は
|
Administrative expense 管理費 | | 16,500 yen / Month (consignment (commuting)) 1万6500円/月(委託(通勤)) |
Repair reserve 修繕積立金 | | 10,500 yen / Month 1万500円/月 |
Time residents 入居時期 | | Immediate available 即入居可 |
Whereabouts floor 所在階 | | 3rd floor 3階 |
Direction 向き | | West 西 |
Renovation リフォーム | | April 2013 interior renovation completed (kitchen ・ bathroom ・ toilet ・ wall ・ floor) 2013年4月内装リフォーム済(キッチン・浴室・トイレ・壁・床) |
Structure-storey 構造・階建て | | RC7 story RC7階建 |
Site of the right form 敷地の権利形態 | | Ownership 所有権 |
Use district 用途地域 | | Two mid-high 2種中高 |
Parking lot 駐車場 | | Site (5000 yen ~ ¥ 10,000 / Month) 敷地内(5000円 ~ 1万円/月) |
Company profile 会社概要 | | <Mediation> Minister of Land, Infrastructure and Transport (3) No. 005904 (Corporation) Tokyo Metropolitan Government Building Lots and Buildings Transaction Business Association (Corporation) metropolitan area real estate Fair Trade Council member Meiwa Estate Co., Ltd. residential distribution (Ltd.) headquarters sales department Yubinbango150-0045 Shibuya-ku, Tokyo Shinsen-cho, 9-6 <仲介>国土交通大臣(3)第005904号(公社)東京都宅地建物取引業協会会員 (公社)首都圏不動産公正取引協議会加盟明和地所住宅流通(株)本社営業部〒150-0045 東京都渋谷区神泉町9-6 |
Construction 施工 | | Kiuchikensetsu (Ltd.) 木内建設(株) |