2001April
23.8 million yen, 3LDK, 82.91 sq m
Used Apartments » Kanto » Tokyo » Machida
 
| | Machida, Tokyo 東京都町田市 |
| Odakyu line "Tamagawa Gakuen before" walk 18 minutes 小田急線「玉川学園前」歩18分 |
Property name 物件名 | | Precious Garden Tamagawa Gakuen プレシャスガーデン玉川学園 | Price 価格 | | 23.8 million yen 2380万円 | Floor plan 間取り | | 3LDK 3LDK | Units sold 販売戸数 | | 1 units 1戸 | Total units 総戸数 | | 29 units 29戸 | Occupied area 専有面積 | | 82.91 sq m (center line of wall) 82.91m2(壁芯) | Whereabouts floor / structures and stories 所在階/構造・階建 | | 3rd floor / RC5 story 3階/RC5階建 | Completion date 完成時期(築年月) | | April 2001 2001年4月 | Address 住所 | | Machida, Tokyo Kanai 2 東京都町田市金井2 | Traffic 交通 | | Odakyu line "Tamagawa Gakuen before" walk 18 minutes Odakyu line "Machida" 12 minutes Kinokura walk 2 minutes by bus 小田急線「玉川学園前」歩18分 小田急線「町田」バス12分木倉歩2分
| Person in charge 担当者より | | Rep Kurihara Takashi 担当者栗原 崇 | Contact お問い合せ先 | | Tokyu Livable Inc. Machida Center TEL: 0120-109268 [Toll free] Please contact the "saw SUUMO (Sumo)" 東急リバブル(株)町田センターTEL:0120-109268【通話料無料】「SUUMO(スーモ)を見た」と問い合わせください | Administrative expense 管理費 | | 15,090 yen / Month (consignment (commuting)) 1万5090円/月(委託(通勤)) | Repair reserve 修繕積立金 | | 15,620 yen / Month 1万5620円/月 | Time residents 入居時期 | | Immediate available 即入居可 | Whereabouts floor 所在階 | | 3rd floor 3階 | Direction 向き | | Southeast 南東 | Other limitations その他制限事項 | | Other expenses 1425 yen / Month Sky balcony fee: 900 yen, CATV fee: 525 yen management system: day shift その他費用1425円/月 スカイバルコニー使用料:900円、CATV使用料:525円 管理方式:日勤 | Overview and notices その他概要・特記事項 | | Contact: Kurihara Takashi 担当者:栗原 崇 | Structure-storey 構造・階建て | | RC5 story RC5階建 | Site of the right form 敷地の権利形態 | | Ownership 所有権 | Use district 用途地域 | | One low-rise 1種低層 | Parking lot 駐車場 | | Site (7000 yen / Month) 敷地内(7000円/月) | Company profile 会社概要 | | <Mediation> Minister of Land, Infrastructure and Transport (10) No. 002611 (one company) Real Estate Association (Corporation) metropolitan area real estate Fair Trade Council member Tokyu Livable Inc. Machida center Yubinbango194-0013 Machida, Tokyo Haramachida 6-3-8 Sumitomo Mitsui Banking Corporation Machida Station building the fourth floor <仲介>国土交通大臣(10)第002611号(一社)不動産協会会員 (公社)首都圏不動産公正取引協議会加盟東急リバブル(株)町田センター〒194-0013 東京都町田市原町田6-3-8 三井住友銀行町田駅前ビル4階 |
Local appearance photo現地外観写真  April 2001 Built, Because of the terrain of south terraced, Sunshine is good.
平成13年4月築、南ひな壇の地勢のため、日照良好です。
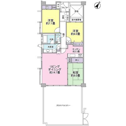
Floor plan間取り図  The LD floor heating. bathroom, There is a window in washroom, You can ventilation.
LDには床暖房。浴室、洗面所にも窓があり、換気ができます。
Location
|