|
|
Minato-ku, Tokyo
東京都港区
|
|
Tokyo Metro Chiyoda Line "Omotesando" walk 10 minutes
東京メトロ千代田線「表参道」歩10分
|
|
2008 large-scale repair work already
平成20年大規模修繕工事済み
|
|
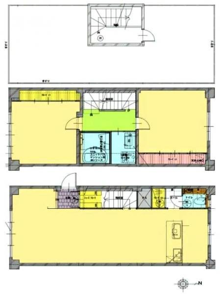
January 2010 skeleton renovation already. 44.95 square meters with a roof balcony. With a large shoes Cloak Inn. 21-inch bathroom with TV.
平成22年1月スケルトンリノベーション済み。44.95平米のルーフバルコニー付。大型シューズクロークイン付。21型浴室TV付。
|
Features pickup 特徴ピックアップ | | Year Available / Immediate Available / 2 along the line more accessible / Facing south / System kitchen / Bathroom Dryer / Yang per good / top floor ・ No upper floor / Face-to-face kitchen / South balcony / Otobasu / High speed Internet correspondence / All living room flooring / IH cooking heater / water filter / roof balcony 年内入居可 /即入居可 /2沿線以上利用可 /南向き /システムキッチン /浴室乾燥機 /陽当り良好 /最上階・上階なし /対面式キッチン /南面バルコニー /オートバス /高速ネット対応 /全居室フローリング /IHクッキングヒーター /浄水器 /ルーフバルコニー |
Property name 物件名 | | Minami-Aoyama Green Hill House 南青山グリーンヒルハウス |
Price 価格 | | 79 million yen 7900万円 |
Floor plan 間取り | | 2LDK 2LDK |
Units sold 販売戸数 | | 1 units 1戸 |
Total units 総戸数 | | 10 units 10戸 |
Occupied area 専有面積 | | 105.79 sq m (center line of wall) 105.79m2(壁芯) |
Other area その他面積 | | Balcony area: 15.28 sq m , Roof balcony: 44.95 sq m (use fee 600 yen / Month) バルコニー面積:15.28m2、ルーフバルコニー:44.95m2(使用料600円/月) |
Whereabouts floor / structures and stories 所在階/構造・階建 | | 3rd floor / RC3 floors 1 underground story 3階/RC3階地下1階建 |
Completion date 完成時期(築年月) | | December 1983 1983年12月 |
Address 住所 | | Tokyo Minami-Aoyama, Minato-ku, 4 東京都港区南青山4 |
Traffic 交通 | | Tokyo Metro Chiyoda Line "Omotesando" walk 10 minutes Tokyo Metro Ginza Line "Omotesando" walk 10 minutes Tokyo Metro Hanzomon "Omotesando" walk 10 minutes 東京メトロ千代田線「表参道」歩10分 東京メトロ銀座線「表参道」歩10分 東京メトロ半蔵門線「表参道」歩10分
|
Related links 関連リンク | | [Related Sites of this company] 【この会社の関連サイト】 |
Contact お問い合せ先 | | TEL: 0800-603-0560 [Toll free] mobile phone ・ Also available from PHS Caller ID is not notified Please contact the "saw SUUMO (Sumo)" If it does not lead, If the real estate company TEL:0800-603-0560【通話料無料】携帯電話・PHSからもご利用いただけます 発信者番号は通知されません 「SUUMO(スーモ)を見た」と問い合わせください つながらない方、不動産会社の方は
|
Administrative expense 管理費 | | 22,400 yen / Month (consignment (commuting)) 2万2400円/月(委託(通勤)) |
Repair reserve 修繕積立金 | | 22,400 yen / Month 2万2400円/月 |
Time residents 入居時期 | | Immediate available 即入居可 |
Whereabouts floor 所在階 | | 3rd floor 3階 |
Direction 向き | | East 東 |
Structure-storey 構造・階建て | | RC3 floors 1 underground story RC3階地下1階建 |
Site of the right form 敷地の権利形態 | | Ownership 所有権 |
Use district 用途地域 | | Two mid-high 2種中高 |
Parking lot 駐車場 | | Sky Mu 空無 |
Company profile 会社概要 | | <Mediation> Minister of Land, Infrastructure and Transport (3) No. 006,185 (one company) National Housing Industry Association (Corporation) metropolitan area real estate Fair Trade Council member Asahi housing (stock) new downtown shop 160-0023 Tokyo Nishi-Shinjuku, Shinjuku-ku, 1-19-6 Shinjuku Yamate building 7th floor <仲介>国土交通大臣(3)第006185号(一社)全国住宅産業協会会員 (公社)首都圏不動産公正取引協議会加盟朝日住宅(株)新都心店〒160-0023 東京都新宿区西新宿1-19-6 山手新宿ビル7階 |