2000August
31.5 million yen, 3LDK, 68.78 sq m
Used Apartments » Kanto » Tokyo » Nishitokyo
 
| | Tokyo Nishitokyo 東京都西東京市 |
| Seibu Shinjuku Line "Higashifushimi" walk 3 minutes 西武新宿線「東伏見」歩3分 |
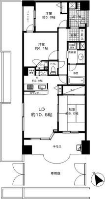
Property name 物件名 | | Leksell Mansion Higashifushimi レクセルマンション東伏見 | Price 価格 | | 31.5 million yen 3150万円 | Floor plan 間取り | | 3LDK 3LDK | Units sold 販売戸数 | | 1 units 1戸 | Total units 総戸数 | | 28 units 28戸 | Occupied area 専有面積 | | 68.78 sq m (center line of wall) 68.78m2(壁芯) | Other area その他面積 | | Balcony area: 3.27 sq m バルコニー面積:3.27m2 | Whereabouts floor / structures and stories 所在階/構造・階建 | | 1st floor / RC5 story 1階/RC5階建 | Completion date 完成時期(築年月) | | August 2000 2000年8月 | Address 住所 | | Tokyo Nishitokyo Fuji-cho 4 東京都西東京市富士町4 | Traffic 交通 | | Seibu Shinjuku Line "Higashifushimi" walk 3 minutes 西武新宿線「東伏見」歩3分
| Person in charge 担当者より | | Rep Ito Taketoku 担当者伊藤 丈徳 | Contact お問い合せ先 | | Sumitomo Real Estate Sales Co., Ltd. Oizumigakuen business center TEL: 03-5387-6191 Please contact as "saw SUUMO (Sumo)" 住友不動産販売(株)大泉学園営業センターTEL:03-5387-6191「SUUMO(スーモ)を見た」と問い合わせください | Administrative expense 管理費 | | 13,760 yen / Month (consignment (commuting)) 1万3760円/月(委託(通勤)) | Repair reserve 修繕積立金 | | 15,000 yen / Month 1万5000円/月 | Time residents 入居時期 | | Consultation 相談 | Whereabouts floor 所在階 | | 1st floor 1階 | Direction 向き | | South 南 | Other limitations その他制限事項 | | Private garden fee: 01,500 yen 専用庭使用料:0.15万円 | Overview and notices その他概要・特記事項 | | Contact: Ito Taketoku 担当者:伊藤 丈徳 | Structure-storey 構造・階建て | | RC5 story RC5階建 | Site of the right form 敷地の権利形態 | | Ownership 所有権 | Use district 用途地域 | | One middle and high 1種中高 | Parking lot 駐車場 | | Site (18,000 yen ~ 20,000 yen / Month) 敷地内(1万8000円 ~ 2万円/月) | Company profile 会社概要 | | <Mediation> Minister of Land, Infrastructure and Transport (11) No. 002077 (one company) Real Estate Association (Corporation) metropolitan area real estate Fair Trade Council member Sumitomo Real Estate Sales Co., Ltd. Oizumigakuen business center Yubinbango178-0063 Nerima-ku, Tokyo Higashioizumi 1-37-1 Marukishibiru fourth floor <仲介>国土交通大臣(11)第002077号(一社)不動産協会会員 (公社)首都圏不動産公正取引協議会加盟住友不動産販売(株)大泉学園営業センター〒178-0063 東京都練馬区東大泉1-37-1 マルキシビル4階 |
Local appearance photo現地外観写真  Appearance 1
外観1
 Floor plan
間取り図
Location
|