Used Apartments » Kanto » Tokyo » Sumida
 
| | Sumida-ku, Tokyo 東京都墨田区 |
| JR Sobu Line "Kinshicho" walk 10 minutes JR総武線「錦糸町」歩10分 |
| «New interior renovation» in the two-sided balcony of the south-west angle of the room is good per yang 3 line 3 station available convenience good apartment details and preview until you feel free to 0120-878-011 ≪新規内装リノベーション≫南西角部屋の二面バルコニーで陽当たり良好です3路線3駅利用可能な利便性良好マンション詳細や内見はお気軽に0120-878-011まで |
| ■ Payment example of mortgage monthly 110,943 yen ■ * Partner banks: Interest rate 0.775% (change) * Down payment of 1 million yen: borrowing 4,080 yen * 35 years: no bonus * There are additional expenses ※ Interest rates, Your borrowing contents of your Ya It depends on the examination results ※ ━ ◆ Free FP simulation Consultation carried out in! ◆ ━ Why do not you "visualize" the vague anxiety? ・ Carefree is rent ・ ・ ・ ? ・ From accumulating your down payment ・ ・ ・ ? ・ What 10-year bonus? Life largest shopping is not a "house". ◎ will tell the wisdom of confidential ◎ ◆ ━ ◇ ━ ◇ ━ ◆ ━ ◇ ◆ ◆ ◇ ━ ◆ ━ ◇ ━ ◇ ━ ◆ ■住宅ローン月々のお支払い例 110,943円■ *提携銀行:金利0.775%(変動) *頭金100万円:借入額 4,080万円 *35年:ボーナス無し *別途諸費用有り ※金利は、お客様のお借入内容や 審査結果によって異なります※━◆無料FPシュミレーション相談会実施中!◆━ 漠然とした不安を「見える化」しませんか? ・賃貸が気楽・・・??? ・頭金を貯めてから・・・??? ・10年間のボーナスって??? 人生最大の買い物は 『家』 ではありません。 ◎マル秘の知恵をお伝えします◎◆━◇━◇━◆━◇◆◆◇━◆━◇━◇━◆ |
Features pickup 特徴ピックアップ | | 2 along the line more accessible / Super close / It is close to the city / System kitchen / Bathroom Dryer / Corner dwelling unit / All room storage / Flat to the station / Japanese-style room / 2 or more sides balcony / Elevator / The window in the bathroom / Renovation / Ventilation good / Pets Negotiable / Floor heating 2沿線以上利用可 /スーパーが近い /市街地が近い /システムキッチン /浴室乾燥機 /角住戸 /全居室収納 /駅まで平坦 /和室 /2面以上バルコニー /エレベーター /浴室に窓 /リノベーション /通風良好 /ペット相談 /床暖房 | Property name 物件名 | | Sankutasu Kinshicho Clef サンクタス錦糸町クレフ | Price 価格 | | 41,800,000 yen 4180万円 | Floor plan 間取り | | 3LDK 3LDK | Units sold 販売戸数 | | 1 units 1戸 | Total units 総戸数 | | 38 houses 38戸 | Occupied area 専有面積 | | 73.19 sq m (center line of wall) 73.19m2(壁芯) | Other area その他面積 | | Balcony area: 9.35 sq m バルコニー面積:9.35m2 | Whereabouts floor / structures and stories 所在階/構造・階建 | | Second floor / RC8 story 2階/RC8階建 | Completion date 完成時期(築年月) | | March 2002 2002年3月 | Address 住所 | | Sumida-ku, Tokyo Koto Bridge 5 東京都墨田区江東橋5 | Traffic 交通 | | JR Sobu Line "Kinshicho" walk 10 minutes Toei Shinjuku Line "Sumiyoshi" walk 9 minutes Toei Shinjuku Line "Kikugawa" walk 9 minutes JR総武線「錦糸町」歩10分都営新宿線「住吉」歩9分 都営新宿線「菊川」歩9分
| Related links 関連リンク | | [Related Sites of this company] 【この会社の関連サイト】 | Person in charge 担当者より | | Person in charge of real-estate and building FP is a staff Century 21 Premium Life. Please feel free to contact us anything if it is a thing of real estate. The floor plan will deliver the thrill that does not ride. 担当者宅建FPスタッフ一同センチュリー21プレミアムライフです。不動産の事なら何でもお気軽にお問合せください。間取り図には載らないトキメキをお届けいたします。 | Contact お問い合せ先 | | TEL: 0120-878011 [Toll free] Please contact the "saw SUUMO (Sumo)" TEL:0120-878011【通話料無料】「SUUMO(スーモ)を見た」と問い合わせください | Administrative expense 管理費 | | 7300 yen / Month (consignment (commuting)) 7300円/月(委託(通勤)) | Repair reserve 修繕積立金 | | 16,500 yen / Month 1万6500円/月 | Time residents 入居時期 | | Consultation 相談 | Whereabouts floor 所在階 | | Second floor 2階 | Direction 向き | | West 西 | Renovation リフォーム | | 2013 November interior renovation completed (kitchen ・ bathroom ・ toilet ・ wall ・ floor) 2013年11月内装リフォーム済(キッチン・浴室・トイレ・壁・床) | Overview and notices その他概要・特記事項 | | Contact: staff 担当者:スタッフ一同 | Structure-storey 構造・階建て | | RC8 story RC8階建 | Site of the right form 敷地の権利形態 | | Ownership 所有権 | Parking lot 駐車場 | | Site (23,000 yen ~ 28,000 yen / Month) 敷地内(2万3000円 ~ 2万8000円/月) | Company profile 会社概要 | | <Mediation> Governor of Tokyo (2) the first 089,712 No. Century 21 (Ltd.) Premium Life Yubinbango108-0014 Shiba, Minato-ku, Tokyo 4-11-1 TB Tamachi Building fourth floor <仲介>東京都知事(2)第089712号センチュリー21(株)プレミアムライフ〒108-0014 東京都港区芝4-11-1 TB田町ビル4階 |
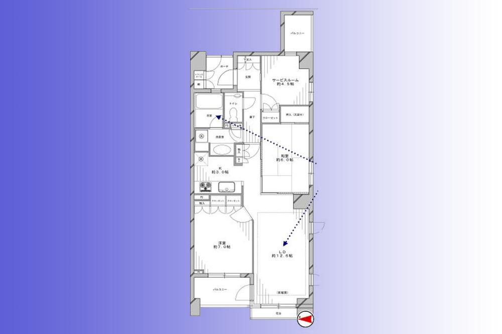
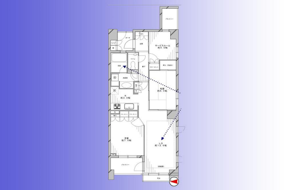
Floor plan間取り図  ☆ The Tokimeki not Nora in floor plan ☆ For more details, please contact 0120-878-011.
☆間取り図には載らないトキメキを☆詳しくは0120-878-011までお願い致します。
Livingリビング ![Living. [living] In pre-floor heating installation, Cold season is also feet warm](/images/tokyo/sumida/38b3bf0053.jpg) [living] In pre-floor heating installation, Cold season is also feet warm
【リビング】床暖房設置済みで、寒い季節も足元ポカポカです
Floor plan間取り図  3LDK, Price 41,800,000 yen, Occupied area 73.19 sq m , Balcony area 9.35 sq m southwest angle room ・ Two-sided balcony
3LDK、価格4180万円、専有面積73.19m2、バルコニー面積9.35m2 南西角部屋・2面バルコニー
Kitchenキッチン ![Kitchen. [kitchen] Refreshing design of the white system.](/images/tokyo/sumida/38b3bf0044.jpg) [kitchen] Refreshing design of the white system.
【キッチン】ホワイト系の爽やかなデザイン。
Local appearance photo現地外観写真 ![Local appearance photo. [appearance] 2002 Built Total units 38 units Design highly facade.](/images/tokyo/sumida/38b3bf0011.jpg) [appearance] 2002 Built Total units 38 units Design highly facade.
【外観】平成14年築 総戸数38戸 デザイン性の高いファサード。
Livingリビング ![Living. [living] Since the kitchen is independent, You can use widely.](/images/tokyo/sumida/38b3bf0056.jpg) [living] Since the kitchen is independent, You can use widely.
【リビング】キッチンが独立しているので、広く使えます。
Bathroom浴室 ![Bathroom. [bathroom] Bathroom with a bathroom dryer. It is also equipped with window, Natural ventilation is also possible.](/images/tokyo/sumida/38b3bf0038.jpg) [bathroom] Bathroom with a bathroom dryer. It is also equipped with window, Natural ventilation is also possible.
【浴室】浴室乾燥機付のバスルーム。窓も付いており、自然換気も可能です。
Kitchenキッチン ![Kitchen. [kitchen] There is also plenty of storage.](/images/tokyo/sumida/38b3bf0047.jpg) [kitchen] There is also plenty of storage.
【キッチン】タップリ収納もございます。
Non-living roomリビング以外の居室 ![Non-living room. [Japanese-style room] About 6 Pledge of Japanese-style room. It is also possible to connect the living room to open the sliding door.](/images/tokyo/sumida/38b3bf0052.jpg) [Japanese-style room] About 6 Pledge of Japanese-style room. It is also possible to connect the living room to open the sliding door.
【和室】約6帖の和室。襖を開放してリビングとつなげることも可能です。
Entrance玄関 ![Entrance. [Entrance] Entrance feeling of luxury in the tiled. Step even less, Friendly entrance for those of children and our elderly.](/images/tokyo/sumida/38b3bf0021.jpg) [Entrance] Entrance feeling of luxury in the tiled. Step even less, Friendly entrance for those of children and our elderly.
【玄関】タイル貼りで高級感のある玄関。段差も少なく、お子様やご年配の方にも優しい玄関です。
Wash basin, toilet洗面台・洗面所 ![Wash basin, toilet. [Bathroom vanity] Vanity storage are also rich with.](/images/tokyo/sumida/38b3bf0033.jpg) [Bathroom vanity] Vanity storage are also rich with.
【洗面化粧台】収納も豊富に付いている洗面化粧台。
Receipt収納 ![Receipt. [Shoe box] It established the large capacity of the shoe box.](/images/tokyo/sumida/38b3bf0020.jpg) [Shoe box] It established the large capacity of the shoe box.
【シューズボックス】大容量のシューズボックスを設置しました。
Toiletトイレ ![Toilet. [toilet] Glad hand-washing facilities with a bidet toilet. There is a feeling of cleanliness.](/images/tokyo/sumida/38b3bf0024.jpg) [toilet] Glad hand-washing facilities with a bidet toilet. There is a feeling of cleanliness.
【トイレ】嬉しい手洗い場付きのウォシュレットトイレ。清潔感があります。
Entranceエントランス ![Entrance. [entrance] Urban and smart entrance.](/images/tokyo/sumida/38b3bf0010.jpg) [entrance] Urban and smart entrance.
【エントランス】都会的でスマートなエントランス。
Balconyバルコニー ![Balcony. [balcony] Balcony with depth.](/images/tokyo/sumida/38b3bf0054.jpg) [balcony] Balcony with depth.
【バルコニー】奥行きのあるバルコニー。
Non-living roomリビング以外の居室 ![Non-living room. [Western style room] About 7 Pledge of Western-style.](/images/tokyo/sumida/38b3bf0050.jpg) [Western style room] About 7 Pledge of Western-style.
【洋室】約7帖の洋室。
Entrance玄関 ![Entrance. [Pouch] A private porch to enhance the privacy of.](/images/tokyo/sumida/38b3bf0013.jpg) [Pouch] A private porch to enhance the privacy of.
【ポーチ】プライバシー性を高める専用ポーチ付きです。
Receipt収納 ![Receipt. [Receipt] Storage rich interior. There are also storage compartment in the living room entrance.](/images/tokyo/sumida/38b3bf0051.jpg) [Receipt] Storage rich interior. There are also storage compartment in the living room entrance.
【収納】収納豊富な室内。リビング入口にも物入れがあります。
Entranceエントランス  Auto-lock equipped
【オートロック完備】
Receipt収納 ![Receipt. [closet] The Japanese there is amount of storage abundant closet.](/images/tokyo/sumida/38b3bf0059.jpg) [closet] The Japanese there is amount of storage abundant closet.
【押入】和室には収納量豊富な押入れがあります。
Entranceエントランス ![Entrance. [entrance] Pet breeding is also possible (Terms have)](/images/tokyo/sumida/38b3bf0004.jpg) [entrance] Pet breeding is also possible (Terms have)
【エントランス】ペットの飼育も可能です(規約有)
Station駅  "Kinshicho" station walk about 10 minutes. 3 Station 3 is located with excellent routes available convenience.
「錦糸町」駅徒歩約10分。3駅3路線利用可能な利便性に優れた立地です。
Presentプレゼント  December 2012 or later !! started your limited !! customers preferential treatment services "PREMIUMLIFE CLUB" I received ourselves and our dealings ● special preferential service contents ● ◆ Utilization NO.1! Money accommodation is about 2000 places! ◆ Play spot nationwide about 100 locations in the membership discount! ◆ Good for travel to all over the world in the member preferential price! ◆ A day spa and spa across the country about 50 locations in the membership discount! ◆ Nationwide babysitting services in the member preferential price!
平成24年12月以降弊社とお取引頂きましたお客様限定!!お客様優待サービス『 PREMIUMLIFE CLUB 』をスタートしました!!●特別優待サービス内容●◆利用率NO.1!お得な宿泊施設が約2000ヶ所!◆全国約100ヶ所のプレイスポットを会員割引で!◆世界各地へのこだわり旅行を会員優待価格で!◆全国約50ヶ所の日帰り温泉やスパを会員割引で!◆全国のベビーシッターサービスを会員優待価格で!
Location
|