1999December
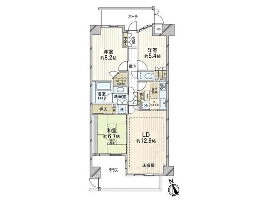
56,800,000 yen, 3LDK, 79.25 sq m
Used Apartments » Kanto » Tokyo » Toshima ward
 
| | Toshima-ku, Tokyo 東京都豊島区 |
| JR Yamanote Line "Sugamo" walk 4 minutes JR山手線「巣鴨」歩4分 |
Property name 物件名 | | Fair low Jeu Komagome フェアロージュ駒込 | Price 価格 | | 56,800,000 yen 5680万円 | Floor plan 間取り | | 3LDK 3LDK | Units sold 販売戸数 | | 1 units 1戸 | Total units 総戸数 | | 30 units 30戸 | Occupied area 専有面積 | | 79.25 sq m (center line of wall) 79.25m2(壁芯) | Whereabouts floor / structures and stories 所在階/構造・階建 | | 1st floor / RC7 story 1階/RC7階建 | Completion date 完成時期(築年月) | | December 1999 1999年12月 | Address 住所 | | Toshima-ku, Tokyo Komagome 4 東京都豊島区駒込4 | Traffic 交通 | | JR Yamanote Line "Sugamo" walk 4 minutes Toei Mita Line "Sugamo" walk 4 minutes JR山手線「巣鴨」歩4分 都営三田線「巣鴨」歩4分
| Person in charge 担当者より | | Rep Hirotaka Kawaguchi 担当者川口弘隆 | Contact お問い合せ先 | | Mitsui Rehouse Komagome shop Mitsui Fudosan Realty (Ltd.) TEL: 0120-150312 [Toll free] Please contact the "saw SUUMO (Sumo)" 三井のリハウス駒込店三井不動産リアルティ(株)TEL:0120-150312【通話料無料】「SUUMO(スーモ)を見た」と問い合わせください | Administrative expense 管理費 | | 22,200 yen / Month (consignment (commuting)) 2万2200円/月(委託(通勤)) | Repair reserve 修繕積立金 | | 9510 yen / Month 9510円/月 | Time residents 入居時期 | | Consultation 相談 | Whereabouts floor 所在階 | | 1st floor 1階 | Direction 向き | | Southwest 南西 | Other limitations その他制限事項 | | Other expenses 200 yen / Month Town dues その他費用200円/月 町内会費 | Overview and notices その他概要・特記事項 | | Contact: Hirotaka Kawaguchi 担当者:川口弘隆 | Structure-storey 構造・階建て | | RC7 story RC7階建 | Site of the right form 敷地の権利形態 | | Ownership 所有権 | Use district 用途地域 | | One middle and high 1種中高 | Parking lot 駐車場 | | Sky Mu 空無 | Company profile 会社概要 | | <Mediation> Minister of Land, Infrastructure and Transport (13) No. 000777 (one company) Property distribution management Association (Corporation) metropolitan area real estate Fair Trade Council member Mitsui Rehouse Komagome shop Mitsui Fudosan Realty Co. Yubinbango113-0021, Bunkyo-ku, Tokyo Honkomagome 6-25-6 Itobiru Komagome first floor <仲介>国土交通大臣(13)第000777号(一社)不動産流通経営協会会員 (公社)首都圏不動産公正取引協議会加盟三井のリハウス駒込店三井不動産リアルティ(株)〒113-0021 東京都文京区本駒込6-25-6 イトービル駒込1階 |
 Local appearance photo
現地外観写真
 Floor plan
間取り図
Location
|