2003October
52,800,000 yen, 1LDK, 56.83 sq m
Used Apartments » Kanto » Tokyo » Toshima ward
 
| | Toshima-ku, Tokyo 東京都豊島区 |
| JR Yamanote Line "Mejiro" walk 2 minutes JR山手線「目白」歩2分 |
Property name 物件名 | | Guran'abite Mejiro station front グランアビテ目白ステーションフロント | Price 価格 | | 52,800,000 yen 5280万円 | Floor plan 間取り | | 1LDK 1LDK | Units sold 販売戸数 | | 1 units 1戸 | Total units 総戸数 | | 64 units 64戸 | Occupied area 専有面積 | | 56.83 sq m (center line of wall) 56.83m2(壁芯) | Whereabouts floor / structures and stories 所在階/構造・階建 | | 15th floor / SRC15 story 15階/SRC15階建 | Completion date 完成時期(築年月) | | October 2003 2003年10月 | Address 住所 | | Toshima-ku, Tokyo Mejiro 3 東京都豊島区目白3 | Traffic 交通 | | JR Yamanote Line "Mejiro" walk 2 minutes JR山手線「目白」歩2分
| Person in charge 担当者より | | Rep Miwa Takahashi 担当者高橋美和 | Contact お問い合せ先 | | Mitsui Rehouse Ikebukuro Mitsui Fudosan Realty (Ltd.) TEL: 0120-313720 [Toll free] Please contact the "saw SUUMO (Sumo)" 三井のリハウス池袋店三井不動産リアルティ(株)TEL:0120-313720【通話料無料】「SUUMO(スーモ)を見た」と問い合わせください | Administrative expense 管理費 | | 10,120 yen / Month (consignment (commuting)) 1万120円/月(委託(通勤)) | Repair reserve 修繕積立金 | | 9380 yen / Month 9380円/月 | Time residents 入居時期 | | Consultation 相談 | Whereabouts floor 所在階 | | 15th floor 15階 | Direction 向き | | East 東 | Other limitations その他制限事項 | | Other expenses 2835 yen / Month Cost of Internet access その他費用2835円/月 インターネット使用料 | Overview and notices その他概要・特記事項 | | Contact Person: Miwa Takahashi 担当者:高橋美和 | Structure-storey 構造・階建て | | SRC15 story SRC15階建 | Site of the right form 敷地の権利形態 | | Ownership 所有権 | Use district 用途地域 | | Commerce 商業 | Parking lot 駐車場 | | Sky Mu 空無 | Company profile 会社概要 | | <Mediation> Minister of Land, Infrastructure and Transport (13) No. 000777 (one company) Property distribution management Association (Corporation) metropolitan area real estate Fair Trade Council member Mitsui Rehouse Ikebukuro Mitsui Fudosan Realty Co. Yubinbango171-0022 Toshima-ku, Tokyo Minamiikebukuro 1-19-6 ORIX Ikebukuro building the third floor <仲介>国土交通大臣(13)第000777号(一社)不動産流通経営協会会員 (公社)首都圏不動産公正取引協議会加盟三井のリハウス池袋店三井不動産リアルティ(株)〒171-0022 東京都豊島区南池袋1-19-6 オリックス池袋ビル3階 |
 Local appearance photo
現地外観写真
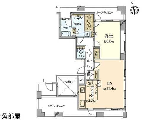
 Floor plan
間取り図
Location
|