|
|
Toshima-ku, Tokyo
東京都豊島区
|
|
Tokyo Metro Marunouchi Line "Shin'otsuka" walk 3 minutes
東京メトロ丸ノ内線「新大塚」歩3分
|
|
Southeast angle room of 10 floor Good per sun Good view Indoor full renovation Property Seismic reinforcement work planned
10階部分の東南角部屋 陽当たり良好 眺望良好 室内フルリフォーム物件 耐震補強工事実施予定
|
|
Please tell us the do not hesitate to visit because there is also model room.
モデルルームもございますのでお気軽にご見学をお申し付けください。
|
Features pickup 特徴ピックアップ | | 2 along the line more accessible / Interior renovation / System kitchen / Bathroom Dryer / Corner dwelling unit / Yang per good / Flat to the station / High floor / Washbasin with shower / 2 or more sides balcony / Southeast direction / Elevator / High speed Internet correspondence / Warm water washing toilet seat / Mu front building / Ventilation good / All living room flooring / Good view / Walk-in closet / water filter 2沿線以上利用可 /内装リフォーム /システムキッチン /浴室乾燥機 /角住戸 /陽当り良好 /駅まで平坦 /高層階 /シャワー付洗面台 /2面以上バルコニー /東南向き /エレベーター /高速ネット対応 /温水洗浄便座 /前面棟無 /通風良好 /全居室フローリング /眺望良好 /ウォークインクロゼット /浄水器 |
Property name 物件名 | | Shin'otsuka Town Plaza 新大塚タウンプラザ |
Price 価格 | | 23.8 million yen 2380万円 |
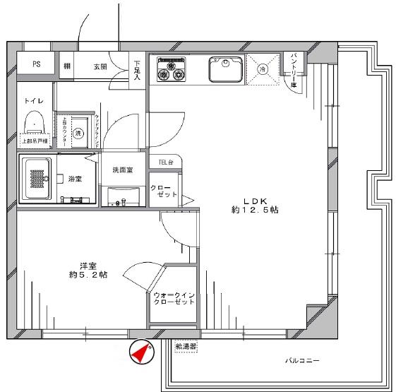
Floor plan 間取り | | 1LDK 1LDK |
Units sold 販売戸数 | | 1 units 1戸 |
Total units 総戸数 | | 96 homes 96戸 |
Occupied area 専有面積 | | 39 sq m (center line of wall) 39m2(壁芯) |
Other area その他面積 | | Balcony area: 11.43 sq m バルコニー面積:11.43m2 |
Whereabouts floor / structures and stories 所在階/構造・階建 | | 10th floor / RC11 story 10階/RC11階建 |
Completion date 完成時期(築年月) | | April 1982 1982年4月 |
Address 住所 | | Toshima-ku, Tokyo Ikebukuro 5 東京都豊島区東池袋5 |
Traffic 交通 | | Tokyo Metro Marunouchi Line "Shin'otsuka" walk 3 minutes JR Yamanote line "Otsuka" walk 7 minutes Toden Arakawa Line "Mukaihara" walk 4 minutes 東京メトロ丸ノ内線「新大塚」歩3分 JR山手線「大塚」歩7分 都電荒川線「向原」歩4分
|
Related links 関連リンク | | [Related Sites of this company] 【この会社の関連サイト】 |
Person in charge 担当者より | | Person in charge of real-estate and building Sugiyama Teruya a lot of my best and my best to give you a "thank you". 担当者宅建杉山 輝也たくさんの「ありがとう」をいただけるように精一杯がんばります。 |
Contact お問い合せ先 | | TEL: 0800-603-0564 [Toll free] mobile phone ・ Also available from PHS Caller ID is not notified Please contact the "saw SUUMO (Sumo)" If it does not lead, If the real estate company TEL:0800-603-0564【通話料無料】携帯電話・PHSからもご利用いただけます 発信者番号は通知されません 「SUUMO(スーモ)を見た」と問い合わせください つながらない方、不動産会社の方は
|
Administrative expense 管理費 | | 12,540 yen / Month (consignment (commuting)) 1万2540円/月(委託(通勤)) |
Repair reserve 修繕積立金 | | 6020 yen / Month 6020円/月 |
Time residents 入居時期 | | Consultation 相談 |
Whereabouts floor 所在階 | | 10th floor 10階 |
Direction 向き | | Southeast 南東 |
Renovation リフォーム | | February 2014 interior renovation will be completed (kitchen ・ bathroom ・ toilet ・ wall ・ floor ・ all rooms) 2014年2月内装リフォーム完了予定(キッチン・浴室・トイレ・壁・床・全室) |
Overview and notices その他概要・特記事項 | | Contact: Sugiyama Teruya 担当者:杉山 輝也 |
Structure-storey 構造・階建て | | RC11 story RC11階建 |
Site of the right form 敷地の権利形態 | | Ownership 所有権 |
Use district 用途地域 | | Commerce 商業 |
Parking lot 駐車場 | | Sky Mu 空無 |
Company profile 会社概要 | | <Mediation> Minister of Land, Infrastructure and Transport (3) No. 006,185 (one company) National Housing Industry Association (Corporation) metropolitan area real estate Fair Trade Council member Asahi Housing Corporation Ikebukuro Yubinbango170-0013 Toshima-ku, Tokyo Ikebukuro 1-21-11 Oak Ikebukuro building 7th floor <仲介>国土交通大臣(3)第006185号(一社)全国住宅産業協会会員 (公社)首都圏不動産公正取引協議会加盟朝日住宅(株)池袋店〒170-0013 東京都豊島区東池袋1-21-11 オーク池袋ビル7階 |
Construction 施工 | | Shimizu Corporation 清水建設株式会社 |