New Homes » Tokai » Aichi Prefecture » Aichi-gun Togo-cho
 
| | Aichi Prefecture, Aichi-gun Togo-cho 愛知県愛知郡東郷町 |
| Toyodasen Meitetsu "Nisshin" walk 18 minutes 名鉄豊田線「日進」歩18分 |
| [Forest Notes Aichi-gun Togo-cho House of harmony months Okaminami] Seller Property ■ 8 House is born in a quiet land of a kind low-rise residential area! ■ Streets natural overflows! 【フォレストノート 愛知郡東郷町 和合ヶ丘南の家】 売主物件■一種低層住居地域の静かな土地に8邸が誕生!■自然があふれる街並み! |
| ○ feature construction housing performance with evaluation, Design house performance with evaluation, Measures to conserve energy, Long-term high-quality housing, Pre-ground survey, Seismic fit, Parking two Allowed, Energy-saving water heaters, System kitchen, Bathroom Dryer, All room storage, LDK15 tatami mats or more, Or more before road 6m, garden, Washbasin with shower, Face-to-face kitchen, Toilet 2 places, Bathroom 1 tsubo or more, 2-story, South balcony, Double-glazing, Warm water washing toilet seat, Nantei, The window in the bathroom, TV monitor interphone, High-function toilet, IH cooking heater, Dish washing dryer, Walk-in closet, Water filter, City gas ● Other inquiries about property is, Please from "document request button" of orange! ○特徴建設住宅性能評価付、設計住宅性能評価付、省エネルギー対策、長期優良住宅、地盤調査済、耐震適合、駐車2台可、省エネ給湯器、システムキッチン、浴室乾燥機、全居室収納、LDK15畳以上、前道6m以上、庭、シャワー付洗面台、対面式キッチン、トイレ2ヶ所、浴室1坪以上、2階建、南面バルコニー、複層ガラス、温水洗浄便座、南庭、浴室に窓、TVモニタ付インターホン、高機能トイレ、IHクッキングヒーター、食器洗乾燥機、ウォークインクロゼット、浄水器、都市ガス●そのほか物件に関するお問い合わせは、オレンジ色の「資料請求ボタン」からどうぞ! |
Seller comments 売主コメント | | Building A A棟 | Local guide map 現地案内図 | | Local guide map 現地案内図 | Features pickup 特徴ピックアップ | | Construction housing performance with evaluation / Design house performance with evaluation / Measures to conserve energy / Long-term high-quality housing / Pre-ground survey / Seismic fit / Parking two Allowed / Immediate Available / Energy-saving water heaters / System kitchen / Bathroom Dryer / All room storage / LDK15 tatami mats or more / Or more before road 6m / garden / Washbasin with shower / Face-to-face kitchen / Toilet 2 places / Bathroom 1 tsubo or more / 2-story / South balcony / Double-glazing / Warm water washing toilet seat / Nantei / The window in the bathroom / TV monitor interphone / High-function toilet / IH cooking heater / Dish washing dryer / Walk-in closet / Water filter / City gas / 2 family house 建設住宅性能評価付 /設計住宅性能評価付 /省エネルギー対策 /長期優良住宅 /地盤調査済 /耐震適合 /駐車2台可 /即入居可 /省エネ給湯器 /システムキッチン /浴室乾燥機 /全居室収納 /LDK15畳以上 /前道6m以上 /庭 /シャワー付洗面台 /対面式キッチン /トイレ2ヶ所 /浴室1坪以上 /2階建 /南面バルコニー /複層ガラス /温水洗浄便座 /南庭 /浴室に窓 /TVモニタ付インターホン /高機能トイレ /IHクッキングヒーター /食器洗乾燥機 /ウォークインクロゼット /浄水器 /都市ガス /2世帯住宅 | Event information イベント情報 | | Local tours (Please be sure to ask in advance) time / 10:00 ~ 17:00 As you can see slowly, We will arrange. Than "Request button", Please inform the tour desired time in advance. 現地見学会(事前に必ずお問い合わせください)時間/10:00 ~ 17:00ゆっくりご覧いただけますよう、手配いたします。「資料請求ボタン」より、事前に見学希望時間をお知らせください。 | Property name 物件名 | | Forest Notes Togo-cho House of harmony months Okaminami [Solar power standard! ] Seller Property フォレストノート 東郷町 和合ヶ丘南の家 【太陽光発電標準装備!】 売主物件 | Price 価格 | | 37.5 million yen 3750万円 | Floor plan 間取り | | 5LDK + 2S (storeroom) 5LDK+2S(納戸) | Units sold 販売戸数 | | 1 units 1戸 | Total units 総戸数 | | 8 units 8戸 | Land area 土地面積 | | 152.59 sq m (46.15 square meters) 152.59m2(46.15坪) | Building area 建物面積 | | 115.81 sq m (35.03 square meters) 115.81m2(35.03坪) | Driveway burden-road 私道負担・道路 | | South 6.1m 南側6.1m | Completion date 完成時期(築年月) | | Early September 2013 2013年9月上旬 | Address 住所 | | Aichi Prefecture, Aichi-gun Togo-cho Oaza Wago-shaped cattle Hazama 144 No. 1 愛知県愛知郡東郷町大字和合字牛廻間144番1 | Traffic 交通 | | Toyodasen Meitetsu "Nisshin" walk 18 minutes Meitetsu bus "Wago months hill" walk 5 minutes Togo-cho, tour bus "Harmony cattle Hazama" walk 2 minutes 名鉄豊田線「日進」歩18分 名鉄バス「和合ヶ丘」歩5分東郷町巡回バス「和合牛廻間」歩2分 | Related links 関連リンク | | [Related Sites of this company] 【この会社の関連サイト】 | Contact お問い合せ先 | | (Ltd.) Forest notebook TEL: 0800-602-4914 [Toll free] mobile phone ・ Also available from PHS Caller ID is not notified Please contact the "saw SUUMO (Sumo)" If it does not lead, If the real estate company (株)フォレストノートTEL:0800-602-4914【通話料無料】携帯電話・PHSからもご利用いただけます 発信者番号は通知されません 「SUUMO(スーモ)を見た」と問い合わせください つながらない方、不動産会社の方は
| Sale schedule 販売スケジュール | | Tax saving ・ Also questions about such expenses, Than "Request button", Please feel free to ask. 節税・諸費用などについてのご質問も、「資料請求ボタン」より、お気軽にお尋ねください。 | Building coverage, floor area ratio 建ぺい率・容積率 | | Building coverage: 50%, Volume ratio: 100% 建ぺい率:50%、容積率:100% | Time residents 入居時期 | | Immediate available 即入居可 | Land of the right form 土地の権利形態 | | Ownership 所有権 | Structure and method of construction 構造・工法 | | Wooden Galvalume steel Itabuki 2 story 木造ガルバリウム鋼板葺2階建 | Construction 施工 | | Co., Ltd. Wood Friends 株式会社ウッドフレンズ | Use district 用途地域 | | One low-rise 1種低層 | Land category 地目 | | Residential land 宅地 | Other limitations その他制限事項 | | ※ B ・ C ・ Building H: Yes driveway burden ※ Building C: Yes setting common land ※B・C・H棟:私道負担あり ※C棟:共有地設定あり | Overview and notices その他概要・特記事項 | | Building confirmation number: No. BVJ-E13-10-0317 建築確認番号:第BVJ-E13-10-0317号 | Company profile 会社概要 | | <Seller> Governor of Aichi Prefecture (1) No. 021706 (Ltd.) Forest notebook Yubinbango460-0008 Aichi Prefecture medium Nagoya Sakae 4-5-3 <売主>愛知県知事(1)第021706号(株)フォレストノート〒460-0008 愛知県名古屋市中区栄4-5-3 |
Two-family correspondence possible in A Togaikan Japanese-style room with 5LDK plan! Directing the switching of the scene by surrounding the entrance porch! A棟外観和室付5LDKプランで二世帯対応可!玄関ポーチを囲うことでシーンの切替を演出!  A Togaikan
A棟外観
Building A living open space for us also spread communication. A棟リビングオープンな空間がコミュニケーションも広げてくれます。  Building A Living
A棟リビング
By the Building A Master Bedroom Western and 2 door 1 Room, It allows you to multi-purpose use tailored to the lifestyle. A棟主寝室洋室と2ドア1ルームとすることで、ライフスタイルに合わせた多目的利用を可能にします。  Building A Master Bedroom
A棟主寝室
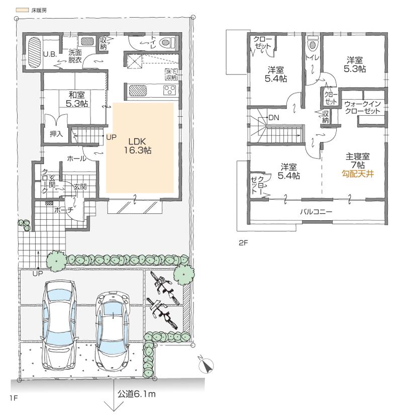
Floor plan間取り図  (A Building), Price 37.5 million yen, 5LDK+2S, Land area 152.59 sq m , Building area 115.81 sq m
(A棟)、価格3750万円、5LDK+2S、土地面積152.59m2、建物面積115.81m2
Kindergarten ・ Nursery幼稚園・保育園  658m to unity Akatsuki kindergarten
和合あかつき幼稚園まで658m
Primary school小学校  1444m to Togo Municipal Takamine Elementary School
東郷町立高嶺小学校まで1444m
Junior high school中学校  Togo Municipal Togo until junior high school 2088m
東郷町立東郷中学校まで2088m
Otherその他  Design performance evaluation nationwide 8th! Construction performance evaluation nationwide 7th! Performance evaluation certification Ranking (fiscal 2011)
設計性能評価 全国8位!建設性能評価 全国7位!性能評価認定ランキング(2011年度)
 Safe production of structural materials in our factory
自社工場で構造材を安心生産
 Wood Friends Group Business Information
ウッドフレンズグループ事業案内
 Peace of mind in the long-term high-quality housing ・ Favorable living
長期優良住宅で安心・有利な暮らし
Bathroom浴室  Rikushirukireiyu Reference materials
リクシルキレイユ 参考資料
Kitchenキッチン  San'webu AS system Kitchen Reference materials
サンウェーブASシステムキッチン 参考資料
Local guide map現地案内図  Wide-area view
広域図
 Detail view
詳細図
The entire compartment Figure全体区画図  Compartment figure
区画図
Location
|