New Homes » Tokai » Aichi Prefecture » Aichi-gun Togo-cho
 
| | Aichi Prefecture, Aichi-gun Togo-cho 愛知県愛知郡東郷町 |
| Toyodasen Meitetsu "Komenoki" walk 42 minutes 名鉄豊田線「米野木」歩42分 |
| ◆ ◇ Togo-cho Mauroy of newly built single-family total of 4 buildings! ◆ ◇ ◆◇東郷町諸輪の新築一戸建て全4棟!◆◇ |
| ◆ ◇ land 50 square meters or more ◆ ◇ super close ◆ ◇ system Kitchen ◆ ◇ LDK15 tatami mats or more ◆ ◇ ◆ ◇ Bathroom 1 tsubo or more ◆ ◇ multi-layer glass ◆ ◇ Intercom with TV monitor ◆ ◇ ◆◇土地50坪以上◆◇スーパー至近◆◇システムキッチン◆◇LDK15畳以上◆◇◆◇浴室1坪以上◆◇複層ガラス◆◇TVモニタ付インターホン◆◇ |
Features pickup 特徴ピックアップ | | Parking two Allowed / Land 50 square meters or more / Energy-saving water heaters / Super close / System kitchen / Bathroom Dryer / LDK15 tatami mats or more / Japanese-style room / Washbasin with shower / Toilet 2 places / Bathroom 1 tsubo or more / 2-story / South balcony / Double-glazing / Otobasu / Warm water washing toilet seat / Underfloor Storage / TV monitor interphone / Walk-in closet / City gas / roof balcony 駐車2台可 /土地50坪以上 /省エネ給湯器 /スーパーが近い /システムキッチン /浴室乾燥機 /LDK15畳以上 /和室 /シャワー付洗面台 /トイレ2ヶ所 /浴室1坪以上 /2階建 /南面バルコニー /複層ガラス /オートバス /温水洗浄便座 /床下収納 /TVモニタ付インターホン /ウォークインクロゼット /都市ガス /ルーフバルコニー | Event information イベント情報 | | Local tours (Please be sure to ask in advance) schedule / November 22 (Friday) ~ March 28 (Friday) local guide Board (Please be sure to ask in advance) schedule During the public time 10 18 pm on weekdays from pm ・ In local preview accepted regardless of Saturday and Sunday! Please feel free to contact us 現地見学会(事前に必ずお問い合わせください)日程/11月22日(金曜日) ~ 3月28日(金曜日)現地案内会(事前に必ずお問い合わせください)日程 公開中時間 10時から18時平日・土日問わず現地内覧受付中!お気軽にお問い合わせください | Price 価格 | | 26,900,000 yen 2690万円 | Floor plan 間取り | | 4LDK 4LDK | Units sold 販売戸数 | | 1 units 1戸 | Land area 土地面積 | | 165.92 sq m (registration) 165.92m2(登記) | Building area 建物面積 | | 92.75 sq m (registration) 92.75m2(登記) | Driveway burden-road 私道負担・道路 | | Nothing, West 2.3m width (contact the road width 9.5m) 無、西2.3m幅(接道幅9.5m) | Completion date 完成時期(築年月) | | February 2014 2014年2月 | Address 住所 | | Aichi Prefecture, Aichi-gun Togo-cho Oaza Mauroy shaped Kannon field 愛知県愛知郡東郷町大字諸輪字観音畑 | Traffic 交通 | | Toyodasen Meitetsu "Komenoki" walk 42 minutes Toyodasen Meitetsu "Nisshin" walk 41 minutes Toyodasen Meitetsu "Kurozasa" walk 51 minutes 名鉄豊田線「米野木」歩42分 名鉄豊田線「日進」歩41分 名鉄豊田線「黒笹」歩51分
| Related links 関連リンク | | [Related Sites of this company] 【この会社の関連サイト】 | Person in charge 担当者より | | Person in charge of real-estate and building Kawabata HiroshiAkira Age: 40 Daigyokai experience about 12 years! My home consultation other What thing? 担当者宅建川端 洋朗年齢:40代業界経験約12年!マイホームのご相談 他 どんな事?でも気軽に相談してください(^o^) | Contact お問い合せ先 | | TEL: 0800-603-8535 [Toll free] mobile phone ・ Also available from PHS Caller ID is not notified Please contact the "saw SUUMO (Sumo)" If it does not lead, If the real estate company TEL:0800-603-8535【通話料無料】携帯電話・PHSからもご利用いただけます 発信者番号は通知されません 「SUUMO(スーモ)を見た」と問い合わせください つながらない方、不動産会社の方は
| Building coverage, floor area ratio 建ぺい率・容積率 | | 60% ・ 200% 60%・200% | Time residents 入居時期 | | Consultation 相談 | Land of the right form 土地の権利形態 | | Ownership 所有権 | Structure and method of construction 構造・工法 | | Wooden 2-story 木造2階建 | Use district 用途地域 | | Two mid-high 2種中高 | Other limitations その他制限事項 | | Setback: upon 8.01 sq m セットバック:要8.01m2 | Overview and notices その他概要・特記事項 | | Contact: Kawabata HiroshiAkira, Facilities: Public Water Supply, This sewage, City gas, Building confirmation number: No. KS113-0110-04710, Parking: car space 担当者:川端 洋朗、設備:公営水道、本下水、都市ガス、建築確認番号:KS113-0110-04710号、駐車場:カースペース | Company profile 会社概要 | | <Mediation> Governor of Aichi Prefecture (2) the first 021,005 No. symbiosis Real Estate Co., Ltd. Yubinbango468-0048 Nagoya, Aichi Prefecture Tempaku-ku Nakatsubo-cho, 110 <仲介>愛知県知事(2)第021005号共生不動産(株)〒468-0048 愛知県名古屋市天白区中坪町110 |
Otherその他  We look forward to your visit
ご来店お待ちしております
Other localその他現地  December 10 shooting
12月10日撮影
 Local photos, including front road
前面道路含む現地写真
Same specifications photo (kitchen)同仕様写真(キッチン)  The series example of construction enamel finish range top ・ Semi jumbo sink ・ Slide stove cabinet ・ Underfloor storage
同シリーズ施工例ホーロー仕上レンジトップ・セミジャンボシンク・スライドコンロキャビネット・床下収納庫
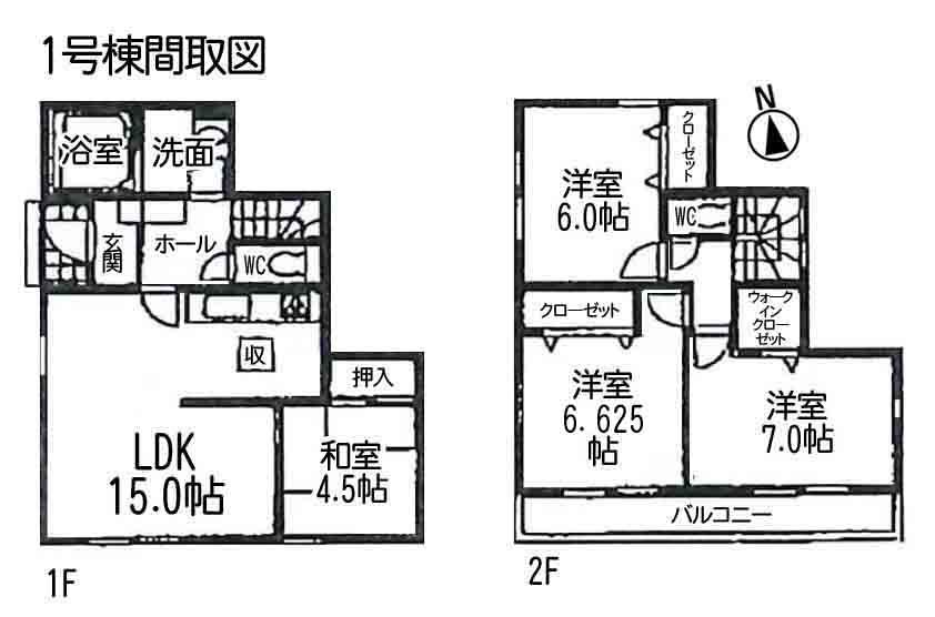
Floor plan間取り図  26,900,000 yen, 4LDK, Land area 165.92 sq m , Building area 92.75 sq m
2690万円、4LDK、土地面積165.92m2、建物面積92.75m2
Same specifications photos (living)同仕様写真(リビング)  The series construction cases spacious living
同シリーズ施工例広々リビング
Same specifications photo (bathroom)同仕様写真(浴室)  Unit bus with the same series construction example bathroom ventilation dryer
同シリーズ施工例浴室換気乾燥機付きユニットバス
Primary school小学校  Togo Municipal Mauroy to elementary school 920m
東郷町立諸輪小学校まで920m
Otherその他  The series construction cases basin
同シリーズ施工例洗面
Junior high school中学校  Togo Municipal Mauroy until junior high school 1070m
東郷町立諸輪中学校まで1070m
Otherその他  The series construction cases toilet
同シリーズ施工例トイレ
Shopping centreショッピングセンター  Eye ・ 1700m to the mall
アイ・モールまで1700m
 Other
その他
Convenience storeコンビニ  320m to Circle K Togo Mauroy shop
サークルK 東郷諸輪店まで320m
Otherその他  The series construction cases Japanese-style room
同シリーズ施工例和室
 The series construction cases Western-style
同シリーズ施工例洋室
 The series construction cases appearance
同シリーズ施工例外観
 We look forward to your visit (parking six Allowed)
ご来店お待ちしてます(駐車6台可)
 Store address is "Tempaku-ku Nakatsubo-cho, 110"
店舗住所は「天白区中坪町110」です
Location
|