New Homes » Tokai » Aichi Prefecture » Anjo


Anjo, Aichi Prefecture
JR Tokaido Line "Anjo" walk 19 minutes
[New Year Campaign decision! ] Only first-come a pair like that had you contract the Green Town Yokoyama of condominiums in 2014 January, Sales price as your conclusion of a contract award will be one million yen discount.
Event information
Local sales meetings (please visitors to direct local) schedule / January 4 (Saturday) ・ January 5 (Sunday) ・ January 11 (Saturday) ・ January 12 (Sunday) time / 10:00 ~ 17:00 New Year Campaign! We limited a pair like 26 years January contract can be purchased at a special price (selling price 100 yen off from the list price).
Property name
Green Town Yokoyama IV [New Year campaign, 1 million yen OFF than the display! ]
Price
39,870,000 yen ~ 42,280,000 yen
Floor plan
4LDK
Units sold
4 units
Total units
5 units
Land area
143.12 sq m ~ 160.02 sq m (measured)
Building area
100.59 sq m ~ 109.82 sq m
Driveway burden-road
Road width: 5m, Asphaltic pavement
Completion date
September 2013
Address
Anjo, Aichi Prefecture Yokoyama-cho, medium Oyamada
Traffic
JR Tokaido Line "Anjo" walk 19 minutes
JR Tokaido Line "Mikawaanjo" walk 23 minutes
Related links
[Related Sites of this company]
Contact
Uemura industry (stock) TEL: 0800-603-1770 [Toll free] mobile phone ・ Also available from PHS
Caller ID is not notified
Please contact the "saw SUUMO (Sumo)"
If it does not lead, If the real estate company
Most price range
42 million yen (2 units)
Building coverage, floor area ratio
Kenpei rate: 60%, Volume ratio: 200%
Time residents
Consultation
Land of the right form
Ownership
Structure and method of construction
Wooden 2-story (framing method)
Use district
One dwelling
Land category
Rice field
Overview and notices
Building confirmation number: H25-753 other
Company profile
<Seller> Governor of Aichi Prefecture (9) No. 010065 (Corporation) Aichi Prefecture Building Lots and Buildings Transaction Business Association Tokai Real Estate Fair Trade Council member Uemura Sangyo Co., Ltd. Yubinbango446-0058 Anjo, Aichi Prefecture Mikawaanjo Minamicho 1-11-10


Other
Other

Local appearance photo

Local appearance photo. appearance
appearance

Living

Living. No.1 Introspection
No.1 Introspection

Other introspection

Other introspection. No.1 Introspection
No.1 Introspection

Living

Living. No.3 Introspection
No.3 Introspection

Living. No.4 Introspection
No.4 Introspection

Kitchen

Kitchen. No.2 Introspection
No.2 Introspection

Kitchen. No.1 kitchen
No.1 kitchen

Bathroom

Bathroom. No.1 Wash ~ UB
No.1 Wash ~ UB

Other introspection

Other introspection. No.4 hole
No.4 hole

Receipt

Receipt. No.1 pantry
No.1 pantry

Receipt. No.2 WIC
No.2 WIC

Other

Other. Floor heating
Floor heating

Non-living room

Non-living room. No.1 MBR
No.1 MBR

Other

Other. External planting
External planting

Other. With regard to the price of each residence "compartment ・ Please have a look from dwelling unit "tab.
With regard to the price of each residence "compartment ・ Please have a look from dwelling unit "tab.

Floor plan
Floor plan

Floor plan
Floor plan

Floor plan
Floor plan

Floor plan
Floor plan

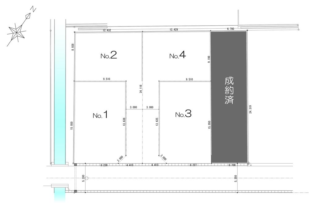
The entire compartment Figure

The entire compartment Figure. South across the road the ground, Site west side is a sunny location in the waterway.
South across the road the ground, Site west side is a sunny location in the waterway.



Location