New Homes » Tokai » Aichi Prefecture » Anjo
 
| | Anjo, Aichi Prefecture 愛知県安城市 |
| Nishiosen Meitetsu "Sakurai" walk 12 minutes 名鉄西尾線「桜井」歩12分 |
| Parking two Allowed, System kitchen, LDK15 tatami mats or moreese-style room, Toilet 2 places, Underfloor Storage, TV monitor interphone, City gas, Storeroom 駐車2台可、システムキッチン、LDK15畳以上、和室、トイレ2ヶ所、床下収納、TVモニタ付インターホン、都市ガス、納戸 |
| Parking two Allowed, System kitchen, LDK15 tatami mats or moreese-style room, Toilet 2 places, Underfloor Storage, TV monitor interphone, City gas, Storeroom 駐車2台可、システムキッチン、LDK15畳以上、和室、トイレ2ヶ所、床下収納、TVモニタ付インターホン、都市ガス、納戸 |
Features pickup 特徴ピックアップ | | Parking two Allowed / System kitchen / LDK15 tatami mats or more / Japanese-style room / Toilet 2 places / Underfloor Storage / TV monitor interphone / City gas / Storeroom 駐車2台可 /システムキッチン /LDK15畳以上 /和室 /トイレ2ヶ所 /床下収納 /TVモニタ付インターホン /都市ガス /納戸 | Price 価格 | | 31,900,000 yen ~ 32,900,000 yen 3190万円 ~ 3290万円 | Floor plan 間取り | | 4LDK ~ 4LDK + S (storeroom) 4LDK ~ 4LDK+S(納戸) | Units sold 販売戸数 | | 2 units 2戸 | Total units 総戸数 | | 2 units 2戸 | Land area 土地面積 | | 136.69 sq m ~ 163.24 sq m (41.34 tsubo ~ 49.37 tsubo) (Registration) 136.69m2 ~ 163.24m2(41.34坪 ~ 49.37坪)(登記) | Building area 建物面積 | | 98.01 sq m ~ 101.65 sq m (29.64 tsubo ~ 30.74 tsubo) (Registration) 98.01m2 ~ 101.65m2(29.64坪 ~ 30.74坪)(登記) | Completion date 完成時期(築年月) | | January 2014 will 2014年1月予定 | Address 住所 | | Anjo, Aichi Prefecture Higashi mansion 70-4 愛知県安城市東町屋敷70-4 | Traffic 交通 | | Nishiosen Meitetsu "Sakurai" walk 12 minutes Meitetsu Nishio Line "Horiuchi park" walk 19 minutes Nishiosen Meitetsu "Bihai sieve" walk 31 minutes 名鉄西尾線「桜井」歩12分 名鉄西尾線「堀内公園」歩19分 名鉄西尾線「碧海古井」歩31分
| Related links 関連リンク | | [Related Sites of this company] 【この会社の関連サイト】 | Person in charge 担当者より | | Person in charge of real-estate and building real estate consulting skills registrant Noda Kazuhaku Age: 30 Daigyokai Experience: 7 years shopping no more than once in a lifetime, Because it is important shopping that might decide later in life, It should often think. We will work hard to support as you are able to purchase a new home without anxiety to everyone. 担当者宅建不動産コンサルティング技能登録者野田 和伯年齢:30代業界経験:7年一生に何度もないお買い物、その後の人生を決めるかもしれない大事なお買い物ですから、考えることも多いはず。皆さんに不安なく新居をご購入していただけるよう一生懸命サポートさせていただきます。 | Contact お問い合せ先 | | TEL: 0800-603-7344 [Toll free] mobile phone ・ Also available from PHS Caller ID is not notified Please contact the "saw SUUMO (Sumo)" If it does not lead, If the real estate company TEL:0800-603-7344【通話料無料】携帯電話・PHSからもご利用いただけます 発信者番号は通知されません 「SUUMO(スーモ)を見た」と問い合わせください つながらない方、不動産会社の方は
| Building coverage, floor area ratio 建ぺい率・容積率 | | Kenpei rate: 60%, Volume ratio: 200% 建ペい率:60%、容積率:200% | Time residents 入居時期 | | 1 month after the contract 契約後1ヶ月 | Land of the right form 土地の権利形態 | | Ownership 所有権 | Use district 用途地域 | | One dwelling 1種住居 | Land category 地目 | | Residential land 宅地 | Overview and notices その他概要・特記事項 | | Contact: Noda Kazuhaku, Building confirmation number: H25SHC116687 担当者:野田 和伯、建築確認番号:H25SHC116687 | Company profile 会社概要 | | <Mediation> Governor of Aichi Prefecture (2) No. 020601 (Corporation) Aichi Prefecture Building Lots and Buildings Transaction Business Association Tokai Real Estate Fair Trade Council member (Ltd.) Property SHOP Nakajitsu Anjo store Yubinbango446-0045 Anjo, Aichi Prefecture Yokoyama-cho, under tube pond 8-1 <仲介>愛知県知事(2)第020601号(公社)愛知県宅地建物取引業協会会員 東海不動産公正取引協議会加盟(株)不動産SHOPナカジツ安城店〒446-0045 愛知県安城市横山町下管池8-1 |
 Rendering (appearance)
完成予想図(外観)
 Local photos, including front road
前面道路含む現地写真
Floor plan間取り図  (1 Building), Price 32,900,000 yen, 4LDK+S, Land area 136.69 sq m , Building area 101.65 sq m
(1号棟)、価格3290万円、4LDK+S、土地面積136.69m2、建物面積101.65m2
Primary school小学校  Until Sakurabayashi 650m
桜林まで650m
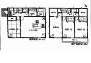
Floor plan間取り図  (Building 2), Price 31,900,000 yen, 4LDK, Land area 163.24 sq m , Building area 98.01 sq m
(2号棟)、価格3190万円、4LDK、土地面積163.24m2、建物面積98.01m2
Location
|