New Homes » Tokai » Aichi Prefecture » Chiryu
 
| | Aichi Prefecture Chiryu 愛知県知立市 |
| Nagoyahonsen Meitetsu "Chiryu" walk 12 minutes 名鉄名古屋本線「知立」歩12分 |
| South-facing all-electric new homes! All room storage & two-sided lighting! Storage rich and easy-to-use Matrix! 南向きのオール電化新築住宅!全居室収納&二面採光!収納豊富で使いやすい間取! |
| ◆ It chiryu walk about 6 minutes to elementary school, Ryuhoku walk about 17 minutes until junior high school ◆ It chiryu walk about 11 minutes to nursery school, Sakuragi walk about 7 minutes to kindergarten ◆ About a 12-minute walk from Meitetsu Chiryu Station, About walking to stop insurance center bus 5 minutes parking two Allowed, Facing south, System kitchen, Yang per good, LDK15 tatami mats or moreese-style room, Face-to-face kitchen, 3 face lighting, Toilet 2 places, 2-story, South balcony, Nantei, The window in the bathroom, Walk-in closet, All-electric, Storeroom, All rooms are two-sided lighting, Flat terrain ◆知立小学校まで徒歩約6分、竜北中学校まで徒歩約17分◆知立保育園まで徒歩約11分、桜木幼稚園まで徒歩約7分◆名鉄知立駅まで徒歩約12分、保険センターバス停まで徒歩約5分駐車2台可、南向き、システムキッチン、陽当り良好、LDK15畳以上、和室、対面式キッチン、3面採光、トイレ2ヶ所、2階建、南面バルコニー、南庭、浴室に窓、ウォークインクロゼット、オール電化、納戸、全室2面採光、平坦地 |
Features pickup 特徴ピックアップ | | Parking two Allowed / Facing south / System kitchen / Yang per good / LDK15 tatami mats or more / Japanese-style room / Face-to-face kitchen / 3 face lighting / Toilet 2 places / 2-story / South balcony / Nantei / The window in the bathroom / Walk-in closet / All-electric / Storeroom / All rooms are two-sided lighting / Flat terrain 駐車2台可 /南向き /システムキッチン /陽当り良好 /LDK15畳以上 /和室 /対面式キッチン /3面採光 /トイレ2ヶ所 /2階建 /南面バルコニー /南庭 /浴室に窓 /ウォークインクロゼット /オール電化 /納戸 /全室2面採光 /平坦地 | Price 価格 | | 29,800,000 yen 2980万円 | Floor plan 間取り | | 4LDK + S (storeroom) 4LDK+S(納戸) | Units sold 販売戸数 | | 1 units 1戸 | Total units 総戸数 | | 1 units 1戸 | Land area 土地面積 | | 135.48 sq m (registration) 135.48m2(登記) | Building area 建物面積 | | 103.68 sq m (registration) 103.68m2(登記) | Driveway burden-road 私道負担・道路 | | Nothing, South 4m width (contact the road width 4m) 無、南4m幅(接道幅4m) | Completion date 完成時期(築年月) | | March 2014 2014年3月 | Address 住所 | | Aichi Prefecture Chiryu Nishimachi Miyakoshi 愛知県知立市西町宮腰 | Traffic 交通 | | Nagoyahonsen Meitetsu "Chiryu" walk 12 minutes Mikawa Meitetsu "Mikawa Chiryu" walk 16 minutes Community bus "insurance center" walk 5 minutes 名鉄名古屋本線「知立」歩12分 名鉄三河線「三河知立」歩16分 コミュニティバス「保険センター」歩5分 | Related links 関連リンク | | [Related Sites of this company] 【この会社の関連サイト】 | Person in charge 担当者より | | Rep Maniwa 担当者馬庭 | Contact お問い合せ先 | | Toyota Smile Life Co., Ltd. Kariya distribution shop TEL: 0120-828464 [Toll free] Please contact the "saw SUUMO (Sumo)" トヨタすまいるライフ(株)刈谷流通店TEL:0120-828464【通話料無料】「SUUMO(スーモ)を見た」と問い合わせください | Building coverage, floor area ratio 建ぺい率・容積率 | | 60% ・ 200% 60%・200% | Time residents 入居時期 | | March 2014 schedule 2014年3月予定 | Land of the right form 土地の権利形態 | | Ownership 所有権 | Structure and method of construction 構造・工法 | | Wooden 2-story 木造2階建 | Use district 用途地域 | | Industry 工業 | Overview and notices その他概要・特記事項 | | Contact: Maniwa, Facilities: Public Water Supply, This sewage, All-electric, Building confirmation number: KS113-1310-02021, Parking: car space 担当者:馬庭、設備:公営水道、本下水、オール電化、建築確認番号:KS113-1310-02021、駐車場:カースペース | Company profile 会社概要 | | <Mediation> Governor of Aichi Prefecture (13) No. 003842 Toyota Smile Life Co., Ltd. Kariya distribution shop Yubinbango448-0003 Kariya, Aichi Hitotsugi cho 1-1-17 <仲介>愛知県知事(13)第003842号トヨタすまいるライフ(株)刈谷流通店〒448-0003 愛知県刈谷市一ツ木町1-1-17 |
Rendering (appearance)完成予想図(外観)  Rendering
完成予想図
Floor plan間取り図  29,800,000 yen, 4LDK + S (storeroom), Land area 135.48 sq m , Building area 103.68 sq m
2980万円、4LDK+S(納戸)、土地面積135.48m2、建物面積103.68m2
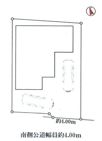
Compartment figure区画図  29,800,000 yen, 4LDK + S (storeroom), Land area 135.48 sq m , Building area 103.68 sq m
2980万円、4LDK+S(納戸)、土地面積135.48m2、建物面積103.68m2
Other localその他現地  Local (September 2013) Shooting ※ Before construction
現地(2013年9月)撮影※建築前
Location
|