|
|
Aichi Prefecture Gamagori
愛知県蒲郡市
|
|
JR Tokaido Line "Gamagori" walk 18 minutes
JR東海道本線「蒲郡」歩18分
|
|
[Building 2] JR Tokaido Line "Gamagori" within walking distance! Car space 2 cars! Flat 35 Available! Facing south!
【2号棟】JR東海道本線「蒲郡」徒歩圏内!カースペース2台分!フラット35利用可!南向き!
|
|
◆ We will guide you even on weekdays! Please feel free to contact! ◆
◆平日でもご案内いたします!お気軽にご連絡ください!◆
|
Features pickup 特徴ピックアップ | | Pre-ground survey / Parking two Allowed / Energy-saving water heaters / System kitchen / Bathroom Dryer / Yang per good / Siemens south road / Washbasin with shower / Face-to-face kitchen / Toilet 2 places / Bathroom 1 tsubo or more / 2-story / Double-glazing / Otobasu / Warm water washing toilet seat / Underfloor Storage / The window in the bathroom / TV monitor interphone / Water filter / Flat terrain 地盤調査済 /駐車2台可 /省エネ給湯器 /システムキッチン /浴室乾燥機 /陽当り良好 /南側道路面す /シャワー付洗面台 /対面式キッチン /トイレ2ヶ所 /浴室1坪以上 /2階建 /複層ガラス /オートバス /温水洗浄便座 /床下収納 /浴室に窓 /TVモニタ付インターホン /浄水器 /平坦地 |
Price 価格 | | 22,900,000 yen 2290万円 |
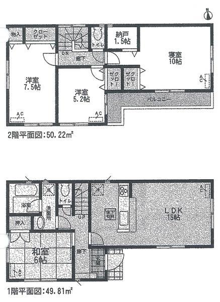
Floor plan 間取り | | 4LDK + S (storeroom) 4LDK+S(納戸) |
Units sold 販売戸数 | | 1 units 1戸 |
Land area 土地面積 | | 137.13 sq m (41.48 tsubo) (measured) 137.13m2(41.48坪)(実測) |
Building area 建物面積 | | 96.39 sq m (29.15 square meters) 96.39m2(29.15坪) |
Driveway burden-road 私道負担・道路 | | Nothing, South 4m width 無、南4m幅 |
Completion date 完成時期(築年月) | | December 2013 2013年12月 |
Address 住所 | | Aichi Prefecture Gamagori Sakaemachi 愛知県蒲郡市栄町 |
Traffic 交通 | | JR Tokaido Line "Gamagori" walk 18 minutes JR東海道本線「蒲郡」歩18分
|
Related links 関連リンク | | [Related Sites of this company] 【この会社の関連サイト】 |
Contact お問い合せ先 | | TEL: 0800-603-9776 [Toll free] mobile phone ・ Also available from PHS Caller ID is not notified Please contact the "saw SUUMO (Sumo)" If it does not lead, If the real estate company TEL:0800-603-9776【通話料無料】携帯電話・PHSからもご利用いただけます 発信者番号は通知されません 「SUUMO(スーモ)を見た」と問い合わせください つながらない方、不動産会社の方は
|
Building coverage, floor area ratio 建ぺい率・容積率 | | 60% ・ 160% 60%・160% |
Time residents 入居時期 | | Consultation 相談 |
Land of the right form 土地の権利形態 | | Ownership 所有権 |
Structure and method of construction 構造・工法 | | Wooden 2-story (framing method) 木造2階建(軸組工法) |
Use district 用途地域 | | Two dwellings 2種住居 |
Overview and notices その他概要・特記事項 | | Facilities: Public Water Supply, This sewage, Individual LPG, Building confirmation number: No. H25SHC111624, Parking: car space 設備:公営水道、本下水、個別LPG、建築確認番号:第H25SHC111624号、駐車場:カースペース |
Company profile 会社概要 | | <Mediation> Governor of Aichi Prefecture (2) No. 020603 Century 21 (stock) Rial ・ Create Yubinbango441-8048 Toyohashi, Aichi Prefecture Nishikoike-cho, 52 <仲介>愛知県知事(2)第020603号センチュリー21(株)リアル・クリエイト〒441-8048 愛知県豊橋市西小池町52 |