|
|
Aichi Prefecture Handa
愛知県半田市
|
|
JR taketoyo line "Kamezaki" walk 20 minutes
JR武豊線「亀崎」歩20分
|
|
All the living room facing south!
全居室南向き!
|
|
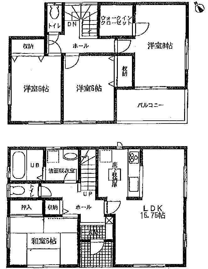
◇ You can use the living space more widely effective in the under-floor storage and all the living room with storage. There ◇ LDK 15 quires more, Also spread communication with your family in the face-to-face kitchen overlooking the living room and dining. ◇ such as storage space compartment in the entrance hall is rich ◇ is an independent Japanese-style room of 6 quires that can cope with sudden visitor
◇床下収納や全居室収納付きで居住空間をより広く有効に使えます。◇LDK 15帖以上あり、リビングやダイニングを見渡せる対面キッチンでご家族とのコミュニケーションも広がります。◇玄関ホールに物入れなど収納スペースが豊富です◇急な来客にも対応できる6帖の独立した和室です
|
Features pickup 特徴ピックアップ | | Parking two Allowed / System kitchen / Bathroom Dryer / All room storage / LDK15 tatami mats or more / Japanese-style room / Washbasin with shower / Face-to-face kitchen / Toilet 2 places / Bathroom 1 tsubo or more / 2-story / Double-glazing / Otobasu / TV with bathroom / Underfloor Storage / The window in the bathroom / TV monitor interphone / Walk-in closet / All room 6 tatami mats or more 駐車2台可 /システムキッチン /浴室乾燥機 /全居室収納 /LDK15畳以上 /和室 /シャワー付洗面台 /対面式キッチン /トイレ2ヶ所 /浴室1坪以上 /2階建 /複層ガラス /オートバス /TV付浴室 /床下収納 /浴室に窓 /TVモニタ付インターホン /ウォークインクロゼット /全居室6畳以上 |
Event information イベント情報 | | (Please be sure to ask in advance) will from time to time will guide (事前に必ずお問い合わせください)随時ご案内いたします |
Price 価格 | | 21,800,000 yen 2180万円 |
Floor plan 間取り | | 4LDK 4LDK |
Units sold 販売戸数 | | 1 units 1戸 |
Total units 総戸数 | | 2 units 2戸 |
Land area 土地面積 | | 194.9 sq m (58.95 tsubo) (measured) 194.9m2(58.95坪)(実測) |
Building area 建物面積 | | 103.52 sq m (31.31 tsubo) (measured) 103.52m2(31.31坪)(実測) |
Driveway burden-road 私道負担・道路 | | Nothing, West 5.1m width 無、西5.1m幅 |
Completion date 完成時期(築年月) | | August 2013 2013年8月 |
Address 住所 | | Aichi Prefecture Handa Mihara-cho 1 愛知県半田市美原町1 |
Traffic 交通 | | JR taketoyo line "Kamezaki" walk 20 minutes JR武豊線「亀崎」歩20分
|
Related links 関連リンク | | [Related Sites of this company] 【この会社の関連サイト】 |
Contact お問い合せ先 | | K's Home (Ltd.) TEL: 0800-805-3519 [Toll free] mobile phone ・ Also available from PHS Caller ID is not notified Please contact the "saw SUUMO (Sumo)" If it does not lead, If the real estate company K'sホーム(株)TEL:0800-805-3519【通話料無料】携帯電話・PHSからもご利用いただけます 発信者番号は通知されません 「SUUMO(スーモ)を見た」と問い合わせください つながらない方、不動産会社の方は
|
Building coverage, floor area ratio 建ぺい率・容積率 | | 60% ・ Hundred percent 60%・100% |
Time residents 入居時期 | | Consultation 相談 |
Land of the right form 土地の権利形態 | | Ownership 所有権 |
Structure and method of construction 構造・工法 | | Wooden 2-story 木造2階建 |
Use district 用途地域 | | One low-rise 1種低層 |
Overview and notices その他概要・特記事項 | | Facilities: Public Water Supply, This sewage, City gas, Building confirmation number: ks113-1310-00588, Parking: car space 設備:公営水道、本下水、都市ガス、建築確認番号:ks113-1310-00588、駐車場:カースペース |
Company profile 会社概要 | | <Mediation> Governor of Aichi Prefecture (2) No. 020840 K's Home Co., Ltd. Yubinbango453-0861 Aichi Prefecture, Nakamura-ku, Nagoya, Iwatsukahontori 3-31 <仲介>愛知県知事(2)第020840号K'sホーム(株)〒453-0861 愛知県名古屋市中村区岩塚本通3-31 |