|
|
Aichi Prefecture Handa
愛知県半田市
|
|
JR taketoyo line "Kamezaki" walk 20 minutes
JR武豊線「亀崎」歩20分
|
|
Of Japanese-style Tsuzukiai specification of an LD, Convenient 2way style that can be accessed in the entrance hall
LDとの続き間仕様の和室は、玄関ホールにもアクセスできる便利な2wayスタイル
|
|
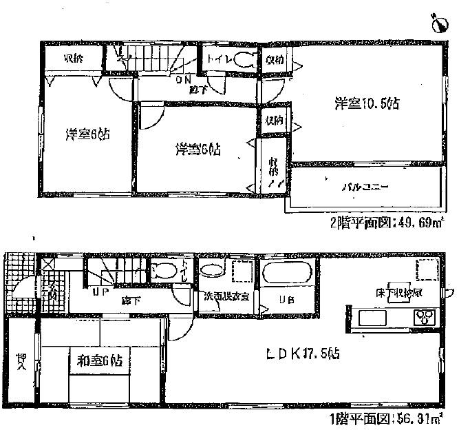
◇ parking space you can use the living space more widely effective in two ◇ underfloor storage and all the living room with storage parallel. ◇ Japanese-style room of Tsuzukiai specification of an LD is, Convenient 2way style that can be accessed in the entrance hall. When you open the door of the living room side of the Japanese-style room becomes a living and Tsuzukiai, You can secure a spacious space. It works best as a drawing room to steep visitor. There ◇ LDK 15 quires more, Also spread communication with your family in the face-to-face kitchen overlooking the living room and dining.
◇駐車スペースは並列2台◇床下収納や全居室収納付きで居住空間をより広く有効に使えます。◇LDとの続き間仕様の和室は、玄関ホールにもアクセスできる便利な2wayスタイル。リビング側の和室の戸を開放するとリビングと続き間となり、広々とした空間を確保できます。急な来客にも客間として最適に機能します。◇LDK 15帖以上あり、リビングやダイニングを見渡せる対面キッチンでご家族とのコミュニケーションも広がります。
|
Features pickup 特徴ピックアップ | | System kitchen / All room storage / LDK15 tatami mats or more / Japanese-style room / Washbasin with shower / Face-to-face kitchen / Toilet 2 places / Bathroom 1 tsubo or more / 2-story / Double-glazing / Zenshitsuminami direction / Otobasu / Warm water washing toilet seat / Underfloor Storage / The window in the bathroom / TV monitor interphone / All room 6 tatami mats or more / City gas システムキッチン /全居室収納 /LDK15畳以上 /和室 /シャワー付洗面台 /対面式キッチン /トイレ2ヶ所 /浴室1坪以上 /2階建 /複層ガラス /全室南向き /オートバス /温水洗浄便座 /床下収納 /浴室に窓 /TVモニタ付インターホン /全居室6畳以上 /都市ガス |
Event information イベント情報 | | (Please be sure to ask in advance) from time to time we will guide therefore do not hesitate to contact us. (事前に必ずお問い合わせください)随時ご案内致しますのでお気軽にお問い合わせ下さい。 |
Price 価格 | | 23.8 million yen 2380万円 |
Floor plan 間取り | | 4LDK 4LDK |
Units sold 販売戸数 | | 1 units 1戸 |
Total units 総戸数 | | 2 units 2戸 |
Land area 土地面積 | | 160.16 sq m (48.44 tsubo) (measured) 160.16m2(48.44坪)(実測) |
Building area 建物面積 | | 106 sq m (32.06 tsubo) (measured) 106m2(32.06坪)(実測) |
Driveway burden-road 私道負担・道路 | | Nothing, Northwest 5.1m width (contact the road width 8m) 無、北西5.1m幅(接道幅8m) |
Completion date 完成時期(築年月) | | July 2013 2013年7月 |
Address 住所 | | Aichi Prefecture Handa Mihara-cho 1 愛知県半田市美原町1 |
Traffic 交通 | | JR taketoyo line "Kamezaki" walk 20 minutes JR武豊線「亀崎」歩20分
|
Related links 関連リンク | | [Related Sites of this company] 【この会社の関連サイト】 |
Contact お問い合せ先 | | K's Home (Ltd.) TEL: 0800-805-3519 [Toll free] mobile phone ・ Also available from PHS Caller ID is not notified Please contact the "saw SUUMO (Sumo)" If it does not lead, If the real estate company K'sホーム(株)TEL:0800-805-3519【通話料無料】携帯電話・PHSからもご利用いただけます 発信者番号は通知されません 「SUUMO(スーモ)を見た」と問い合わせください つながらない方、不動産会社の方は
|
Building coverage, floor area ratio 建ぺい率・容積率 | | 60% ・ Hundred percent 60%・100% |
Time residents 入居時期 | | Consultation 相談 |
Land of the right form 土地の権利形態 | | Ownership 所有権 |
Structure and method of construction 構造・工法 | | Wooden 2-story 木造2階建 |
Use district 用途地域 | | One low-rise 1種低層 |
Overview and notices その他概要・特記事項 | | Facilities: Public Water Supply, This sewage, City gas, Building confirmation number: ks113-1310-00687, Parking: car space 設備:公営水道、本下水、都市ガス、建築確認番号:ks113-1310-00687、駐車場:カースペース |
Company profile 会社概要 | | <Mediation> Governor of Aichi Prefecture (2) No. 020840 K's Home Co., Ltd. Yubinbango453-0861 Aichi Prefecture, Nakamura-ku, Nagoya, Iwatsukahontori 3-31 <仲介>愛知県知事(2)第020840号K'sホーム(株)〒453-0861 愛知県名古屋市中村区岩塚本通3-31 |