|
|
Aichi Prefecture Hekinan
愛知県碧南市
|
|
Round and round bus "ARACO nursery before" walk 4 minutes
くるくるバス「荒子保育園前」歩4分
|
|
Parking two Allowed, Bathroom Dryer, LDK15 tatami mats or moreese-style room, Washbasin with shower, Toilet 2 places, 2-story, South balcony
駐車2台可、浴室乾燥機、LDK15畳以上、和室、シャワー付洗面台、トイレ2ヶ所、2階建、南面バルコニー
|
|
◆ Meitetsu Mikawa "Shinkawa-cho" station Walk 23 minutes ◆ Round and round bus "ARACO nursery before" stop 3-minute walk ◆ Car space two or more ※ Washizuka elementary school (about 1100m, Walk about 13 minutes) east junior high school (about 1000m, Walk about 13 minutes) ( ※ TateHajime Law Article 22 designated area
◆名鉄三河線『新川町』駅 徒歩23分 ◆くるくるバス『荒子保育園前』停 徒歩3分 ◆カースペース2台以上※鷲塚小学校(約1100m、徒歩約13分)東中学校(約1000m、徒歩約13分)(※建基法第22条指定区域
|
Features pickup 特徴ピックアップ | | Parking two Allowed / Bathroom Dryer / LDK15 tatami mats or more / Japanese-style room / Washbasin with shower / Toilet 2 places / 2-story / South balcony 駐車2台可 /浴室乾燥機 /LDK15畳以上 /和室 /シャワー付洗面台 /トイレ2ヶ所 /2階建 /南面バルコニー |
Price 価格 | | 24,900,000 yen 2490万円 |
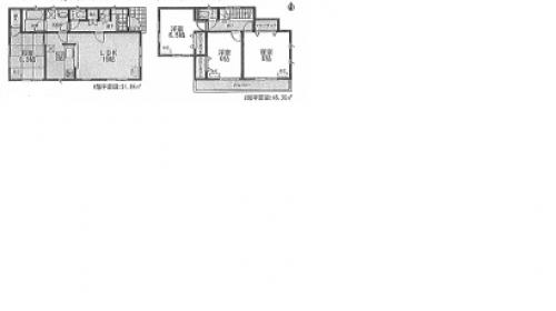
Floor plan 間取り | | 4LDK 4LDK |
Units sold 販売戸数 | | 1 units 1戸 |
Total units 総戸数 | | 2 units 2戸 |
Land area 土地面積 | | 162.93 sq m 162.93m2 |
Building area 建物面積 | | 97.2 sq m 97.2m2 |
Driveway burden-road 私道負担・道路 | | Road width: 8.84m 道路幅:8.84m |
Completion date 完成時期(築年月) | | 2013 Late July 2013年7月下旬 |
Address 住所 | | Aichi Prefecture Hekinan ARACO cho 1-13 No. 5, 13 No. 6 愛知県碧南市荒子町1-13番5、13番6 |
Traffic 交通 | | Round and round bus "ARACO nursery before" walk 4 minutes Meitetsu Mikawa "Shinkawa-cho" walk 31 minutes Mikawa Meitetsu "Hekinan center" walk 32 minutes くるくるバス「荒子保育園前」歩4分名鉄三河線「新川町」歩31分 名鉄三河線「碧南中央」歩32分
|
Related links 関連リンク | | [Related Sites of this company] 【この会社の関連サイト】 |
Person in charge 担当者より | | Rep Kodaira Masashi Age: 20 Daigyokai Experience: 1 year 担当者小平 将士年齢:20代業界経験:1年 |
Contact お問い合せ先 | | TEL: 0800-603-7329 [Toll free] mobile phone ・ Also available from PHS Caller ID is not notified Please contact the "saw SUUMO (Sumo)" If it does not lead, If the real estate company TEL:0800-603-7329【通話料無料】携帯電話・PHSからもご利用いただけます 発信者番号は通知されません 「SUUMO(スーモ)を見た」と問い合わせください つながらない方、不動産会社の方は
|
Building coverage, floor area ratio 建ぺい率・容積率 | | Kenpei rate: 60% ・ Hundred percent 建ペい率:60%・100% |
Time residents 入居時期 | | Consultation 相談 |
Land of the right form 土地の権利形態 | | Ownership 所有権 |
Structure and method of construction 構造・工法 | | Conventional wooden siding Zhang slate 葺又 is, Asphalt shingle 葺 galvanized steel sheet 在来木造サイディング張スレート葺又は、アスファルトシングル葺ガルバリウム鋼板 |
Use district 用途地域 | | One low-rise 1種低層 |
Land category 地目 | | Rice field 田 |
Other limitations その他制限事項 | | And Building Law Article 22 designated area 建築法22条指定区域 |
Overview and notices その他概要・特記事項 | | Contact: Deng Masashi, Building confirmation number: first KS113-0110-01683, No. 4 担当者:小平 将士、建築確認番号:第KS113-0110-01683、4号 |
Company profile 会社概要 | | <Marketing alliance (agency)> Governor of Aichi Prefecture (2) No. 020601 (Corporation) Aichi Prefecture Building Lots and Buildings Transaction Business Association Tokai Real Estate Fair Trade Council member (Ltd.) Property SHOP Nakajitsu Nishio shop Yubinbango445-0894 Nishio, Aichi above-cho AwaHara 11-2 <販売提携(代理)>愛知県知事(2)第020601号(公社)愛知県宅地建物取引業協会会員 東海不動産公正取引協議会加盟(株)不動産SHOPナカジツ西尾店〒445-0894 愛知県西尾市上町字泡原11-2 |