New Homes » Tokai » Aichi Prefecture » Ichinomiya
 
| | Aichi Prefecture Ichinomiya 愛知県一宮市 |
| Nagoyahonsen Meitetsu "Iwato" walk 10 minutes 名鉄名古屋本線「石刀」歩10分 |
| [Forest Notes Ichinomiya Imaise town house Part6] Seller Property ■ Nagoyahonsen Meitetsu "Iwato" station 8 min. Walk! ■ Spacious grounds of more than 50 square meters! Three parking possible! 【フォレストノート 一宮市 今伊勢町の家 Part6】 売主物件■名鉄名古屋本線「石刀」駅 徒歩8分!■50坪以上の広々敷地!3台駐車可能! |
| ○ feature construction housing performance with evaluation, Design house performance with evaluation, Measures to conserve energy, Long-term high-quality housing, Solar power system, Pre-ground survey, Seismic fit, Parking three or more possible, Land 50 square meters or more, Energy-saving water heaters, Facing south, System kitchen, Bathroom Dryer, All room storage, Siemens south road, LDK15 tatami mats or moreese-style room, garden, Washbasin with shower, Face-to-face kitchen, Toilet 2 places, Bathroom 1 tsubo or more, 2-story, South balcony, Double-glazing, Warm water washing toilet seat, The window in the bathroom, TV monitor interphone, High-function toilet, IH cooking heater, Dish washing dryer, All room 6 tatami mats or more, Water filter, City gas, 2 family house, Floor heating ● Other inquiries about property is, Please from "document request button" of orange! ○特徴建設住宅性能評価付、設計住宅性能評価付、省エネルギー対策、長期優良住宅、太陽光発電システム、地盤調査済、耐震適合、駐車3台以上可、土地50坪以上、省エネ給湯器、南向き、システムキッチン、浴室乾燥機、全居室収納、南側道路面す、LDK15畳以上、和室、庭、シャワー付洗面台、対面式キッチン、トイレ2ヶ所、浴室1坪以上、2階建、南面バルコニー、複層ガラス、温水洗浄便座、浴室に窓、TVモニタ付インターホン、高機能トイレ、IHクッキングヒーター、食器洗乾燥機、全居室6畳以上、浄水器、都市ガス、2世帯住宅、床暖房●そのほか物件に関するお問い合わせは、オレンジ色の「資料請求ボタン」からどうぞ! |
Seller comments 売主コメント | | Building A A棟 | Local guide map 現地案内図 | | Local guide map 現地案内図 | Features pickup 特徴ピックアップ | | Construction housing performance with evaluation / Design house performance with evaluation / Measures to conserve energy / Long-term high-quality housing / Solar power system / Pre-ground survey / Seismic fit / Parking three or more possible / Immediate Available / Land 50 square meters or more / Energy-saving water heaters / Facing south / System kitchen / Bathroom Dryer / All room storage / Siemens south road / LDK15 tatami mats or more / Japanese-style room / garden / Washbasin with shower / Face-to-face kitchen / Toilet 2 places / Bathroom 1 tsubo or more / 2-story / South balcony / Double-glazing / Warm water washing toilet seat / The window in the bathroom / TV monitor interphone / High-function toilet / IH cooking heater / Dish washing dryer / All room 6 tatami mats or more / Water filter / City gas / 2 family house / Floor heating 建設住宅性能評価付 /設計住宅性能評価付 /省エネルギー対策 /長期優良住宅 /太陽光発電システム /地盤調査済 /耐震適合 /駐車3台以上可 /即入居可 /土地50坪以上 /省エネ給湯器 /南向き /システムキッチン /浴室乾燥機 /全居室収納 /南側道路面す /LDK15畳以上 /和室 /庭 /シャワー付洗面台 /対面式キッチン /トイレ2ヶ所 /浴室1坪以上 /2階建 /南面バルコニー /複層ガラス /温水洗浄便座 /浴室に窓 /TVモニタ付インターホン /高機能トイレ /IHクッキングヒーター /食器洗乾燥機 /全居室6畳以上 /浄水器 /都市ガス /2世帯住宅 /床暖房 | Event information イベント情報 | | Local tours (Please be sure to ask in advance) time / 10:00 ~ 17:00 As you can see slowly, We will arrange. Than "Request button", Please inform the tour desired time in advance. 現地見学会(事前に必ずお問い合わせください)時間/10:00 ~ 17:00ゆっくりご覧いただけますよう、手配いたします。「資料請求ボタン」より、事前に見学希望時間をお知らせください。 | Property name 物件名 | | Forest Notes Ichinomiya Imaise town house Part6 [Solar power standard! ] Seller Property フォレストノート 一宮市 今伊勢町の家 Part6 【太陽光発電標準装備!】 売主物件 | Price 価格 | | 38,500,000 yen ・ 38,800,000 yen 3850万円・3880万円 | Floor plan 間取り | | 5LDK + S (storeroom) ・ 5LDK + 2S (storeroom) 5LDK+S(納戸)・5LDK+2S(納戸) | Units sold 販売戸数 | | 2 units 2戸 | Total units 総戸数 | | 2 units 2戸 | Land area 土地面積 | | 185.83 sq m ・ 185.98 sq m (56.21 tsubo ・ 56.25 square meters) 185.83m2・185.98m2(56.21坪・56.25坪) | Building area 建物面積 | | 120.09 sq m ・ 122.57 sq m (36.32 tsubo ・ 37.07 square meters) 120.09m2・122.57m2(36.32坪・37.07坪) | Driveway burden-road 私道負担・道路 | | South 4.6m 南側4.6m | Completion date 完成時期(築年月) | | 2013 mid-October 2013年10月中旬 | Address 住所 | | Aichi Prefecture Ichinomiya Imaisechoumayose Jikita Tsukamoto 10-1 愛知県一宮市今伊勢町馬寄字北塚本10-1 | Traffic 交通 | | Nagoyahonsen Meitetsu "Iwato" walk 10 minutes Nagoyahonsen Meitetsu "Imaise" walk 20 minutes Nagoyahonsen Meitetsu "new Kiso" walk 26 minutes 名鉄名古屋本線「石刀」歩10分 名鉄名古屋本線「今伊勢」歩20分 名鉄名古屋本線「新木曽川」歩26分
| Related links 関連リンク | | [Related Sites of this company] 【この会社の関連サイト】 | Contact お問い合せ先 | | (Ltd.) Wood Friends TEL: 0800-603-1631 [Toll free] mobile phone ・ Also available from PHS Caller ID is not notified Please contact the "saw SUUMO (Sumo)" If it does not lead, If the real estate company (株)ウッドフレンズTEL:0800-603-1631【通話料無料】携帯電話・PHSからもご利用いただけます 発信者番号は通知されません 「SUUMO(スーモ)を見た」と問い合わせください つながらない方、不動産会社の方は
| Sale schedule 販売スケジュール | | Tax saving ・ Also questions about such expenses, Than "Request button", Please feel free to ask. 節税・諸費用などについてのご質問も、「資料請求ボタン」より、お気軽にお尋ねください。 | Most price range 最多価格帯 | | 38 million yen (2 units) 3800万円台(2戸) | Building coverage, floor area ratio 建ぺい率・容積率 | | Building coverage: 60%, Volume ratio: 184% 建ぺい率:60%、容積率:184% | Time residents 入居時期 | | Immediate available 即入居可 | Land of the right form 土地の権利形態 | | Ownership 所有権 | Structure and method of construction 構造・工法 | | Wooden Galvalume steel Itabuki 2 story 木造ガルバリウム鋼板葺2階建 | Construction 施工 | | Co., Ltd. Wood Friends 株式会社ウッドフレンズ | Use district 用途地域 | | One dwelling 1種住居 | Land category 地目 | | Residential land 宅地 | Overview and notices その他概要・特記事項 | | Building confirmation number: No. BVJ-E13-10-0622 建築確認番号:第BVJ-E13-10-0622号 | Company profile 会社概要 | | <Seller> Minister of Land, Infrastructure and Transport (3) No. 006013 (Corporation) Aichi Prefecture Building Lots and Buildings Transaction Business Association Tokai Real Estate Fair Trade Council member (Ltd.) Wood Friends Yubinbango460-0008 Sakae, Naka-ku, Nagoya, Aichi Prefecture 4-5-3 <売主>国土交通大臣(3)第006013号(公社)愛知県宅地建物取引業協会会員 東海不動産公正取引協議会加盟(株)ウッドフレンズ〒460-0008 愛知県名古屋市中区栄4-5-3 |
Local appearance photo現地外観写真  Row appearance photo ※ 2013 / 11 / 5 shooting
連棟外観写真 ※2013/11/5撮影
 A Togaikan photo
A棟外観写真
Livingリビング  Building A Living There are Kazaritana and living stairs, And to enrich the family of communication.
A棟リビング 飾棚やリビング階段があり、家族のコミュニケーションを豊かにします。
Non-living roomリビング以外の居室  Building A Master Bedroom Walk-in closet, It can be stored, such as clothes and bags, Lets you keep the room.
A棟主寝室 ウォークインクローゼットは、洋服や鞄など収納でき、居室をきれいに保ちます。
 A Western-style building Uses as a large space of 13.8 quires time to live the beginning, It is possible to partition when the children are grown.
A棟洋室 住み始めの頃は13.8帖の大きな空間として使い、お子様が成長した時には間仕切りすることが可能です。
Local appearance photo現地外観写真  B Togaikan photo
B棟外観写真
Entrance玄関  Building B entrance counter, Not only there is a storage capacity, You can greet the customer and the decorations of the season.
B棟玄関カウンターは、収納力があるだけでなく、季節の飾り付けをしてお客様を迎えることができます。
Livingリビング  Connection with lavatory is Building B living face-to-face kitchen, It was also considered to housework flow line.
B棟リビング対面キッチンは洗面室ともつながり、家事動線にも配慮しました。
Non-living roomリビング以外の居室  Building B Master Bedroom gradient ceiling of the bedroom, To produce a spacious open space.
B棟主寝室勾配天井の寝室は、広々とした開放的な空間を演出します。
The entire compartment Figure全体区画図  Compartment figure
区画図
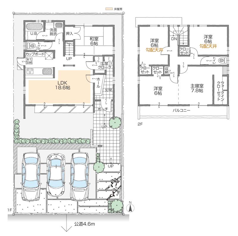
Floor plan間取り図  (A Building), Price 38,500,000 yen, 5LDK+2S, Land area 185.83 sq m , Building area 120.09 sq m
(A棟)、価格3850万円、5LDK+2S、土地面積185.83m2、建物面積120.09m2
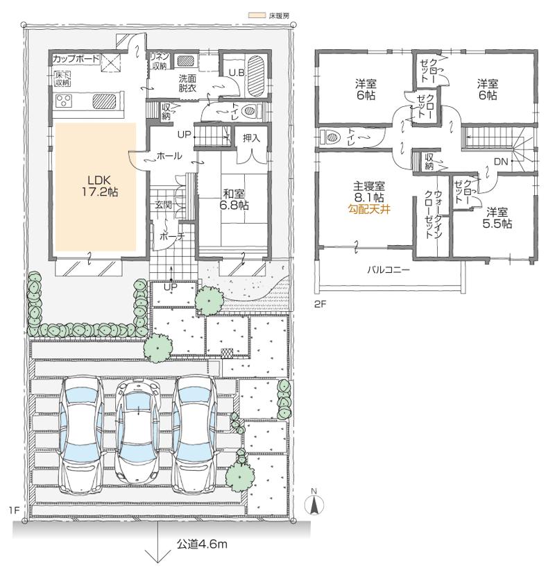
 (B Building), Price 38,800,000 yen, 5LDK+S, Land area 185.98 sq m , Building area 122.57 sq m
(B棟)、価格3880万円、5LDK+S、土地面積185.98m2、建物面積122.57m2
Local guide map現地案内図  Detail view
詳細図
Otherその他  Performance evaluation certification Ranking (fiscal 2011) design performance evaluation nationwide 8th! Construction performance evaluation nationwide 7th!
性能評価認定ランキング(2011年度)設計性能評価 全国8位!建設性能評価 全国7位!
 Wood Friends Group Business Information
ウッドフレンズグループ事業案内
 Peace of mind in the long-term high-quality housing ・ Favorable living
長期優良住宅で安心・有利な暮らし
 Safe production of structural materials in our factory
自社工場で構造材を安心生産
Local guide map現地案内図  Wide-area view
広域図
Location
|