New Homes » Tokai » Aichi Prefecture » Ichinomiya
 
| | Aichi Prefecture Ichinomiya 愛知県一宮市 |
| Meitetsu bus "Umamizuka" walk 4 minutes 名鉄バス「馬見塚」歩4分 |
| [Forest Notes Ichinomiya Green house] Seller Property ■ Meitetsu bus "Umamizuka" stop / A 4-minute walk 【フォレストノート 一宮市 緑の家】 売主物件■名鉄バス「馬見塚」停/徒歩4分 |
| ◎ feature construction housing performance with evaluation, Design house performance with evaluation, Measures to conserve energy, Long-term high-quality housing, Solar power system, Pre-ground survey, Seismic fit, Parking two Allowed, Energy-saving water heaters, Facing south, System kitchen, Bathroom Dryer, All room storage, LDK15 tatami mats or more, Or more before road 6m, Washbasin with shower, Face-to-face kitchen, Toilet 2 places, Bathroom 1 tsubo or more, 2-story, South balcony, Double-glazing, Warm water washing toilet seat, Underfloor Storage, The window in the bathroom, Atrium, TV monitor interphone, High-function toilet, IH cooking heater, Dish washing dryer, Walk-in closet, Water filter, City gas, Floor heating ● Other inquiries about property is, Please from "document request button" of orange! ◎特徴建設住宅性能評価付、設計住宅性能評価付、省エネルギー対策、長期優良住宅、太陽光発電システム、地盤調査済、耐震適合、駐車2台可、省エネ給湯器、南向き、システムキッチン、浴室乾燥機、全居室収納、LDK15畳以上、前道6m以上、シャワー付洗面台、対面式キッチン、トイレ2ヶ所、浴室1坪以上、2階建、南面バルコニー、複層ガラス、温水洗浄便座、床下収納、浴室に窓、吹抜け、TVモニタ付インターホン、高機能トイレ、IHクッキングヒーター、食器洗乾燥機、ウォークインクロゼット、浄水器、都市ガス、床暖房●そのほか物件に関するお問い合わせは、オレンジ色の「資料請求ボタン」からどうぞ! |
Seller comments 売主コメント | | Building B B棟 | Local guide map 現地案内図 | | Local guide map 現地案内図 | Features pickup 特徴ピックアップ | | Construction housing performance with evaluation / Design house performance with evaluation / Measures to conserve energy / Long-term high-quality housing / Solar power system / Pre-ground survey / Seismic fit / Parking two Allowed / Energy-saving water heaters / Facing south / System kitchen / Bathroom Dryer / All room storage / LDK15 tatami mats or more / Or more before road 6m / Washbasin with shower / Face-to-face kitchen / Toilet 2 places / Bathroom 1 tsubo or more / 2-story / South balcony / Double-glazing / Warm water washing toilet seat / Underfloor Storage / The window in the bathroom / Atrium / TV monitor interphone / High-function toilet / IH cooking heater / Dish washing dryer / Walk-in closet / Water filter / City gas / Floor heating 建設住宅性能評価付 /設計住宅性能評価付 /省エネルギー対策 /長期優良住宅 /太陽光発電システム /地盤調査済 /耐震適合 /駐車2台可 /省エネ給湯器 /南向き /システムキッチン /浴室乾燥機 /全居室収納 /LDK15畳以上 /前道6m以上 /シャワー付洗面台 /対面式キッチン /トイレ2ヶ所 /浴室1坪以上 /2階建 /南面バルコニー /複層ガラス /温水洗浄便座 /床下収納 /浴室に窓 /吹抜け /TVモニタ付インターホン /高機能トイレ /IHクッキングヒーター /食器洗乾燥機 /ウォークインクロゼット /浄水器 /都市ガス /床暖房 | Event information イベント情報 | | Local tours (Please be sure to ask in advance) time / 10:00 ~ 17:00 As you can see slowly, We will arrange. Than "Request button", Please inform the tour desired time in advance. 現地見学会(事前に必ずお問い合わせください)時間/10:00 ~ 17:00ゆっくりご覧いただけますよう、手配いたします。「資料請求ボタン」より、事前に見学希望時間をお知らせください。 | Property name 物件名 | | Forest Notes Ichinomiya Green house [Solar power standard! ] Seller Property フォレストノート 一宮市 緑の家 【太陽光発電標準装備!】 売主物件 | Price 価格 | | 33,500,000 yen ・ 36.5 million yen 3350万円・3650万円 | Floor plan 間取り | | 4LDK + 2S (storeroom) ・ 5LDK + S (storeroom) 4LDK+2S(納戸)・5LDK+S(納戸) | Units sold 販売戸数 | | 3 units 3戸 | Total units 総戸数 | | 3 units 3戸 | Land area 土地面積 | | 151.5 sq m ~ 168.01 sq m (45.82 tsubo ~ 50.82 square meters) 151.5m2 ~ 168.01m2(45.82坪 ~ 50.82坪) | Building area 建物面積 | | 106.59 sq m ~ 122.38 sq m (32.24 tsubo ~ 37.01 square meters) 106.59m2 ~ 122.38m2(32.24坪 ~ 37.01坪) | Driveway burden-road 私道負担・道路 | | South 6.0m 南側6.0m | Completion date 完成時期(築年月) | | 2013 in late November 2013年11月下旬 | Address 住所 | | Aichi Prefecture Ichinomiya green 4-10 No. 6 愛知県一宮市緑4-10番6 他 | Traffic 交通 | | Meitetsu bus "Umamizuka" walk 4 minutes JR Tokaido Line "Owari Ichinomiya" walk 30 minutes 名鉄バス「馬見塚」歩4分JR東海道本線「尾張一宮」歩30分
| Related links 関連リンク | | [Related Sites of this company] 【この会社の関連サイト】 | Contact お問い合せ先 | | (Ltd.) Wood Friends TEL: 0800-603-1631 [Toll free] mobile phone ・ Also available from PHS Caller ID is not notified Please contact the "saw SUUMO (Sumo)" If it does not lead, If the real estate company (株)ウッドフレンズTEL:0800-603-1631【通話料無料】携帯電話・PHSからもご利用いただけます 発信者番号は通知されません 「SUUMO(スーモ)を見た」と問い合わせください つながらない方、不動産会社の方は
| Sale schedule 販売スケジュール | | Tax saving ・ Also questions about such expenses, Than "Request button", Please feel free to ask. 節税・諸費用などについてのご質問も、「資料請求ボタン」より、お気軽にお尋ねください。 | Most price range 最多価格帯 | | 36 million yen (2 units) 3600万円台(2戸) | Building coverage, floor area ratio 建ぺい率・容積率 | | Building coverage: 60%, Volume ratio: 200% 建ぺい率:60%、容積率:200% | Time residents 入居時期 | | 2013 late December plans 2013年12月下旬予定 | Land of the right form 土地の権利形態 | | Ownership 所有権 | Structure and method of construction 構造・工法 | | Wooden Galvalume steel Itabuki 2 story 木造ガルバリウム鋼板葺2階建 | Construction 施工 | | Co., Ltd. Wood Friends 株式会社ウッドフレンズ | Use district 用途地域 | | One dwelling 1種住居 | Land category 地目 | | Residential land 宅地 | Overview and notices その他概要・特記事項 | | Building confirmation number: No. H25 confirmation architecture Love Kenjuse 22186 other 建築確認番号:第H25確認建築愛建住セ22186号 他 | Company profile 会社概要 | | <Seller> Minister of Land, Infrastructure and Transport (3) No. 006013 (Corporation) Aichi Prefecture Building Lots and Buildings Transaction Business Association Tokai Real Estate Fair Trade Council member (Ltd.) Wood Friends Yubinbango460-0008 Sakae, Naka-ku, Nagoya, Aichi Prefecture 4-5-3 <売主>国土交通大臣(3)第006013号(公社)愛知県宅地建物取引業協会会員 東海不動産公正取引協議会加盟(株)ウッドフレンズ〒460-0008 愛知県名古屋市中区栄4-5-3 |
Rendering (appearance)完成予想図(外観)  Row appearance image
連棟外観イメージ
Rendering (introspection)完成予想図(内観)  Building A Japanese-style image
A棟和室イメージ
 Building A living image
A棟リビングイメージ
 Building A dining (upper atrium) image
A棟ダイニング(上部吹抜け)イメージ
 Building A Master Bedroom image
A棟主寝室イメージ
 Building B Kitchen ・ Dining image
B棟キッチン・ダイニングイメージ
 Building B living image
B棟リビングイメージ
Otherその他  Building B Western-style image
B棟洋室イメージ
Rendering (introspection)完成予想図(内観)  Building B Western-style image
B棟洋室イメージ
 Building C living image
C棟リビングイメージ
 C Building stairs image
C棟階段イメージ
 Building C Master Bedroom image
C棟主寝室イメージ
 Building C, Western-style image
C棟洋室イメージ
Local guide map現地案内図  Wide-area map
広域地図
 Detailed map
詳細地図
The entire compartment Figure全体区画図  Compartment figure
区画図
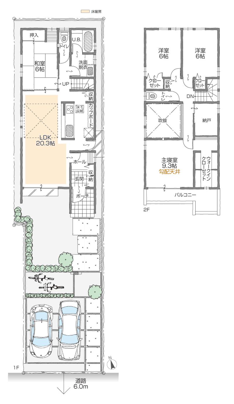
Floor plan間取り図  (A Building), Price 36.5 million yen, 4LDK+2S, Land area 168.01 sq m , Building area 121.19 sq m
(A棟)、価格3650万円、4LDK+2S、土地面積168.01m2、建物面積121.19m2
 (B Building), Price 33,500,000 yen, 4LDK+2S, Land area 167.11 sq m , Building area 106.59 sq m
(B棟)、価格3350万円、4LDK+2S、土地面積167.11m2、建物面積106.59m2
 (C Building), Price 36.5 million yen, 5LDK+S, Land area 151.5 sq m , Building area 122.38 sq m
(C棟)、価格3650万円、5LDK+S、土地面積151.5m2、建物面積122.38m2
Kitchenキッチン  San'webu AS system Kitchen References
サンウェーブASシステムキッチン参考資料
Bathroom浴室  Kireiyu
キレイユ
Otherその他  Design performance evaluation nationwide 8th! Construction Performance Evaluation nationwide 8th! (Fiscal 2011 performance evaluation certification ranking)
設計性能評価全国8位!建設性能評価全国8位!(2011年度性能評価認定ランキング)
 Peace of mind in the long-term high-quality housing ・ Favorable living
長期優良住宅で安心・有利な暮らし
 Safe production of structural materials in our factory
自社工場で構造材を安心生産
 Wood Friends Group Business Information
ウッドフレンズグループ事業案内
Location
|